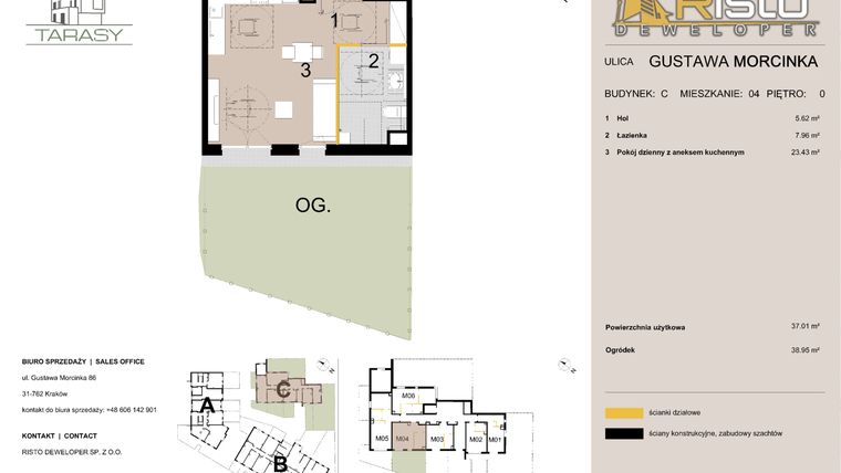
Mieszkanie na sprzedaż 1 pokój o powierzchni 37,01 m² numer C4
Inwestycja:
Krzesławickie TarasyDeweloper:
Risto Deweloper
Inwestycja:
Krzesławickie TarasyDeweloper:
Risto DeweloperKraków, Wzgórza Krzesławickie, ul. Morcinka
Kraków, Wzgórza Krzesławickie, ul. Morcinka
Promocje
Nieruchomość bez wkładu własnego
Wybrane mieszkania w tej inwestycji kupisz bez wkładu własnego
Szczegóły dostępne w biurze sprzedaży
Termin oddania
4 kw. 2027
Ilość pokoi
1 pokój
Metraż
37,01 m²
Piętro
Parter
Strona świata
zachód, południe
Powierzchnie dodatkowe
Ogródek
Kuchnia
otwarta kuchnia
Wysokość pomieszczeń
252 cm wysokości
Ilość poziomów
1 poziom
Oznaczenie oferty
C4

Raport o deweloperze
Poznaj dewelopera bliżej! Pobierz raport, w którym znajdziesz kluczowe informacje o firmie, jej doświadczeniu, nagrodach oraz aktualnych i zrealizowanych inwestycjach.
Budynek i otoczenie
Miejsca postojowe | |
|---|---|
Komórki lokatorskie | dostępne (25): nieobowiązkowy zakup; od 2 do 9 m2; 4000 zł/m2 - dla 25% mieszkań |
Standard wykończenia | standard deweloperski Ogrzewanie kotłownia gazowa |
Realizacja inwestycji | rozpoczęcie budowy w 3 kw. 2025 roku, planowane oddanie do użytkowania w 4 kw. 2027 roku |
Udogodnienia | plac zabaw, winda, rowerownia, wózkarnia, instalacja fotowoltaiczna, miejsce do ładowania samochodów elektrycznych, pompa ciepła |
Przyroda | w okolicy inwestycji znajduje się park, las, rezerwat przyrody |
Charakterystyka energetyczna nieruchomości | informacja u dewelopera |
Rezerwacja i finanse
Rodzaj własności | Odrębna własność z własnością gruntu |
|---|---|
Wysokość czynszu | informacja u dewelopera |
Warunki rezerwacji | 1% kaucja rezerwacyjna - 6 tygodni |
Zabezpieczenie środków | Otwarty mieszkaniowy rachunek powierniczy |
Zdjęcia z budowy
Zobacz na jakim etapie budowy jest ta inwestycja
Lokalizacja inwestycji
Stacja kolejowa - Kraków Lubocza - 1861 m
Przystanek Tramwajowy - 1198 m
Przystanek Autobusowy - 364 m
Dojazd do centrum: pokaż
W pobliżu 1 km od tej inwestycji znajdują się:
1 kawiarnia lub restauracja, 12 sklepów, 14 obiektów sportowych, 4 placówki medyczne, 10 placówek edukacyjnych, 8 placów zabaw
Przeczytaj więcej o lokalizacji
Dzielnica XVII (Wzgórza Krzesławickie) ze względu na rzeźbę terenu góruje nad pozostałą częścią Krakowa. Władze miasta wyodrębniły Dzielnicę XVII w 1991 roku. W ramach poprzedniego podziału administracyjnego Krakowa okolice Wzgórz Krzesławickich wchodziły w skład rozległej dzielnicy Nowa Huta. Opisywany teren podobnie jak Mistrzejowice i Bieńczyce miał służyć jako zaplecze dla nowohuckiego kombinatu. Dlatego już na początku lat 60 – tych rozpoczęto budowę pierwszego osiedla mieszkaniowego (Os. Na Wzgórzach). Do końca lat 80 – tych na opisywanym terenie powstało jeszcze jedno osiedle wielkopłytowe (Os. Na Stoku). Obecnie w Dzielnicy XVII coraz częściej lokalizuje się nowe inwestycje mieszkaniowe. Są one przeznaczone dla osób, które mogą zaakceptować sporą odległość do centralnej części Krakowa.
Opis oferty
Nowe 1-pokojowe mieszkanie na sprzedaż o powierzchni 37,01 m² znajduje się w nowo budowanej inwestycji deweloperskiej Krzesławickie Tarasy na Wzgórzach Krzesławickich, ul. Morcinka (9 km od centrum Krakowa).
Inwestycja jest realizowana przez Risto Deweloper.
Cała inwestycja składa się z 3 budynków, w których łącznie znajdują się 93 nowe mieszkania.
Na sprzedaż pozostają 82 oferty o powierzchni od 26 do 99 m².
W budynkach są 4 kondygnacje naziemne oraz 1 kondygnacja podziemna.
Inwestycja Krzesławickie Tarasy jest w trakcie budowy z planowanym na 4 kw. 2027 roku terminem oddania do użytkowania.
Nowe mieszkanie o oznaczeniu C4 znajduje się na parterze i jest 1-poziomowe. Pomieszczenia mają 252 centymetrów wysokości. W mieszkaniu znajduje się 1 pokój.
Do mieszkania przewidziano możliwość zakupu komórki lokatorskiej, którą można zagospodarować na spiżarnię, warsztat czy składzik.
Okna w mieszkaniu wychodzą na zachód, południe.
Okna wychodzące na południe gwarantują maksymalną ilość naturalnego światła, co czyni wnętrza jasnymi i ciepłymi. Dodatkowo południowa ekspozycja pomaga obniżyć koszty ogrzewania w zimie. Okna na południe są idealne dla osób pragnących cieszyć się jasnym otoczeniem, które sprzyja dobremu samopoczuciu oraz pozytywnej energii.
Zachodnia ekspozycja to gwarancja intensywnego popołudniowego światła, które nadaje wnętrzom przytulności i ciepła. Idealne dla miłośników słonecznych wieczorów, którzy pragną cieszyć się pięknymi zachodami słońca we własnym domu. Zachodnie światło podkreśla kolory i faktury w aranżacji wnętrz, tworząc atmosferę sprzyjającą relaksowi po długim dniu.
Dla przyszłych mieszkańców Krzesławickie Tarasy deweloper przewidział miejsca postojowe podziemne.
Dzięki temu przyszli właściciele nie będą musieli poszukiwać wolnej przestrzeni parkingowej. Dodatkowo, miejsce postojowe w garażu podziemnym zabezpiecza przed niekorzystnymi warunkami atmosferycznymi.
Opis Inwestycji
Pow. dodatkowe
Komfortowe mieszkania – Twoja codzienność na nowo
„Krzesławickie Tarasy” jest to kameralna inwestycja na zielonym wzniesieniu północno wschodniego Krakowa. Inwestycja łączy nowoczesną architekturę z naturalnym otoczeniem. Mieszkania posiadają wyjątkowo atrakcyjne balkony, tarasy na dachu, a dla mieszkań na parterze zostały przewidziane prywatne ogródki nawet do 250 m², które pozwalają w pełni korzystać z przestrzeni na świeżym powietrzu. Duże okna wprowadzają mnóstwo naturalnego światła, a przestronny układ wnętrz daje pełną swobodę w aranżacji i codziennym użytkowaniu.
Standard i udogodnienia
Mieszkańcy mają do dyspozycji ciche i bezpieczne windy, które zapewniają wygodny dostęp do wszystkich kondygnacji, a fotowoltaika na dachu zasila części wspólne, obniżając koszty i wspierając ekologiczny styl życia. Budynek jest przygotowany pod montaż stacji ładowania samochodów elektrycznych przy własnych miejscach parkingowych, co pozwala już dziś planować życie w duchu elektromobilności. Przestrzeń wspólna została zaprojektowana z myślą o maksymalnej wygodzie mieszkańców, oferując praktyczne i funkcjonalne rozwiązania, które ułatwiają codzienne użytkowanie i sprawiają, że każdy dzień staje się bardziej komfortowy.
Wyjątkowa lokalizacja :
Położenie na malowniczym wzniesieniu w północno-wschodniej części Krakowa zapewnia wyjątkowy spokój i bliskość natury. Wzgórza Krzesławickie oferują mieszkańcom ciszę, rozległe tereny zielone i świeże powietrze. Inwestycja znajduje się w ostatniej linii zabudowy, co zapewnia prywatność i spokój, a jednocześnie oferuje widok na panoramę Krakowa. To idealne miejsce dla osób, które cenią równowagę między miejskim stylem życia a kontaktem z przyrodą.
RISTO DEWELOPER
Risto Deweloper od wielu lat działa na krakowskim rynku mieszkaniowym, realizując inwestycje z myślą o przyszłych mieszkańcach i ich potrzebach. Starannie wybieramy miejsca pod nasze projekty, tak aby zapewnić wygodny dostęp do codziennych udogodnień oraz bliskość terenów zielonych, sprzyjających wypoczynkowi i aktywnemu trybowi życia.
Nowoczesne budownictwo, szeroka oferta mieszkań i konkurencyjne ceny sprawiają, że nasze inwestycje cieszą się dużym zainteresowaniem. Największym dowodem jakości naszych projektów i obsługi jest stale rosnąca liczba zadowolonych klientów.
Mieszkanie znajduje się w inwestycji Krzesławickie Tarasy, w której znajduje się w sprzedaży jeszcze 13 podobnych nowych mieszkań.





