Mieszkanie na sprzedaż 1 pokój o powierzchni 27,45 m² numer A1.7.06
Inwestycja:
Belg Apartamenty etap IIDeweloper:
Resi Capital S.A.
Inwestycja:
Belg Apartamenty etap IIDeweloper:
Resi Capital S.A.Katowice, Osiedle Paderewskiego-Muchowiec, ul. Przemysłowa 3
Katowice, Osiedle Paderewskiego-Muchowiec, ul. Przemysłowa 3
Termin oddania
3 kw. 2026
Ilość pokoi
1 pokój
Metraż
27,45 m²
Piętro
7 piętro
Powierzchnie dodatkowe
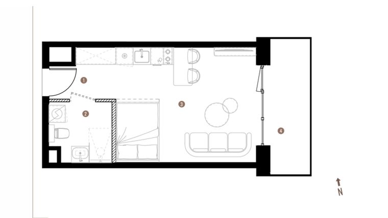
Balkon
Kuchnia
otwarta kuchnia
Wysokość pomieszczeń
od 260 do 280 cm wysokości
Ilość poziomów
1 poziom
Oznaczenie oferty
A1.7.06

Raport o deweloperze
Poznaj dewelopera bliżej! Pobierz raport, w którym znajdziesz kluczowe informacje o firmie, jej doświadczeniu, nagrodach oraz aktualnych i zrealizowanych inwestycjach.
Budynek i otoczenie
Miejsca postojowe | |
|---|---|
Standard wykończenia | standard deweloperski Ogrzewanie miejskie |
Realizacja inwestycji | rozpoczęcie budowy w 2 kw. 2025 roku, planowane oddanie do użytkowania w 3 kw. 2026 roku |
Udogodnienia | ochrona całodobowa, plac zabaw, monitoring, usługi w budynku, winda, inteligentny dom, miejsce do ładowania samochodów elektrycznych |
Przyroda | w okolicy inwestycji znajduje się park |
Charakterystyka energetyczna nieruchomości | informacja u dewelopera |
Rezerwacja i finanse
Rodzaj własności | Odrębna własność z własnością gruntu |
|---|---|
Wysokość czynszu | informacja u dewelopera |
Warunki rezerwacji | Informacja u dewelopera |
Zabezpieczenie środków | Informacja u dewelopera |
Zdjęcia z budowy
Zobacz na jakim etapie budowy jest ta inwestycja
Lokalizacja inwestycji
Stacja kolejowa - Katowice - 1160 m
Przystanek Tramwajowy - 445 m
Przystanek Autobusowy - 148 m
Dojazd do centrum: pokaż
W pobliżu 1 km od tej inwestycji znajdują się:
166 kawiarni i restauracji, 92 sklepy, 32 obiekty sportowe, 47 placówek medycznych, 51 placówek edukacyjnych, 23 place zabaw
Przeczytaj więcej o lokalizacji
Katowice to miasto w województwie śląskim o powierzchni 164 km kw i liczbie mieszkańców ponad 300 tys. osób. Zabudowa miasta to głównie powojenne bloki i typowe dla Śląska zabytkowe kamienice. Katowice dzielą się na dzielnice pogrupowane w zespoły dzielnic: zespół północny, śródmiejski, południowy, wschodni i zachodni. Miasto jest wojewódzkim centrum medycznym, z kilkunastoma szpitalami, w tym Centralnym Szpitalem Klinicznym im. Kornela Gibińskiego, Szpitalem Klinicznym im. Andrzeja Mieleckiego, Uniwersyteckim Centrum Okulistyki i Onkologii, Szpitalem Klinicznym nr 6 czy Górnośląskim Centrum Zdrowia Dziecka. Działają tu też liczne uniwersytety, takie jak Akademia Wychowania Fizycznego im. Jerzego Kukuczki, Akademia Sztuk Pięknych czy wydziały Politechniki Śląskiej.
Opis oferty
Nowe 1-pokojowe mieszkanie na sprzedaż o powierzchni 27,45 m² znajduje się w nowo budowanej inwestycji deweloperskiej Belg Apartamenty etap II na Osiedlu Paderewskiego-Muchowca, ul. Przemysłowa 3 (1.3 km od centrum Katowic).
Inwestycja jest realizowana przez Resi Capital S.A.
Cała inwestycja składa się z 1 budynku, w którym łącznie znajdują się 324 nowe mieszkania.
Na sprzedaż pozostaje 149 ofert o powierzchni od 27 do 63 m².
W budynku jest 9 kondygnacji naziemnych oraz 1 kondygnacja podziemna.
Inwestycja Belg Apartamenty etap II jest w trakcie budowy z planowanym na 3 kw. 2026 roku terminem oddania do użytkowania.
Nowe mieszkanie o oznaczeniu A1.7.06 znajduje się na 7 piętrze i jest 1-poziomowe. Pomieszczenia mają od 260 do 280 centymetrów wysokości. W mieszkaniu znajduje się 1 pokój.
Dla przyszłych mieszkańców Belg Apartamenty etap II deweloper przewidział miejsca postojowe podziemne.
Dzięki temu przyszli właściciele nie będą musieli poszukiwać wolnej przestrzeni parkingowej. Dodatkowo, miejsce postojowe w garażu podziemnym zabezpiecza przed niekorzystnymi warunkami atmosferycznymi.
Mieszkanie znajduje się w inwestycji Belg Apartamenty etap II, w której znajduje się w sprzedaży jeszcze 55 podobnych nowych mieszkań.
Resi Capital S.A.
Strona internetowa inwestycjiAdres biura sprzedaży:
ul. Przemysłowa 3, 40-020 KatowiceGodziny otwarcia biura sprzedaży:
- Poniedziałek: 09:00 - 17:00
- Wtorek: 09:00 - 17:00
- Środa: 09:00 - 17:00
- Czwartek: 09:00 - 17:00
- Piątek: 09:00 - 17:00
- Sobota: 10:00 - 14:00
Sobota po wcześniejszym umówieniu się z konsultantem





