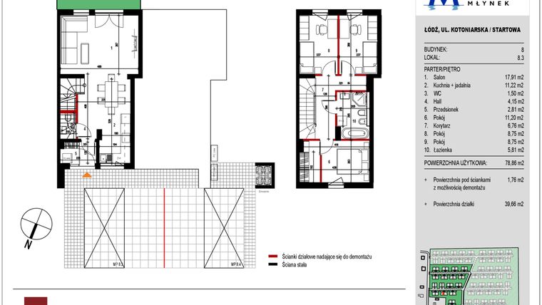
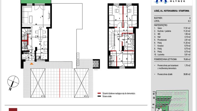
Mieszkanie na sprzedaż 4 pokoje o powierzchni 79,02 m² numer 8.3
Inwestycja:
Przystań MłynekDeweloper:
Real Development Group
Inwestycja:
Przystań MłynekDeweloper:
Real Development GroupŁódź, Chojny-Dąbrowa, ul. Kotoniarska
Łódź, Chojny-Dąbrowa, ul. Kotoniarska
Termin oddania
2 kw. 2026
Ilość pokoi
4 pokoje
Metraż
79,02 m²
Piętro
Parter
Powierzchnie dodatkowe
Ogródek
Kuchnia
otwarta kuchnia
Wysokość pomieszczeń
od 260 do 280 cm wysokości
Ilość poziomów
2 poziomy
Oznaczenie oferty
8.3

Raport o deweloperze
Poznaj dewelopera bliżej! Pobierz raport, w którym znajdziesz kluczowe informacje o firmie, jej doświadczeniu, nagrodach oraz aktualnych i zrealizowanych inwestycjach.
Budynek i otoczenie
Miejsca postojowe | |
|---|---|
Standard wykończenia | standard deweloperski |
Realizacja inwestycji | rozpoczęcie budowy w 4 kw. 2024 roku, planowane oddanie do użytkowania w 2 kw. 2026 roku |
Udogodnienia | pompa ciepła |
Przyroda | w okolicy inwestycji znajduje się park |
Charakterystyka energetyczna nieruchomości |
|
Rezerwacja i finanse
Rodzaj własności | Odrębna własność z własnością gruntu |
|---|---|
Wysokość czynszu | informacja u dewelopera |
Warunki rezerwacji | Informacja u dewelopera |
Zabezpieczenie środków | Informacja u dewelopera |
Zdjęcia z budowy
Zobacz na jakim etapie budowy jest ta inwestycja
Lokalizacja inwestycji
Stacja kolejowa - Łódź Olechów Wiadukt - 1336 m
Przystanek Tramwajowy - 1649 m
Przystanek Autobusowy - 231 m
Dojazd do centrum: pokaż
W pobliżu 1 km od tej inwestycji znajdują się:
1 sklep, 5 obiektów sportowych, 2 place zabaw
Przeczytaj więcej o lokalizacji
Południowa część Łodzi rozciągnięta na powierzchni ok. 70 km. kw i zamieszkana jest przez 170 tys. osób. Dzielnica dzieli się na rejony Chojny-Dąbrowa, Chojny, Górniak, Piastów-Kurak, Rokicie, Ruda, Nad Nerem, Wiskitno. Główne ulice dzielnicy to u. Pabianicka, ul. Rzgowska i odchodząca od niej w kierunku wschodnim ul. Jarosława Dąbrowskiego. To dzielnica bogata w parki i ośrodki rekreacyjne, takie jak Stawy Jana, Młynek, Rudzka Góra czy Las Ruda Popioły. Na terenie dzielnicy znajdują się też zabytki takie, jak dwór Benedykta Górskiego, Muzeum Włókiennictwa, Willa Ferdynanda Koninga czy liczne parki. Dzielnica jest doskonale skomunikowana dzięki sieci komunikacji miejskiej ale też dworcowi PKP Łódź Chojny i położonego we wschodniej części dzielnicy portowi lotniczemu. Dzielnica ma dobry odstęp do punktów usługowych dzięki kilku hipermarketom, centrum handlowemu Guliwer i supermarketom budowlanym. Zabudowa mieszkalna to głównie bloki, przedwojenne kamienice i robotnicze domki jednorodzinne. Mieszczą się tu też cmentarze katolickie i ewangelicko-augsburski. Główne centrum handlowe to Guliwer z hipermarketem Carrefour.
Opis oferty
Nowe 4-pokojowe mieszkanie na sprzedaż o powierzchni 79,02 m² znajduje się w nowo budowanej inwestycji deweloperskiej Przystań Młynek Chojnach-Dąbrowie, ul. Kotoniarska (6.1 km od centrum Łodzi).
Inwestycja jest realizowana przez Real Development Group.
Cała inwestycja składa się z 17 budynków, w których łącznie znajdują się 64 nowe mieszkania.
Na sprzedaż pozostaje 47 ofert o powierzchni od 70 do 153 m².
W budynkach są 2 kondygnacje naziemne. Budynek nie posiada kondygnacji podziemnych.
Inwestycja Przystań Młynek jest w trakcie budowy z planowanym na 2 kw. 2026 roku terminem oddania do użytkowania.
Nowe mieszkanie o oznaczeniu 8.3 znajduje się na parterze i jest 2-poziomowe. Pomieszczenia mają od 260 do 280 centymetrów wysokości. W mieszkaniu znajdują się 4 pokoje.
Dla przyszłych mieszkańców Przystań Młynek deweloper przewidział miejsca postojowe naziemne.
Dzięki temu przyszli właściciele nie będą musieli poszukiwać wolnej przestrzeni parkingowej.
Opis Inwestycji
Okazyjna cena
Pow. dodatkowe
BALKONY, TARASY I OGRÓDKI
Domy oferują wyjątkowe przestrzenie na świeżym powietrzu. Każdy dom posiada loggię lub ogródek, które stanowią idealne miejsce do relaksu i spędzania czasu na łonie natury. Przestronne loggie i powierzchnie ogrodowe zapewniają piękne widoki i są doskonałym miejscem na poranną kawę czy wieczorne spotkania. Prywatne ogródki to przestrzeń do zabawy dla dzieci, uprawy roślin czy organizowania rodzinnych grillów.
WŁASNE GARAŻE LUB MIEJSCA POSTOJOWE
Każdy dom został zaprojektowany z myślą o wygodzie i bezpieczeństwie, dlatego każdy właściciel ma zapewnione komfortowe miejsce do parkowania swojego pojazdu – są to garaże w bryle budynku lub naziemne miejsca postojowe. Znajdują się one w bezpośrednim sąsiedztwie domów, co gwarantuje łatwy dostęp i wygodę na co dzień.
MIESZKANIE JAK DOM
Mieszkania zostały zaprojektowane z myślą o komforcie i funkcjonalności. Przestronne wnętrza, duże okna zapewniające doskonałe doświetlenie oraz przemyślane układy pomieszczeń tworzą idealne warunki do życia (powierzchnie już od 70 m2 do nawet 152 m2). Wysokiej jakości materiały wykończeniowe i nowoczesne technologie gwarantują trwałość i wygodę. To idealne miejsce dla rodzin, par i osób ceniących sobie wygodę i nowoczesny styl życia.
MALOWNICZA OKOLICA – STAW MŁYNEK
To prawdziwa oaza spokoju w sercu Łodzi. Urokliwy staw otoczony jest bujną zielenią, tworząc idealne miejsce do relaksu i rekreacji. Ścieżki spacerowe i rowerowe wokół stawu zachęcają do aktywnego spędzania czasu na świeżym powietrzu, a liczne ławki i zaciszne miejsca pozwalają na liczne chwile wytchnienia. Bliskość przyrody oraz cisza i spokój tej okolicy sprawiają, że jest to wymarzone miejsce do życia dla osób szukających ucieczki od miejskiego zgiełku.
ODNAWIALNE ŹRÓDŁA ENERGII I CIEPŁA
Nasze domy wyróżniają się nowoczesnymi rozwiązaniami, które zapewniają komfort i oszczędność energii. Każdy dom wyposażony jest w energooszczędne pompy ciepła, które zapewniają efektywne ogrzewanie i chłodzenie. Nowoczesne technologie nie tylko zwiększają komfort mieszkańców, ale także przyczyniają się do ochrony środowiska, ale co ważne – przyczyniają się do obniżenia kosztów eksploatacji.
Mieszkanie znajduje się w inwestycji Przystań Młynek, w której znajdują się w sprzedaży jeszcze 32 podobne nowe mieszkania.
Real Development Group
Strona internetowa inwestycjiAdres biura sprzedaży:
ul. Traktorowa 126, lok.501, 91-204 ŁódźGodziny otwarcia biura sprzedaży:
- Poniedziałek: 10:00 - 18:00
- Wtorek: 10:00 - 18:00
- Środa: 10:00 - 18:00
- Czwartek: 10:00 - 18:00
- Piątek: 10:00 - 18:00





