Mieszkanie na sprzedaż 3 pokoje o powierzchni 90 m² numer 35
Oferta archiwalna
Inwestycja:
Osiedle Słoneczne w Myślenicach
Inwestycja:
Osiedle Słoneczne w MyślenicachMyślenice, ul. Solidarności
Myślenice, ul. Solidarności
Nieruchomość została sprzedana
Zobacz pozostałe mieszkania w inwestycji Osiedle Słoneczne w Myślenicach lub inne propozycje w Myślenicach
Termin oddania
Gotowe
Ilość pokoi
3 pokoje
Metraż
90 m²
Piętro
3 piętro
Powierzchnie dodatkowe
Balkon, Loggia
Kuchnia
otwarta kuchnia
Wysokość pomieszczeń
od 260 do 280 cm wysokości
Ilość poziomów
2 poziomy
Oznaczenie oferty
35

Raport o deweloperze
Poznaj dewelopera bliżej! Pobierz raport, w którym znajdziesz kluczowe informacje o firmie, jej doświadczeniu, nagrodach oraz aktualnych i zrealizowanych inwestycjach.
Budynek i otoczenie
Miejsca postojowe | |
|---|---|
Standard wykończenia | standard deweloperski |
Realizacja inwestycji | rozpoczęcie budowy w 3 kw. 2018 roku, inwestycja została oddana do użytkowania w 4 kw. 2019 roku |
Udogodnienia | winda |
Przyroda | informacja u dewelopera |
Charakterystyka energetyczna nieruchomości | informacja u dewelopera |
Rezerwacja i finanse
Rodzaj własności | Odrębna własność z własnością gruntu |
|---|---|
Wysokość czynszu | informacja u dewelopera |
Warunki rezerwacji | Informacja u dewelopera |
Zabezpieczenie środków | Informacja u dewelopera |
Lokalizacja inwestycji
Przeczytaj więcej o lokalizacji
Myślenice to liczące sobie 18 050 mieszkańców miasto powiatowe leżące w zachodniej części woj. małopolskiego. Zajmuje obszar 30,1 km2 i jest oddalone od Krakowa o ok. 35 km. Przez miasto przepływa rzeka Raba, a jego południowa część jest w dużej mierze zajęta przez lasy. Leżąc w pobliżu Beskidów, Myślenice zapewniają mieszkańcom piękne widoki górskie. W II połowie XXw. widoczny był intensywny rozwój miasta, który zaowocował m.in. powstaniem osiedli mieszkaniowych. Zabudowa jest tu zwarta z dominacją nieruchomości mieszkalnych jedno- i wielorodzinnych. Do dziś jest to miasto silne gospodarczo, w którym prężnie działa sektor handlowy i przemysłowy. W części Dolne Przedmieście działa nawet Specjalna Strefa Ekonomiczna. Mimo to w południowej części miasta znajduje się rezerwat przyrody, a poza nim mieszczą się tu 2 użytki przyrody i liczne pomniki przyrody. W Myślenicach dobrze rozwinięta jest infrastruktura społeczna. Szkoły, przychodnie lekarskie i jednostki kulturalne zapewniają mieszkańcom odpowiedni poziom życia.
Opis oferty
Nowe 3-pokojowe mieszkanie na sprzedaż o powierzchni 90 m² znajduje się w nowo budowanej inwestycji deweloperskiej Osiedle Słoneczne w Myślenicach w Myślenicach, ul. Solidarności (15.4 km od Krakowa).
Inwestycja jest realizowana przez Przedsiębiorstwo Wielobranżowe RABA Dyczkowski i Spółka Sp. z o. o.
Cała inwestycja składa się z 1 budynku, w którym łącznie znajduje się 36 nowych mieszkań.
Inwestycja jest już wyprzedana.
W budynku są 4 kondygnacje naziemne oraz 1 kondygnacja podziemna.
Inwestycja Osiedle Słoneczne w Myślenicach została wybudowana i oddana do użytkowania w 4 kw. 2019 roku.
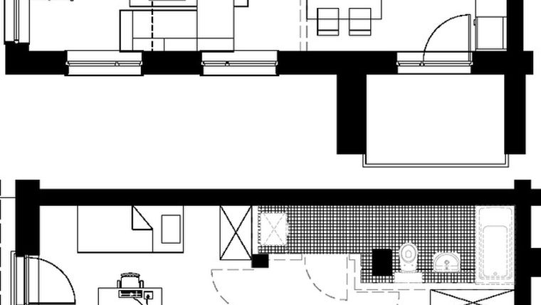
Nowe mieszkanie o oznaczeniu 35 znajduje się na 3 piętrze i jest 2-poziomowe. Pomieszczenia mają od 260 do 280 centymetrów wysokości. W mieszkaniu znajdują się 3 pokoje.
Dla przyszłych mieszkańców Osiedle Słoneczne w Myślenicach deweloper przewidział miejsca postojowe podziemne.
Dzięki temu przyszli właściciele nie będą musieli poszukiwać wolnej przestrzeni parkingowej. Dodatkowo, miejsce postojowe w garażu podziemnym zabezpiecza przed niekorzystnymi warunkami atmosferycznymi.
Opis Inwestycji
Pow. dodatkowe
Rodzinne osiedle w Myślenicach
Słoneczne mieszkanie na zielonym zboczu
Przeniesienie miejsca zamieszkania z ruchliwego miasta na jego obrzeża, to najlepszy sposób na na poprawienie jakości życia. Osiedle Słoneczne zaprojektowane zostało po to, aby umożliwić jego mieszkańcom codzienny, błogi odpoczynek w zielonej, spokojnej okolicy, z dala od zgiełku dużego miasta. Widoki ze zbocza Góry Plebańskiej, spacery z psem nad rzeką Rabą, wspólne odkrywanie leśnych tras i kontakt z przyrodą jakiej nie znajdziemy w mieście, to niektóre z wielu przyjemności, które czekają na przyszłych mieszkańców Słonecznego Osiedla. Inwestycja dostępna będzie z budowanej przez gminę ulicy Solidarności, wzdłuż której zostanie zrealizowana ścieżka rowerowa.
Bliżej natury
Osiedle Słoneczne położone jest na zboczu Góry Plebańskiej, skąd roztacza się widok na sielski krajobraz Myślenic. Wzgórza Beskidu Makowskiego, gęste, pełne malowniczych ścieżek lasy, czysta rzeka Raba – to wymarzone otoczenie dla wszystkich, których męczy miejski zgiełk i zanieczyszczenie środowiska.
20 minut od Krakowa
Kraków, stolica województwa, ośrodek turystyczny, kulturalny i miejsce zatrudnienia większości mieszkańców małopolski, znajduje się w niewielkiej odległości od Osiedla Słonecznego i centrum Myślenic. Łatwy, bezpośredni dojazd sprawia, że przemieszczanie się na drodze Kraków – Myślenice jest szybkie i przyjemne.
Przyjazne dla zwierzaków
Osiedle Słoneczne to miejsce przyjazne dla zwierząt domowych. Sąsiedztwo terenów zielonych oznacza ogromną ilość ścieżek spacerowych i wolnych przestrzeni. Okolice rzeki Raby i pobliskie łąki wykluczają wielkomiejski problem braku miejsc odpowiednich do wyprowadzania zwierząt na długie, relaksujące spacery.
Energooszczędne
Dzięki nowoczesnym rozwiązaniom budowlanym i materiałowym mieszkania zoptymalizowane są pod kątem utraty ciepła w związku z czym koszty ich eksploatacji utrzymują się na niskim poziomie.
Garaże podziemne
Oprócz standardowych miejsc parkingowych na zewnątrz budynku, inwestycja dysponuje własnym bezpiecznym parkingiem podziemnym.
Dobrze nasłonecznione
Inwestycja znajduje się u podnóży Góry Plebańskiej, dzięki czemu mieszkania są doskonale nasłonecznione i jasne.
Metraże dla każdego
Głównym założeniem projektowym Osiedla Słonecznego stworzenie lokali mieszkalnych optymalnie dostosowanych dla wszelkich potrzeb mieszkańców terenów podmiejskich. Zaprojektowane mieszkania są przestronne, ustawne i pełne światła, posiadają wszystkie pozytywne zalety mieszkania miejskiego, bez potrzeby obciążania kupującego zbędnymi kosztami wiążącymi się z mieszkaniem na przedmieściach.
Dogodne połączenia
Liczne trasy komunikacji miejskiej i prywatnych przewoźników sprawiają, że poruszanie się między Myślenicami a innymi miastami jest bardzo proste, niedrogie i szybkie.
Możliwość łączenia lokali
Potrzebujesz większego metrażu? Pamiętaj, że istnieje możliwość połączenia dwóch lub nawet trzech sąsiadujących ze sobą mieszkań.
Udogodnienia dla seniorów
Osiedle Słoneczne powstało z myślą o stworzeniu wygodnego i przytulnego miejsca do życia. Niska zabudowa, szerokie korytarze, windy oraz jak najmniejsza ilość schodów, to udogodnienia mające ułatwić poruszanie się po budynkach osobom starszym.
Windy i udogodnienia
Dostęp na wyższe kondygnacje ułatwiony jest dzięki windzie. Inwestycja posiada szerokie tarasy i balkony z pięknymi widokami. Pod budynkiem znajduje się parking podziemny z osiemnastoma miejscami postojowymi.
Bezpieczne
Zielone otoczenie, oddalenie osiedla od dużych węzłów komunikacyjnych, cisza i niewielka ilość mieszkańców to czynniki budujące przyjazną atmosferę i poczucie bezpieczeństwa.
Dla osób posiadających Kartę Dużej Rodziny rabat -5% na mieszkania powyżej 70 m2.
Mieszkanie znajduje się w inwestycji Osiedle Słoneczne w Myślenicach.





