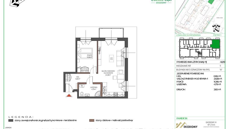
Mieszkanie na sprzedaż 2 pokoje o powierzchni 46,93 m² numer 11
Inwestycja:
Osiedle Polna bud. 5Deweloper:
Przedsiębiorstwo Budowlane Eko-Dom
Inwestycja:
Osiedle Polna bud. 5Deweloper:
Przedsiębiorstwo Budowlane Eko-DomGóra Kalwaria, ul. Polna
Góra Kalwaria, ul. Polna
Oddanie
4 kw. 2026
Ilość pokoi
2 pokoje
Metraż
46,93 m²
Piętro
1 piętro
Strona świata
wschód, południe
Kuchnia
otwarta kuchnia
Wysokość
od 260 do 280 cm wysokości
Poziomy
1 poziom
Oznaczenie oferty
11

Raport o deweloperze
Poznaj dewelopera bliżej! Pobierz raport, w którym znajdziesz kluczowe informacje o firmie, jej doświadczeniu, nagrodach oraz aktualnych i zrealizowanych inwestycjach.
Budynek i otoczenie
Miejsca postojowe | |
|---|---|
Standard wykończenia | standard deweloperski |
Realizacja inwestycji | rozpoczęcie budowy w 4 kw. 2025 roku, planowane oddanie do użytkowania w 4 kw. 2026 roku |
Udogodnienia | plac zabaw, monitoring, internet, przystosowane dla niepełnosprawnych, winda, rowerownia, własna kotłownia, wózkarnia, patio / dziedziniec |
Przyroda | informacja u dewelopera |
Charakterystyka energetyczna nieruchomości | informacja u dewelopera |
Rezerwacja i finanse
Rodzaj własności | Odrębna własność z własnością gruntu |
|---|---|
Wysokość czynszu | informacja u dewelopera |
Warunki rezerwacji | Informacja u dewelopera |
Zabezpieczenie środków | Informacja u dewelopera |
Postępy i zdjęcia z budowy
Zobacz na jakim etapie budowy jest ta inwestycja
Lokalizacja inwestycji
Stacja kolejowa - Góra Kalwaria - 1373 m
Przystanek Autobusowy - 415 m
Dojazd do centrum Warszawy: pokaż
W pobliżu 1 km od tej inwestycji znajdują się:
12 kawiarni i restauracji, 19 sklepów, 13 obiektów sportowych, 14 placówek medycznych, 18 placówek edukacyjnych, 11 placów zabaw
Przeczytaj więcej o lokalizacji
Góra Kalwaria to miasto województwa mazowieckiego, położone nad Wisłą, w odległości 34 km od centrum Warszawy. Na obszarze o powierzchni liczącej prawie 14 km2 zamieszkuje ponad 11 tys. osób. Zabytkowy układ urbanistyczny miasta oparty jest na planie krzyża łacińskiego, a zabudowę mieszkaniową stanowią: domy jednorodzinne i wielorodzinne, kamienice oraz niskie bloki. Do obiektów zabytkowych należą budynki klasycystyczne: Ratusz oraz Remiza strażacka. W mieście zlokalizowanych jest kilka większych zakładów produkcyjnych oraz wiele małych firm zajmujących się handlem lub usługami. Na bazę turystyczną składają się m.in. hotele, restauracje, muzeum etnograficzne, kino i obiekty sportowe, jak Stadion Miejski czy Zespół Basenowo-Rekreacyjny.
Opis oferty
Nowe 2-pokojowe mieszkanie na sprzedaż o powierzchni 46,93 m² znajduje się w nowo budowanej inwestycji deweloperskiej Osiedle Polna bud. 5 w Górze Kalwarii, ul. Polna (15.7 km od Warszawy).
Inwestycja jest realizowana przez Przedsiębiorstwo Budowlane Eko-Dom.
Cała inwestycja składa się z 1 budynku, w którym łącznie znajduje się 30 nowych mieszkań.
Na sprzedaż pozostają 24 oferty o powierzchni od 38 do 59 m².
W budynku są 4 kondygnacje naziemne. Budynek nie posiada kondygnacji podziemnych.
Inwestycja Osiedle Polna bud. 5 jest w trakcie budowy z planowanym na 4 kw. 2026 roku terminem oddania do użytkowania.
Nowe mieszkanie o oznaczeniu 11 znajduje się na 1 piętrze i jest 1-poziomowe. Pomieszczenia mają od 260 do 280 centymetrów wysokości. W mieszkaniu znajdują się 2 pokoje.
Okna w mieszkaniu wychodzą na wschód, południe.
Okna wychodzące na południe gwarantują maksymalną ilość naturalnego światła, co czyni wnętrza jasnymi i ciepłymi. Dodatkowo południowa ekspozycja pomaga obniżyć koszty ogrzewania w zimie. Okna na południe są idealne dla osób pragnących cieszyć się jasnym otoczeniem, które sprzyja dobremu samopoczuciu oraz pozytywnej energii.
Wschodnia orientacja zapewnia dostęp do łagodnego porannego światła, idealnego dla rozpoczęcia dnia pełnego energii. Wnętrza pozostają jasne, ale nieprzegrzane, co sprzyja utrzymaniu komfortowej temperatury. Przebywanie w pomieszczeniu z oknami na wschód inspiruje do działania i pozytywnie wpływa na poranny rytuał.
Dla przyszłych mieszkańców Osiedle Polna bud. 5 deweloper przewidział miejsca postojowe naziemne.
Dzięki temu przyszli właściciele nie będą musieli poszukiwać wolnej przestrzeni parkingowej.
Mieszkanie znajduje się w inwestycji Osiedle Polna bud. 5, w której znajduje się w sprzedaży jeszcze 15 podobnych nowych mieszkań.
Przedsiębiorstwo Budowlane Eko-Dom
Strona internetowa inwestycjiAdres biura sprzedaży:
ul. Sportowa 19, 05-530 Góra KalwariaGodziny otwarcia biura sprzedaży:
- Poniedziałek: 08:00 - 17:00
- Wtorek: 08:00 - 17:00
- Środa: 08:00 - 17:00
- Czwartek: 08:00 - 17:00
- Piątek: 08:00 - 17:00
- Sobota: 09:00 - 13:00





