Mieszkanie na sprzedaż 2 pokoje o powierzchni 39,89 m² numer 4
Inwestycja:
Osiedle Polna bud. 5Deweloper:
Przedsiębiorstwo Budowlane Eko-Dom
Inwestycja:
Osiedle Polna bud. 5Deweloper:
Przedsiębiorstwo Budowlane Eko-DomGóra Kalwaria, ul. Polna
Góra Kalwaria, ul. Polna
Termin oddania
4 kw. 2026
Ilość pokoi
2 pokoje
Metraż
39,89 m²
Piętro
Parter
Strona świata
wschód
Powierzchnie dodatkowe
Ogródek
Kuchnia
otwarta kuchnia
Wysokość pomieszczeń
od 260 do 280 cm wysokości
Ilość poziomów
1 poziom
Oznaczenie oferty
4

Raport o deweloperze
Poznaj dewelopera bliżej! Pobierz raport, w którym znajdziesz kluczowe informacje o firmie, jej doświadczeniu, nagrodach oraz aktualnych i zrealizowanych inwestycjach.
Budynek i otoczenie
Miejsca postojowe | |
|---|---|
Standard wykończenia | standard deweloperski |
Realizacja inwestycji | rozpoczęcie budowy w 4 kw. 2025 roku, planowane oddanie do użytkowania w 4 kw. 2026 roku |
Udogodnienia | plac zabaw, monitoring, internet, przystosowane dla niepełnosprawnych, winda, rowerownia, własna kotłownia, wózkarnia, patio / dziedziniec |
Przyroda | informacja u dewelopera |
Charakterystyka energetyczna nieruchomości | informacja u dewelopera |
Rezerwacja i finanse
Rodzaj własności | Odrębna własność z własnością gruntu |
|---|---|
Wysokość czynszu | informacja u dewelopera |
Warunki rezerwacji | Informacja u dewelopera |
Zabezpieczenie środków | Informacja u dewelopera |
Zdjęcia z budowy
Zobacz na jakim etapie budowy jest ta inwestycja
Lokalizacja inwestycji
Stacja kolejowa - Góra Kalwaria - 1373 m
Przystanek Autobusowy - 415 m
Dojazd do centrum Warszawy: pokaż
W pobliżu 1 km od tej inwestycji znajdują się:
12 kawiarni i restauracji, 19 sklepów, 13 obiektów sportowych, 14 placówek medycznych, 18 placówek edukacyjnych, 11 placów zabaw
Przeczytaj więcej o lokalizacji
Góra Kalwaria to miasto województwa mazowieckiego, położone nad Wisłą, w odległości 34 km od centrum Warszawy. Na obszarze o powierzchni liczącej prawie 14 km2 zamieszkuje ponad 11 tys. osób. Zabytkowy układ urbanistyczny miasta oparty jest na planie krzyża łacińskiego, a zabudowę mieszkaniową stanowią: domy jednorodzinne i wielorodzinne, kamienice oraz niskie bloki. Do obiektów zabytkowych należą budynki klasycystyczne: Ratusz oraz Remiza strażacka. W mieście zlokalizowanych jest kilka większych zakładów produkcyjnych oraz wiele małych firm zajmujących się handlem lub usługami. Na bazę turystyczną składają się m.in. hotele, restauracje, muzeum etnograficzne, kino i obiekty sportowe, jak Stadion Miejski czy Zespół Basenowo-Rekreacyjny.
Opis oferty
Nowe 2-pokojowe mieszkanie na sprzedaż o powierzchni 39,89 m² znajduje się w nowo budowanej inwestycji deweloperskiej Osiedle Polna bud. 5 w Górze Kalwarii, ul. Polna (15.7 km od Warszawy).
Inwestycja jest realizowana przez Przedsiębiorstwo Budowlane Eko-Dom.
Cała inwestycja składa się z 1 budynku, w którym łącznie znajduje się 30 nowych mieszkań.
Na sprzedaż pozostają 24 oferty o powierzchni od 38 do 59 m².
W budynku są 4 kondygnacje naziemne. Budynek nie posiada kondygnacji podziemnych.
Inwestycja Osiedle Polna bud. 5 jest w trakcie budowy z planowanym na 4 kw. 2026 roku terminem oddania do użytkowania.
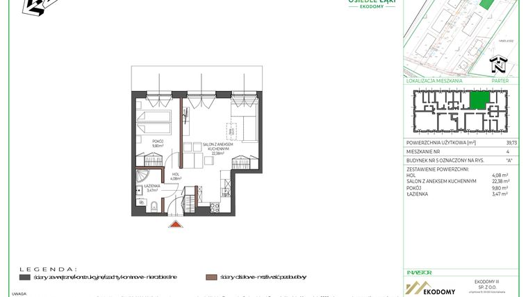
Nowe mieszkanie o oznaczeniu 4 znajduje się na parterze i jest 1-poziomowe. Pomieszczenia mają od 260 do 280 centymetrów wysokości. W mieszkaniu znajdują się 2 pokoje.
Okna w mieszkaniu wychodzą na wschód.
Wschodnia orientacja zapewnia dostęp do łagodnego porannego światła, idealnego dla rozpoczęcia dnia pełnego energii. Wnętrza pozostają jasne, ale nieprzegrzane, co sprzyja utrzymaniu komfortowej temperatury. Przebywanie w pomieszczeniu z oknami na wschód inspiruje do działania i pozytywnie wpływa na poranny rytuał.
Dla przyszłych mieszkańców Osiedle Polna bud. 5 deweloper przewidział miejsca postojowe naziemne.
Dzięki temu przyszli właściciele nie będą musieli poszukiwać wolnej przestrzeni parkingowej.
Mieszkanie znajduje się w inwestycji Osiedle Polna bud. 5, w której znajduje się w sprzedaży jeszcze 15 podobnych nowych mieszkań.
Przedsiębiorstwo Budowlane Eko-Dom
Strona internetowa inwestycjiAdres biura sprzedaży:
ul. Sportowa 19, 05-530 Góra KalwariaGodziny otwarcia biura sprzedaży:
- Poniedziałek: 08:00 - 17:00
- Wtorek: 08:00 - 17:00
- Środa: 08:00 - 17:00
- Czwartek: 08:00 - 17:00
- Piątek: 08:00 - 17:00
- Sobota: 09:00 - 13:00





