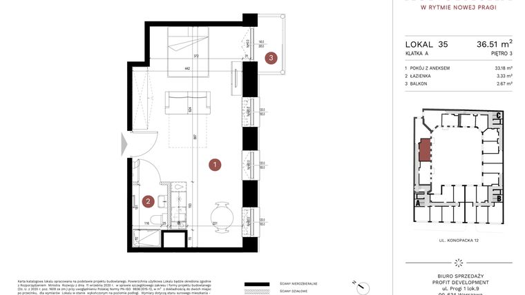
Mieszkanie na sprzedaż 1 pokój o powierzchni 35,82 m² numer A-KL-A.35
Inwestycja:
KonopackaDeweloper:
PROFIT Development
Inwestycja:
KonopackaDeweloper:
PROFIT DevelopmentWarszawa, Praga-Północ, Nowa Praga, ul. Konopacka
Warszawa, Praga-Północ, Nowa Praga, ul. Konopacka
Termin oddania
Gotowe
Ilość pokoi
1 pokój
Metraż
35,82 m²
Piętro
3 piętro
Powierzchnie dodatkowe
Balkon
Kuchnia
otwarta kuchnia
Wysokość pomieszczeń
od 250 do 339 cm wysokości
Ilość poziomów
1 poziom
Oznaczenie oferty
A-KL-A.35

Raport o deweloperze
Poznaj dewelopera bliżej! Pobierz raport, w którym znajdziesz kluczowe informacje o firmie, jej doświadczeniu, nagrodach oraz aktualnych i zrealizowanych inwestycjach.
Budynek i otoczenie
Miejsca postojowe | |
|---|---|
Komórki lokatorskie | dostępne |
Standard wykończenia | standard deweloperski |
Realizacja inwestycji | rozpoczęcie budowy w 3 kw. 2023 roku, inwestycja została oddana do użytkowania w 2 kw. 2025 roku |
Udogodnienia | monitoring, rowerownia, patio / dziedziniec |
Przyroda | w okolicy inwestycji znajduje się park, rzeka |
Charakterystyka energetyczna nieruchomości |
|
Rezerwacja i finanse
Rodzaj własności | Odrębna własność z własnością gruntu |
|---|---|
Wysokość czynszu | informacja u dewelopera |
Warunki rezerwacji | Informacja u dewelopera |
Zabezpieczenie środków | informacja u dewelopera |
Zdjęcia z budowy
Zobacz na jakim etapie budowy jest ta inwestycja
Lokalizacja inwestycji
Metro - Szwedzka - 585 m
Przystanek Tramwajowy - 74 m
Przystanek Autobusowy - 63 m
Dojazd do centrum: pokaż
W pobliżu 1 km od tej inwestycji znajdują się:
118 kawiarni i restauracji, 98 sklepów, 64 obiekty sportowe, 23 placówki medyczne, 88 placówek edukacyjnych, 57 placów zabaw
Przeczytaj więcej o lokalizacji
Praga-Północ to niewielka, położona na prawym brzegu Wisły, dzielnica Warszawy, która słynie z przedwojennej architektury, a także cieszy się popularnością ze względu na relikty tzw. warszawskiego folkloru. Wzdłuż ulicy Targowej usytuowane zostały najstarsze, stylowe kamienice, we wnętrzach których znajdują się obecnie galerie sztuki, pracownie artystyczne, kawiarnie i restauracje. Zabytkowa architektura stanowi także część zabudowy Nowej Pragi oraz Szmulowizny, lecz występują tu także rozległe socrealistyczne blokowiska. Nowe inwestycje mieszkaniowe powstają natomiast w malowniczym rejonie Portu Praskiego. Największymi kompleksami przyrodniczymi na terenie dzielnicy są Park Praski i Ogród Zoologiczny. Znajduje się tu również kino i aż 4 teatry. Z Pragi-Północ jest zaledwie 10 minut drogi do centrum miasta, gdzie można dotrzeć tramwajem, autobusem, a także drugą linią metra. Ważne arterie dzielnicy to Al. Solidarności i ulice: Targowa, Jagiellońska, Szwedzka.
Opis oferty
Nowe 1-pokojowe mieszkanie na sprzedaż o powierzchni 35,82 m² znajduje się w nowo budowanej inwestycji deweloperskiej Konopacka na Nowej Pradze, ul. Konopacka (3.8 km od centrum Warszawy).
Inwestycja jest realizowana przez PROFIT Development.
Cała inwestycja składa się z 1 budynku, w którym łącznie znajduje się 149 nowych mieszkań.
Na sprzedaż pozostaje 51 ofert o powierzchni od 25 do 46 m².
W budynku jest od 6 do 8 kondygnacji naziemnych oraz 1 kondygnacja podziemna.
Inwestycja Konopacka została wybudowana i oddana do użytkowania w 2 kw. 2025 roku.
Nowe mieszkanie o oznaczeniu A-KL-A.35 znajduje się na 3 piętrze i jest 1-poziomowe. Pomieszczenia mają od 250 do 339 centymetrów wysokości. W mieszkaniu znajduje się 1 pokój.
Dla przyszłych mieszkańców Konopacka deweloper nie przewidział miejsc postojowych.
Opis Inwestycji
Okazyjna cena
Tereny zielone
Pow. dodatkowe
W RYTMIE NOWEJ PRAGI
Praga to wyjątkowa dzielnica Warszawy, która od kilku lat przechodzi proces rewitalizacji. Konopacka, to inwestycja zlokalizowana w samym jej centrum i otoczona piękną, historyczną zabudową. Sam projekt, to nietuzinkowa koncepcja łącząca starą, zabytkową część budynku z nową, współczesną formą, która domknie pierzeję ulicy.
Jedną część projektu stanowi zabytkowa oficyna, odtwarzana zgodnie z zaleceniami konserwatora zabytków, z zachowaniem pierwotnych elementów balkonów i piękną, drewnianą klatką schodową. Oryginalne będą również oznaczenia mieszkań i kolorystyka. Każdy element projektu jest starannie zaprojektowany tak, aby jak najlepiej odtworzyć jego dawny charakter. Wysokość mieszkań wyniesie tu do 3,39 m, a elewacja wykończona zostanie tynkiem renowacyjnym.
30 MIESZKAŃ
1-2 POKOJE, O POWIERZCHNIACH OD 25,25 M2 DO 49,69 M2
Druga część to zupełnie nowa, dobudowana tkanka, stanowiąca wspólną bryłę z zabytkową kamienicą. Nowy budynek wyróżni współczesna, prosta i ponadczasowa architektura. Średnia powierzchnia mieszkań to ok. 30 m2. Z tarasów na ostatnim pietrze rozpościerać się będzie widok na centrum Warszawy. Budynek wyposażony zostanie w komórki lokatorskie, rowerownie i stację naprawy rowerów, a także ogólnodostępną pralnię oraz monitoring.
119 MIESZKAŃ
1-3 POKOJE O POWIERZCHNIACH OD 25,17 M2 DO 59,79 M2
BALKONY I TARASY
Mieszkanie znajduje się w inwestycji Konopacka, w której znajduje się w sprzedaży jeszcze 45 podobnych nowych mieszkań.
PROFIT Development
Strona internetowa inwestycjiAdres biura sprzedaży:
Warszawa, Polna Corner, ul. Progi 1 lok. 9




