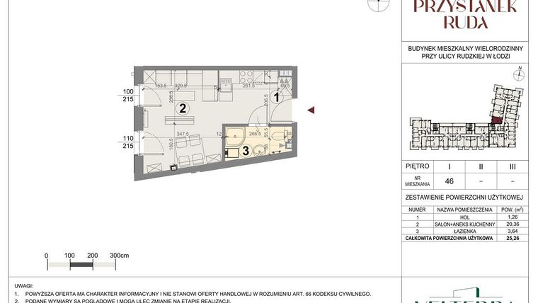
Mieszkanie na sprzedaż 1 pokój o powierzchni 25,48 m² numer 46
Oferta archiwalna
Inwestycja:
Przystanek RudaDeweloper:
Platforma Mieszkaniowa
Inwestycja:
Przystanek RudaDeweloper:
Platforma MieszkaniowaŁódź, Górna, Ruda, ul. Rudzka
Łódź, Górna, Ruda, ul. Rudzka
Nieruchomość została sprzedana
Zobacz pozostałe mieszkania w inwestycji Przystanek Ruda lub inne propozycje na osiedlu Ruda
Najbliższe inwestycje
- Apartamenty Tabelowa to kameralne osiedle składające się z 3 budynków wielorodzinnych o niebanalnej architekturze. Lokalizacja osiedla w bezpośrednim sąsiedztwie lasu Popioły gwarantuje ciszę, spokój, świeże powietrze oraz możliwość obcowania z naturą o każdej porze roku. W najbliższym otoczeniu znajduje się wszystko, co niezbędne do wygodnego funkcjonowania: komunikacja miejska, sklepy, szkoła
2 kwartał 2026
Łódź, Górna, Ruda,
ul. Tabelowa 27
2-4 pokoje, Metraż 46-75 m2
- Twoje miejsce w Łodzi W południowej części Łodzi, pomiędzy Stawami Stefańskiego a dużym kompleksem handlowym Port Łódź powstaje przyjazne rodzinom osiedle Boska Ksawerowska. Położony w niedalekim sąsiedztwie drogi krajowej, z doskonałym dojazdem zarówno do centrum Łodzi, jak i największych polskich miast, a jednocześnie spowity zielenią i otoczony naturą – taki może być Twój nowy dom. Budynki
1 kwartał 2026
Łódź, Górna, Ruda, ul. Pabianicka
3 pokoje, Metraż 49-50 m2
- Twoje miejsce w Łodzi W południowej części Łodzi, pomiędzy Stawami Stefańskiego a dużym kompleksem handlowym Port Łódź powstaje przyjazne rodzinom osiedle Boska Ksawerowska. Położony w niedalekim sąsiedztwie drogi krajowej, z doskonałym dojazdem zarówno do centrum Łodzi, jak i największych polskich miast, a jednocześnie spowity zielenią i otoczony naturą – taki może być Twój nowy dom. Budynki
1 kwartał 2026
Łódź, Górna, Ruda, ul. Pabianicka
3 pokoje, Metraż 49-50 m2
Termin oddania
3 kw. 2026
Ilość pokoi
1 pokój
Metraż
25,48 m²
Piętro
1 piętro
Kuchnia
otwarta kuchnia
Wysokość pomieszczeń
od 260 do 280 cm wysokości
Ilość poziomów
1 poziom
Oznaczenie oferty
46

Raport o deweloperze
Poznaj dewelopera bliżej! Pobierz raport, w którym znajdziesz kluczowe informacje o firmie, jej doświadczeniu, nagrodach oraz aktualnych i zrealizowanych inwestycjach.
Budynek i otoczenie
Miejsca postojowe | |
|---|---|
Standard wykończenia | standard deweloperski |
Realizacja inwestycji | rozpoczęcie budowy w 2 kw. 2024 roku, planowane oddanie do użytkowania w 3 kw. 2026 roku |
Udogodnienia | winda |
Przyroda | informacja u dewelopera |
Charakterystyka energetyczna nieruchomości | informacja u dewelopera |
Rezerwacja i finanse
Rodzaj własności | informacja u dewelopera |
|---|---|
Wysokość czynszu | informacja u dewelopera |
Warunki rezerwacji | Informacja u dewelopera |
Zabezpieczenie środków | Informacja u dewelopera |
Lokalizacja inwestycji
Stacja kolejowa - Łódź Pabianicka - 2867 m
Przystanek Tramwajowy - 1294 m
Przystanek Autobusowy - 38 m
Dojazd do centrum: pokaż
W pobliżu 1 km od tej inwestycji znajdują się:
3 kawiarnie i restauracje, 3 sklepy, 44 obiekty sportowe, 2 placówki medyczne, 17 placówek edukacyjnych, 4 place zabaw
Przeczytaj więcej o lokalizacji
Południowa część Łodzi rozciągnięta na powierzchni ok. 70 km. kw i zamieszkana jest przez 170 tys. osób. Dzielnica dzieli się na rejony Chojny-Dąbrowa, Chojny, Górniak, Piastów-Kurak, Rokicie, Ruda, Nad Nerem, Wiskitno. Główne ulice dzielnicy to u. Pabianicka, ul. Rzgowska i odchodząca od niej w kierunku wschodnim ul. Jarosława Dąbrowskiego. To dzielnica bogata w parki i ośrodki rekreacyjne, takie jak Stawy Jana, Młynek, Rudzka Góra czy Las Ruda Popioły. Na terenie dzielnicy znajdują się też zabytki takie, jak dwór Benedykta Górskiego, Muzeum Włókiennictwa, Willa Ferdynanda Koninga czy liczne parki. Dzielnica jest doskonale skomunikowana dzięki sieci komunikacji miejskiej ale też dworcowi PKP Łódź Chojny i położonego we wschodniej części dzielnicy portowi lotniczemu. Dzielnica ma dobry odstęp do punktów usługowych dzięki kilku hipermarketom, centrum handlowemu Guliwer i supermarketom budowlanym. Zabudowa mieszkalna to głównie bloki, przedwojenne kamienice i robotnicze domki jednorodzinne. Mieszczą się tu też cmentarze katolickie i ewangelicko-augsburski. Główne centrum handlowe to Guliwer z hipermarketem Carrefour.
Opis oferty
Nowe 1-pokojowe mieszkanie na sprzedaż o powierzchni 25,48 m² znajduje się w nowo budowanej inwestycji deweloperskiej Przystanek Ruda na osiedlu Ruda, ul. Rudzka (6.6 km od centrum Łodzi).
Sprzedaż prowadzi Platforma Mieszkaniowa.
Cała inwestycja składa się z 1 budynku, w którym łącznie znajduje się 45 nowych mieszkań.
Na sprzedaż pozostaje 36 ofert o powierzchni od 25 do 81 m².
W budynku są 4 kondygnacje naziemne. Budynek nie posiada kondygnacji podziemnych.
Inwestycja Przystanek Ruda jest w trakcie budowy z planowanym na 3 kw. 2026 roku terminem oddania do użytkowania.
Nowe mieszkanie o oznaczeniu 46 znajduje się na 1 piętrze i jest 1-poziomowe. Pomieszczenia mają od 260 do 280 centymetrów wysokości. W mieszkaniu znajduje się 1 pokój.
Dla przyszłych mieszkańców Przystanek Ruda deweloper przewidział miejsca postojowe podziemne, miejsca postojowe naziemne.
Dzięki temu przyszli właściciele nie będą musieli poszukiwać wolnej przestrzeni parkingowej. Dodatkowo, miejsce postojowe w garażu podziemnym zabezpiecza przed niekorzystnymi warunkami atmosferycznymi.
Mieszkanie znajduje się w inwestycji Przystanek Ruda, w której znajduje się w sprzedaży jeszcze 12 podobnych nowych mieszkań.





