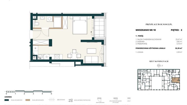
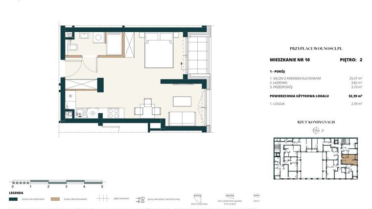
Mieszkanie na sprzedaż 1 pokój o powierzchni 32,21 m² numer 2. M10.
Inwestycja:
Przy Placu WolnościDeweloper:
Platforma Mieszkaniowa
Inwestycja:
Przy Placu WolnościDeweloper:
Platforma MieszkaniowaŁódź, Śródmieście, Katedralna, ul. Pomorska 9
Łódź, Śródmieście, Katedralna, ul. Pomorska 9
Termin oddania
2 kw. 2028
Ilość pokoi
1 pokój
Metraż
32,21 m²
Piętro
2 piętro
Kuchnia
otwarta kuchnia
Wysokość pomieszczeń
od 260 do 280 cm wysokości
Ilość poziomów
1 poziom
Oznaczenie oferty
2. M10.

Raport o deweloperze
Poznaj dewelopera bliżej! Pobierz raport, w którym znajdziesz kluczowe informacje o firmie, jej doświadczeniu, nagrodach oraz aktualnych i zrealizowanych inwestycjach.
Budynek i otoczenie
Miejsca postojowe | |
|---|---|
Standard wykończenia | standard deweloperski |
Realizacja inwestycji | rozpoczęcie budowy w 3 kw. 2025 roku, planowane oddanie do użytkowania w 2 kw. 2028 roku |
Udogodnienia | winda, sauna, rowerownia, sala fitness |
Przyroda | informacja u dewelopera |
Charakterystyka energetyczna nieruchomości | informacja u dewelopera |
Rezerwacja i finanse
Rodzaj własności | informacja u dewelopera |
|---|---|
Wysokość czynszu | informacja u dewelopera |
Warunki rezerwacji | Informacja u dewelopera |
Zabezpieczenie środków | Informacja u dewelopera |
Zdjęcia z budowy
Zobacz na jakim etapie budowy jest ta inwestycja
Lokalizacja inwestycji
Stacja kolejowa - Łódź Fabryczna - 1146 m
Przystanek Tramwajowy - 131 m
Przystanek Autobusowy - 130 m
Dojazd do centrum: pokaż
W pobliżu 1 km od tej inwestycji znajdują się:
151 kawiarni i restauracji, 117 sklepów, 47 obiektów sportowych, 39 placówek medycznych, 59 placówek edukacyjnych, 34 place zabaw
Przeczytaj więcej o lokalizacji
Łódzkie Śródmieście to obszar w kształcie litery „L” ograniczony ulicami Północną, Piotrkowską i Kilińskiego. Najbardziej rozpoznawalną ulicą Śródmieścia, jak i całej Łodzi, jest ulica Piotrkowska. To tu koncentruje się życie kulturalne i rozrywkowe miasta. Ze Śródmieścia można nie tylko wygodnie dojechać do każdej dzielnicy miasta, ale też w ciągu ok. godziny znaleźć się w Warszawie dzięki położonej tu stacji PKP Łódź Fabryczna. Centrum miasta składa się głównie z przedwojennej zabudowy, czyli kamienic, uzupełnionych wielomieszkaniową zabudową powojenną. Znajduje się tu Uniwersytet Łódzki, główny ośrodek naukowy w mieście. To też doskonały dostęp do szpitali, bo w Śródmieściu ulokowane są dwa szpitale miejskie. Dzielnica otoczona jest terenami zielonymi ,takimi jak Park Piłsudskiego czy Park Poniatowskiego. Nowe budownictwo sąsiaduje tu więc z licznymi miejscami do aktywnego wypoczynku jak i zabytkami.
Opis oferty
Nowe 1-pokojowe mieszkanie na sprzedaż o powierzchni 32,21 m² znajduje się w nowo budowanej inwestycji deweloperskiej Przy Placu Wolności na Katedralnej, ul. Pomorska 9 (1.9 km od centrum Łodzi).
Sprzedaż prowadzi Platforma Mieszkaniowa.
Cała inwestycja składa się z 1 budynku, w którym łącznie znajdują się 62 nowe mieszkania.
Na sprzedaż pozostaje 49 ofert o powierzchni od 26 do 67 m².
W budynku jest 6 kondygnacji naziemnych oraz 1 kondygnacja podziemna.
Inwestycja Przy Placu Wolności jest w trakcie budowy z planowanym na 2 kw. 2028 roku terminem oddania do użytkowania.
Nowe mieszkanie o oznaczeniu 2. M10. znajduje się na 2 piętrze i jest 1-poziomowe. Pomieszczenia mają od 260 do 280 centymetrów wysokości. W mieszkaniu znajduje się 1 pokój.
Dla przyszłych mieszkańców Przy Placu Wolności deweloper przewidział miejsca postojowe podziemne.
Dzięki temu przyszli właściciele nie będą musieli poszukiwać wolnej przestrzeni parkingowej. Dodatkowo, miejsce postojowe w garażu podziemnym zabezpiecza przed niekorzystnymi warunkami atmosferycznymi.
Opis Inwestycji
Tereny zielone
Już od pierwszego kroku poczujesz wyjątkową atmosferę miejsca, w którym design spotyka się z naturą. Zielona ściana z roślinnością i ścianą wodną tworzy kojącą przestrzeń, sprzyjającą wyciszeniu i relaksowi. Całość dopełnia ogród japoński, którego harmonia i elegancja nadają budynkowi unikalny, spokojny charakter.
Zamieszkaj lepiej w centrum Łodzi
Poznaj inwestycję, która wyznacza nowy standard życia w mieście. Apartamenty rozpoczynają się od pierwszego piętra, a każdy z nich posiada prywatny taras lub elegancką loggię, gdzie chwile relaksu nabierają wyjątkowego charakteru. Dla tych, którzy marzą o jeszcze większej przestrzeni i niepowtarzalnym stylu życia, przewidziano możliwość łączenia lokali w imponujące apartamenty lub luksusowe penthousy z panoramicznym widokiem.
Budynek zachwyca swoją architekturą – fasadę zdobi ściana wody i zielona ściana roślinna, które łączą prestiż z nowoczesną ekologią. To inwestycja stworzona dla osób, które oczekują więcej.
Mieszkanie znajduje się w inwestycji Przy Placu Wolności, w której znajduje się w sprzedaży jeszcze 31 podobnych nowych mieszkań.





