Apartament na sprzedaż 2 pokoje o powierzchni 63,66 m² numer 5.06
Promocja
Inwestycja:
Pino ResortDeweloper:
Platforma Mieszkaniowa
Inwestycja:
Pino ResortDeweloper:
Platforma MieszkaniowaGdańsk, Wyspa Sobieszewska, ul. Turystyczna 90
Gdańsk, Wyspa Sobieszewska, ul. Turystyczna 90
Termin oddania
Gotowe
Ilość pokoi
2 pokoje
Metraż
63,66 m²
Piętro
Parter
Strona świata
zachód, południe
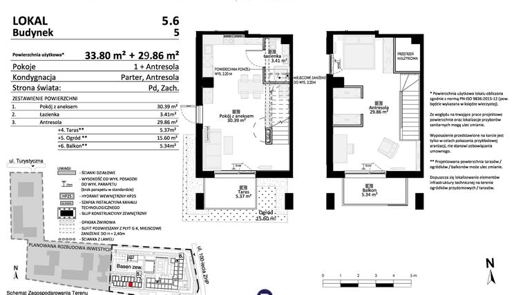
Powierzchnie dodatkowe
Balkon, Taras, Ogródek
Wysokość pomieszczeń
od 260 do 280 cm wysokości
Ilość poziomów
1 poziom + antresola
Oznaczenie oferty
5.06

Raport o deweloperze
Poznaj dewelopera bliżej! Pobierz raport, w którym znajdziesz kluczowe informacje o firmie, jej doświadczeniu, nagrodach oraz aktualnych i zrealizowanych inwestycjach.
Budynek i otoczenie
Miejsca postojowe | |
|---|---|
Standard wykończenia | standard deweloperski |
Realizacja inwestycji | rozpoczęcie budowy w 2 kw. 2023 roku, inwestycja została oddana do użytkowania w 3 kw. 2024 roku |
Udogodnienia | basen |
Przyroda | w okolicy inwestycji znajduje się morze |
Charakterystyka energetyczna nieruchomości |
|
Rezerwacja i finanse
Rodzaj własności | Odrębna własność z własnością gruntu |
|---|---|
Wysokość czynszu | informacja u dewelopera |
Warunki rezerwacji | Informacja u dewelopera |
Zabezpieczenie środków | Informacja u dewelopera |
Zdjęcia z budowy
Zobacz na jakim etapie budowy jest ta inwestycja
Lokalizacja inwestycji
Przystanek Autobusowy - 245 m
Dojazd do centrum: pokaż
W pobliżu 1 km od tej inwestycji znajdują się:
1 plac zabaw
Przeczytaj więcej o lokalizacji
Gdańsk to miasto położone na północy Polski w bezpośrednim sąsiedztwie Morza Bałtyckiego (Zatoka Gdańska). Ok 100 m. dzieli granice Gdańska od Pruszcza Gdańskiego, 30 km od Elbląga, 7 km od Sopotu i 12 km od Gdyni. Panorama Gdańska to zarówno przedwojenne zabytki jak i kamienice odbudowane po wojnie, a także bloki i domki jednorodzinne. Gdańsk składa się z kilkudziesięciu dzielnic, w tym Aniołki, Oliwa, Przymorze Wielkie, Strzyża, Śródmieście, Ujeścisko-Łostowice i Wyspa Sobieszewska. To ważny ośrodek naukowy z Uniwersytetem Gdańskim, Politechniką Gdańską czy Gdańskim Uniwersytetem Medycznym na czele. Za kulturę odpowiada m.in. Filharmonia Bałtycka, Opera Bałtycka, Teatr Wybrzeże, Gdański Teatr Szekspirowski oraz Muzeum Narodowe. Ofertę kulturalną uzupełniają zabytki od średniowiecznych po te najnowsze (Stocznia Gdańska).
Opis oferty
Pino Resort, Wyspa Sobieszewska
1 km od plaży | las sosnowy | basen | boisko | balkon lub ogród | nowoczesny design
UDOGODNIENIA
- Kameralna zabudowa – tylko 61 apartamentów
- Zaledwie 1 km od nadbałtyckiej plaży
- Sąsiedztwo lasu sosnowego i łąk nad kanałem Młynówka
- Zewnętrzny basen i plac zabaw
- Boisko do siatkówki i strefa rekreacji
- Nowoczesny design części wspólnych
- Blisko rezerwatu przyrody Ptasi Raj
Pino Resort to kameralna inwestycja w jednym z najmodniejszych dziś rejonów Gdańska - na Wyspie Sobieszewskiej, otoczona naturą i zaprojektowana z myślą o relaksie. Bezpośrednie sąsiedztwo inwestycji to nadmorski las sosnowy oraz tereny łąkowe rozciągające się nad kanałem Młynówka. W pobliżu znajduje się rezerwat przyrody Ptasi Raj, gdzie można podziwiać ponad 300 gatunków ptaków, w tym rzadkich i chronionych.
Na terenie osiedla znajduje się basen zewnętrzny, boisko do siatkówki i przestrzeń rekreacyjna, które dopełniają atmosferę wypoczynku. To idealne miejsce zarówno do życia, jak i inwestycji w wynajem.
Apartamenty gotowe do odbioru w stanie deweloperskim lub wykończone. Również możesz skorzystać z usług działu aranżacji wnętrz Dekpol Deweloper, który pomoże stworzyć przestrzeń dopasowaną do Twoich potrzeb i gustu. Wypełnij formularz kontaktowy aby skontaktować się z naszymi doradcami, dowiedzieć się więcej o ofercie i zarezerwować wybrany apartament.
Nowy 2-pokojowy apartament na sprzedaż o powierzchni 63,66 m² znajduje się w nowo budowanej inwestycji deweloperskiej Pino Resort na Wyspie Sobieszewskiej, ul. Turystyczna 90 (14 km od centrum Gdańska).
Sprzedaż prowadzi Platforma Mieszkaniowa.
Cała inwestycja składa się z 2 budynków, w których łącznie znajduje się 61 nowych apartamentów.
Na sprzedaż pozostaje 18 ofert o powierzchni od 38 do 70 m².
W budynkach są 2 kondygnacje naziemne. Budynek nie posiada kondygnacji podziemnych.
Inwestycja Pino Resort została wybudowana i oddana do użytkowania w 3 kw. 2024 roku.
Nowy apartament o oznaczeniu 5.06 znajduje się na parterze i jest 1-poziomowy. Pomieszczenia mają od 260 do 280 centymetrów wysokości. W apartamencie znajdują się 2 pokoje.
Okna w apartamencie wychodzą na zachód, południe.
Okna wychodzące na południe gwarantują maksymalną ilość naturalnego światła, co czyni wnętrza jasnymi i ciepłymi. Dodatkowo południowa ekspozycja pomaga obniżyć koszty ogrzewania w zimie. Okna na południe są idealne dla osób pragnących cieszyć się jasnym otoczeniem, które sprzyja dobremu samopoczuciu oraz pozytywnej energii.
Zachodnia ekspozycja to gwarancja intensywnego popołudniowego światła, które nadaje wnętrzom przytulności i ciepła. Idealne dla miłośników słonecznych wieczorów, którzy pragną cieszyć się pięknymi zachodami słońca we własnym domu. Zachodnie światło podkreśla kolory i faktury w aranżacji wnętrz, tworząc atmosferę sprzyjającą relaksowi po długim dniu.
Dla przyszłych mieszkańców Pino Resort deweloper przewidział miejsca postojowe naziemne.
Dzięki temu przyszli właściciele nie będą musieli poszukiwać wolnej przestrzeni parkingowej.
Opis Inwestycji
Pow. dodatkowe
Apartamenty nad morzem, idealne do życia lub zainwestowania
W pierwszym etapie inwestycji powstanie 61 luksusowych apartamentów, ulokowanych w niskich, kameralnych budynkach. Jedno i dwupokojowe lokale liczyć będą od 35 mkw. do 69 mkw., a część z nich zostanie wzbogacona o antresolę, która uatrakcyjni przestrzeń. Każdy apartament posiadać będzie balkon lub ogródek, zapewniając idealne miejsce do relaksu.
Na terenie Pino Resort znajdą się zarówno miejsca parkingowe jak i stojaki na rowery, aby zapewnić najwyższy komfort naszym mieszkańcom.
Apartament znajduje się w inwestycji Pino Resort, w której znajduje się w sprzedaży jeszcze 20 podobnych nowych apartamentów.





