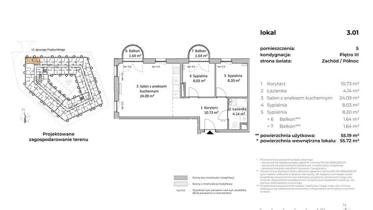
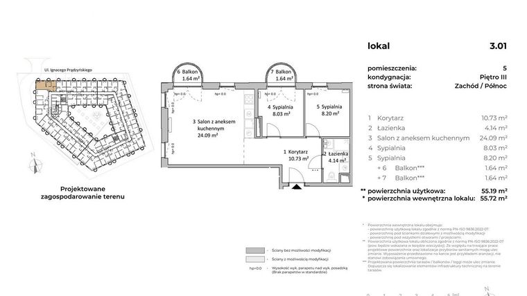
Mieszkanie na sprzedaż 3 pokoje o powierzchni 55,19 m² numer 3.01
Rezerwacja
Inwestycja:
OVAL SKYDeweloper:
Platforma Mieszkaniowa
Inwestycja:
OVAL SKYDeweloper:
Platforma MieszkaniowaWarszawa, Wola, Czyste, ul. Prądzyńskiego 21
Warszawa, Wola, Czyste, ul. Prądzyńskiego 21
Termin oddania
Gotowe
Ilość pokoi
3 pokoje
Metraż
55,19 m²
Piętro
3 piętro
Strona świata
zachód, północ
Powierzchnie dodatkowe
Balkon
Wysokość pomieszczeń
od 260 do 280 cm wysokości
Ilość poziomów
1 poziom
Oznaczenie oferty
3.01

Raport o deweloperze
Poznaj dewelopera bliżej! Pobierz raport, w którym znajdziesz kluczowe informacje o firmie, jej doświadczeniu, nagrodach oraz aktualnych i zrealizowanych inwestycjach.
Budynek i otoczenie
Miejsca postojowe | |
|---|---|
Standard wykończenia | wykończenie pod klucz |
Realizacja inwestycji | rozpoczęcie budowy w 4 kw. 2024 roku, inwestycja została oddana do użytkowania w 1 kw. 2026 roku |
Udogodnienia | monitoring, sauna, sala fitness, instalacja fotowoltaiczna |
Przyroda | w okolicy inwestycji znajduje się park |
Charakterystyka energetyczna nieruchomości | informacja u dewelopera |
Rezerwacja i finanse
Rodzaj własności | Odrębna własność z użytkowaniem wieczystym gruntu |
|---|---|
Wysokość czynszu | informacja u dewelopera |
Warunki rezerwacji | Informacja u dewelopera |
Zabezpieczenie środków | Informacja u dewelopera |

Zdjęcia z budowy i widok 3D
Zobacz na jakim etapie budowy jest ta inwestycja
Lokalizacja inwestycji
Metro - Płocka - 961 m
Przystanek Tramwajowy - 413 m
Przystanek Autobusowy - 26 m
Dojazd do centrum: pokaż
W pobliżu 1 km od tej inwestycji znajdują się:
47 kawiarni i restauracji, 72 sklepy, 23 obiekty sportowe, 43 placówki medyczne, 32 placówki edukacyjne, 37 placów zabaw
Przeczytaj więcej o lokalizacji
Znajdująca się w lewobrzeżnej części Warszawy, w bezpośrednim sąsiedztwie Śródmieścia, dzielnica Wola należy do najgęściej i najliczniej zaludnionych rejonów miasta. Dawny teren przemysłowy, na którym niegdyś powstały wielkie blokowiska, do dnia dzisiejszego stanowi skupisko wysokościowców. Współczesna architektura to przede wszystkim nowoczesne, postmodernistyczne biurowce, jak Atrium, budynki Kredyt Banku czy najwyższy na Woli drapacz – Warsaw Trade Tower. Atrakcyjne położenie dzielnicy sprzyja również dynamicznemu rozwojowi wysokiego budownictwa mieszkaniowego. Współczesna Wola to także ważny ośrodek życia kulturalnego, gdyż znajdują się tu znane w kraju i na świecie placówki muzealne: Muzeum Powstania Warszawskiego, Muzeum Historii Żydów Polskich oraz Muzeum Więzienia Pawiak, a ponadto: teatry, galerie sztuki i klubokawiarnie. Na tereny zielone dzielnicy składają się 4 parki i Lasek na Kole, a najważniejsze arterie to Al. Jana Pawła II i Trasa W-Z.
Opis oferty
OVAL SKY ,Wola
restauracja | sauna | strefa coworkingowa | lobby | sala kinowa | bilard
LOKALIZACJA
- Warszawa Zachodnia 2 minuty
- Warszawa Centralna 10 minut
- M. Rondo Daszyńskiego 3 minuty
- centrum 5 minut - lotnicko 10 minut
- vis’a vis centrum EXPO XXI
Inwestycja doskonale skomunikowana z centrum miasta, co czyni je idealnym wyborem zarówno dla krótkoterminowych, jak i długoterminowych wynajmów. Warszawska Wola to jedno z najbardziej atrakcyjnych miejsc do inwestowania w nieruchomości. Kupno apartamentu w OVAL SKY to pewna inwestycja w przyszłość, z możliwością atrakcyjnych zysków z wynajmu.
W ofercie znajduje się 333 apartamenty o powierzchni od 26 do 56 m². Każdy lokal można wykończyć pod klucz według standardu Grano Hotels i oddać go w zarządzanie tej renomowanej spółce. To gwarancja wysokiej jakości i profesjonalnej obsługi.
Chcesz dowiedzieć się więcej? Umów się na spotkanie z naszym doradcą. Skontaktuj się z nami już dziś i zainwestuj w OVAL SKY – przyszłość pełną możliwości.
Nowe 3-pokojowe mieszkanie na sprzedaż o powierzchni 55,19 m² znajduje się w nowo budowanej inwestycji deweloperskiej OVAL SKY na Czystem, ul. Prądzyńskiego 21 (3.5 km od centrum Warszawy).
Sprzedaż prowadzi Platforma Mieszkaniowa.
Cała inwestycja składa się z 1 budynku, w którym łącznie znajdują się 333 nowe mieszkania.
Na sprzedaż pozostaje 15 ofert o powierzchni od 51 do 56 m².
W budynku jest 10 kondygnacji naziemnych oraz 1 kondygnacja podziemna.
Inwestycja OVAL SKY została wybudowana i oddana do użytkowania w 1 kw. 2026 roku.
Nowe mieszkanie o oznaczeniu 3.01 znajduje się na 3 piętrze i jest 1-poziomowe. Pomieszczenia mają od 260 do 280 centymetrów wysokości. W mieszkaniu znajdują się 3 pokoje.
Okna w mieszkaniu wychodzą na zachód, północ.
Północna ekspozycja to idealny wybór dla osób ceniących przytulne i klimatyczne wnętrza. Delikatne, rozproszone światło sprzyja harmonii i stwarza doskonałe warunki do relaksu lub pracy. Okna na północ zapewnią równomierne oświetlenie przez cały dzień.
Zachodnia ekspozycja to gwarancja intensywnego popołudniowego światła, które nadaje wnętrzom przytulności i ciepła. Idealne dla miłośników słonecznych wieczorów, którzy pragną cieszyć się pięknymi zachodami słońca we własnym domu. Zachodnie światło podkreśla kolory i faktury w aranżacji wnętrz, tworząc atmosferę sprzyjającą relaksowi po długim dniu.
Dla przyszłych mieszkańców OVAL SKY deweloper przewidział miejsca postojowe podziemne.
Dzięki temu przyszli właściciele nie będą musieli poszukiwać wolnej przestrzeni parkingowej. Dodatkowo, miejsce postojowe w garażu podziemnym zabezpiecza przed niekorzystnymi warunkami atmosferycznymi.
Opis Inwestycji
Tereny zielone
Pow. dodatkowe
Udogodnienia: strefa coworkingowa, sauna i strefa fitness, znakomita restauracja, sala rekreacyjna z bilardem, stylowe lobby
Miejsce jest doskonale skomunikowane z centrum miasta.
Nie będzie również problemu z pozostawieniem samochodu, ponieważ w inwestycji zaprojektowano parking podziemny.
Zyskaj nawet 25% w 3 lata (średnia stopa zwrotu: 8,33% rocznie od ceny netto lokalu niewykończonego).
Model całkowicie bezobsługowy — kupujesz lokal i oddajesz go pod opiekę sprawdzonego operatora z grupy Grano Hotels.
Mieszkanie znajduje się w inwestycji OVAL SKY, w której znajduje się w sprzedaży jeszcze 16 podobnych nowych mieszkań.





