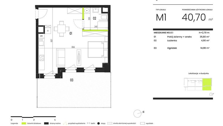
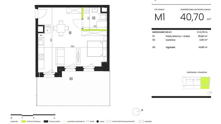
Mieszkanie na sprzedaż 1 pokój o powierzchni 40,7 m² numer NO.0.1
Inwestycja:
Ogrody StaromiejskieDeweloper:
Platforma Mieszkaniowa
Inwestycja:
Ogrody StaromiejskieDeweloper:
Platforma MieszkaniowaWrocław, Stare Miasto, ul. Stawowa 10
Wrocław, Stare Miasto, ul. Stawowa 10
Termin oddania
4 kw. 2027
Ilość pokoi
1 pokój
Metraż
40,7 m²
Piętro
Parter
Powierzchnie dodatkowe
Ogródek, Ogródek
Wysokość pomieszczeń
279 cm wysokości
Ilość poziomów
1 poziom
Oznaczenie oferty
NO.0.1

Raport o deweloperze
Poznaj dewelopera bliżej! Pobierz raport, w którym znajdziesz kluczowe informacje o firmie, jej doświadczeniu, nagrodach oraz aktualnych i zrealizowanych inwestycjach.
Budynek i otoczenie
Miejsca postojowe | |
|---|---|
Komórki lokatorskie | dostępne: wielkość: 2,2-4,9 m2 |
Standard wykończenia | standard deweloperski Ogrzewanie miejskie |
Realizacja inwestycji | rozpoczęcie budowy w 4 kw. 2024 roku, planowane oddanie do użytkowania w 4 kw. 2027 roku |
Udogodnienia | monitoring, teren ogrodzony, winda, rowerownia, inteligentny dom, miejsce do ładowania samochodów elektrycznych |
Przyroda | informacja u dewelopera |
Charakterystyka energetyczna nieruchomości |
|
Rezerwacja i finanse
Rodzaj własności | Odrębna własność z własnością gruntu |
|---|---|
Wysokość czynszu | informacja u dewelopera |
Warunki rezerwacji | Informacja u dewelopera |
Zabezpieczenie środków | Informacja u dewelopera |
Zdjęcia z budowy
Zobacz na jakim etapie budowy jest ta inwestycja
Lokalizacja inwestycji
Stacja kolejowa - Wrocław Główny - 416 m
Przystanek Tramwajowy - 110 m
Przystanek Autobusowy - 107 m
Dojazd do centrum: pokaż
W pobliżu 1 km od tej inwestycji znajdują się:
362 kawiarnie i restauracje, 133 sklepy, 65 obiektów sportowych, 61 placówek medycznych, 124 placówki edukacyjne, 62 place zabaw
Przeczytaj więcej o lokalizacji
Wrocławskie Stare Miasto to najstarsza część lewobrzeżnej części miasta. Zajmuje prawie 7 km2 i zamieszkuje ją nieco ponad 52 tysiące osób. Do dzielnicy należą osiedla takie jak: Stare Miasto, Przedmieście Świdnickie oraz Szczepin. Przeważa tu architektura zabytkowa, jednak najmłodsze z osiedli, Szczepin to głównie wysokie, nowoczesne bloki mieszkalne. Na Starym Mieście znajduje się gmach główny Uniwersytetu Wrocławskiego oraz blisko 20 innych szkół wyższych. Swoją siedzibę mają tu wszystkie ważniejsze teatry oraz Opera Dolnośląska. Stare Miasto to główny punkt wycieczek turystycznych we Wrocławiu, dlatego posiada rozbudowaną ofertę rozrywkową oraz kulturalną. To tu występuje największe skupisko zabytków we Wrocławiu – z Panoramą Racławicką i Ratuszem na czele. Na Stare Miasto można dostać się zarówno tramwajem wodnym jak i tramwajami czy autobusami. W dzielnicy znajduję się także znany park Juliusza Słowackiego.
Opis oferty
Nowe 1-pokojowe mieszkanie na sprzedaż o powierzchni 40,7 m² znajduje się w nowo budowanej inwestycji deweloperskiej Ogrody Staromiejskie na Starym Mieście, ul. Stawowa 10 (0.7 km od centrum Wrocławia).
Sprzedaż prowadzi Platforma Mieszkaniowa.
Cała inwestycja składa się z 3 budynków, w których łącznie znajduje się 66 nowych mieszkań.
Na sprzedaż pozostaje 48 ofert o powierzchni od 25 do 105 m².
W budynkach jest od 6 do 8 kondygnacji naziemnych oraz 2 kondygnacje podziemne.
Inwestycja Ogrody Staromiejskie jest w trakcie budowy z planowanym na 4 kw. 2027 roku terminem oddania do użytkowania.
Nowe mieszkanie o oznaczeniu NO.0.1 znajduje się na parterze i jest 1-poziomowe. Pomieszczenia mają 279 centymetrów wysokości. W mieszkaniu znajduje się 1 pokój.
Dla przyszłych mieszkańców Ogrody Staromiejskie deweloper nie przewidział miejsc postojowych.
Opis Inwestycji
Tereny zielone
Pow. dodatkowe
Z dumą prezentujemy nową inwestycję - Ogrody Staromiejskie. Harmonijnie wkomponowana w historyczną tkankę miejską Wrocławia, inwestycja składa się z 3. budynków w kwartale ulic Stawowej, Kościuszki, Kołłątaja i Rejtana. Jeden z nich to rewitalizowana kamienica, a pozostałe dwa to budynki nowe. Łącznie inwestycja obejmuje 66 lokali.
Lokalizacja inwestycji pozwoli przyszłym mieszkańcom aktywnie uczestniczyć w życiu miasta. Spacerem dotrzesz do kluczowych punktów Wrocławia:
• Dworzec PKP – 400 m;
• Dworzec PKS – 700 m;
• Centrum handlowe „Wroclavia” – 600 m;
• Rynek Wrocławski - 1500 m;
• Park Staromiejski – 800 m;
Udogodnienia lokalizacyjne to jednak nie wszystko! Mieszkańcy Ogrodów Staromiejskich będą mogli cieszyć się zaplanowanymi na terenie inwestycji ogrodami miejskimi. W kompleksie powstaną zielone dziedzińce z miejscami do odpoczynku dla mieszkańców oraz multisensoryczny placyk zabaw dla dzieci. W projektowaniu zieleni przewidziano wykorzystanie rodzimych gatunków roślin. W ofercie dostępne są lokale z wyodrębnionymi ogródkami do wyłącznego korzystania, a także lokale z tarasami na dachu.
Prezentujemy wyjątkowy apartament na sprzedaż
Apartamenty w inwestycji Ogrody Staromiejskie to także:
• niezwykła przestrzeń, dzięki ponadstandardowej wysokości lokali
• bezpieczeństwo, które zapewnią drzwi antywłamaniowe i monitoring
• komfortowe udogodnienia dla mieszkańców, takie jak pomieszczenie do przechowywania rowerów, stojaki oraz miejsce do mycia jednośladów.
Zapraszamy do kontaktu w celu poznania szczegółów.
Mieszkanie znajduje się w inwestycji Ogrody Staromiejskie, w której znajduje się w sprzedaży jeszcze 25 podobnych nowych mieszkań.





