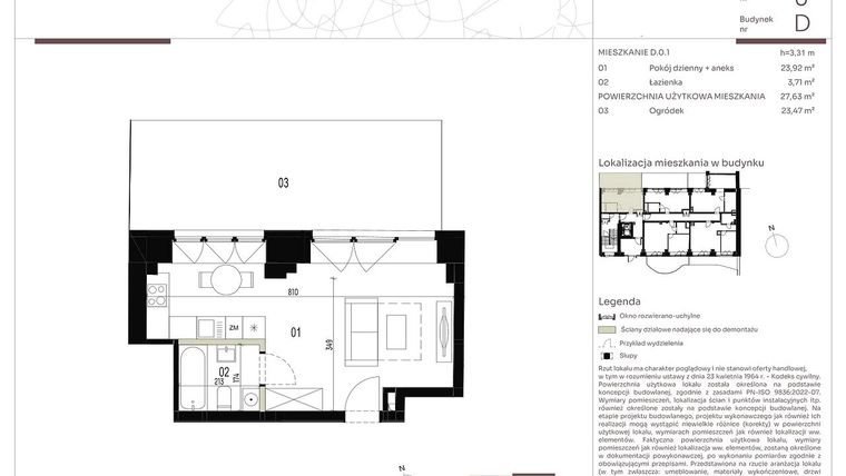
Mieszkanie na sprzedaż 1 pokój o powierzchni 27,63 m² numer D.0.1
Inwestycja:
Nowa StawowaDeweloper:
Platforma Mieszkaniowa
Inwestycja:
Nowa StawowaDeweloper:
Platforma MieszkaniowaWrocław, Stare Miasto, ul. Stawowa 10
Wrocław, Stare Miasto, ul. Stawowa 10
Termin oddania
4 kw. 2026
Ilość pokoi
1 pokój
Metraż
27,63 m²
Piętro
Parter
Powierzchnie dodatkowe
Ogródek
Kuchnia
otwarta kuchnia
Wysokość pomieszczeń
od 260 do 350 cm wysokości
Ilość poziomów
1 poziom
Oznaczenie oferty
D.0.1

Raport o deweloperze
Poznaj dewelopera bliżej! Pobierz raport, w którym znajdziesz kluczowe informacje o firmie, jej doświadczeniu, nagrodach oraz aktualnych i zrealizowanych inwestycjach.
Budynek i otoczenie
Miejsca postojowe | |
|---|---|
Standard wykończenia | standard deweloperski Ogrzewanie miejskie |
Realizacja inwestycji | rozpoczęcie budowy w 1 kw. 2024 roku, planowane oddanie do użytkowania w 4 kw. 2026 roku |
Udogodnienia | plac zabaw, monitoring, teren ogrodzony, winda, rowerownia, inteligentny dom, miejsce do ładowania samochodów elektrycznych |
Przyroda | informacja u dewelopera |
Charakterystyka energetyczna nieruchomości |
|
Rezerwacja i finanse
Rodzaj własności | Odrębna własność z własnością gruntu |
|---|---|
Wysokość czynszu | informacja u dewelopera |
Warunki rezerwacji | Informacja u dewelopera |
Zabezpieczenie środków | Informacja u dewelopera |
Zdjęcia z budowy
Zobacz na jakim etapie budowy jest ta inwestycja
Lokalizacja inwestycji
Stacja kolejowa - Wrocław Główny - 402 m
Przystanek Tramwajowy - 94 m
Przystanek Autobusowy - 91 m
Dojazd do centrum: pokaż
W pobliżu 1 km od tej inwestycji znajdują się:
354 kawiarnie i restauracje, 131 sklepów, 64 obiekty sportowe, 61 placówek medycznych, 122 placówki edukacyjne, 61 placów zabaw
Przeczytaj więcej o lokalizacji
Wrocławskie Stare Miasto to najstarsza część lewobrzeżnej części miasta. Zajmuje prawie 7 km2 i zamieszkuje ją nieco ponad 52 tysiące osób. Do dzielnicy należą osiedla takie jak: Stare Miasto, Przedmieście Świdnickie oraz Szczepin. Przeważa tu architektura zabytkowa, jednak najmłodsze z osiedli, Szczepin to głównie wysokie, nowoczesne bloki mieszkalne. Na Starym Mieście znajduje się gmach główny Uniwersytetu Wrocławskiego oraz blisko 20 innych szkół wyższych. Swoją siedzibę mają tu wszystkie ważniejsze teatry oraz Opera Dolnośląska. Stare Miasto to główny punkt wycieczek turystycznych we Wrocławiu, dlatego posiada rozbudowaną ofertę rozrywkową oraz kulturalną. To tu występuje największe skupisko zabytków we Wrocławiu – z Panoramą Racławicką i Ratuszem na czele. Na Stare Miasto można dostać się zarówno tramwajem wodnym jak i tramwajami czy autobusami. W dzielnicy znajduję się także znany park Juliusza Słowackiego.
Opis oferty
Nowe 1-pokojowe mieszkanie na sprzedaż o powierzchni 27,63 m² znajduje się w nowo budowanej inwestycji deweloperskiej Nowa Stawowa na Starym Mieście, ul. Stawowa 10 (0.7 km od centrum Wrocławia).
Sprzedaż prowadzi Platforma Mieszkaniowa.
Cała inwestycja składa się z 2 budynków, w których łącznie znajdują się 44 nowe mieszkania.
Na sprzedaż pozostaje 27 ofert o powierzchni od 28 do 120 m².
W budynkach jest od 5 do 6 kondygnacji naziemnych oraz 2 kondygnacje podziemne.
Inwestycja Nowa Stawowa jest w trakcie budowy z planowanym na 4 kw. 2026 roku terminem oddania do użytkowania.
Nowe mieszkanie o oznaczeniu D.0.1 znajduje się na parterze i jest 1-poziomowe. Pomieszczenia mają od 260 do 350 centymetrów wysokości. W mieszkaniu znajduje się 1 pokój.
Dla przyszłych mieszkańców Nowa Stawowa deweloper przewidział miejsca postojowe podziemne.
Dzięki temu przyszli właściciele nie będą musieli poszukiwać wolnej przestrzeni parkingowej. Dodatkowo, miejsce postojowe w garażu podziemnym zabezpiecza przed niekorzystnymi warunkami atmosferycznymi.
Opis Inwestycji
Tereny zielone
Pow. dodatkowe
Zapraszamy do zapoznania się z wyjątkową ofertą loftowych apartamentów w inwestycji Nowa Stawowa. Projekt zlokalizowany w tętniącym życiem centrum Wrocławia, idealnie wpisuje się w założenia idei miasta 15-minutowego.
Nowa Stawowa to odpowiedź na oczekiwania wymagających mieszkańców Wrocławia:
- 44 apartamenty o loftowym charakterze
- powierzchnia od 27 do 132 mkw.
- wysokość apartamentów nawet do 3,5 m
- duże, panoramiczne okna
- przynależne do lokali na najwyższych piętrach tarasy na dachu z widokiem na panoramę miasta
- ogródki przynależne do mieszkań na parterze
Dla wygody mieszkańców w inwestycji przewidziano także:
- miejsca postojowe
- pomieszczenie do przechowywania rowerów
- stojaki oraz miejsce do mycia jednośladów
Perfekcyjna lokalizacja:
Inwestycja Nowa Stawowa obejmuje kompleksową rewitalizację dwóch kamienic położonych przy ul. Stawowej we Wrocławiu:
- 10 minut do Parku Staromiejskiego
- 12 minut do Rynku
- 15 minut do Opery Wrocławskiej
- blisko szkół, sklepów, restauracji
- z łatwym dostępem do rozbudowanej sieci transportu publicznego i szerokiej oferty kulturalnej miasta
Zielone otoczenie inwestycji:
Projekt Nowej Stawowej zakłada nowoczesne ekologiczne rozwiązania, a całe przedsięwzięcie powstaje w zgodzie z ideą zrównoważonego rozwoju. W kompleksie zaplanowano:
- ogród miejski z miejscami do odpoczynku dla mieszkańców
- multisensoryczny placyk zabaw dla dzieci
- ogródki warzywne
W projektowaniu otoczenia inwestycji przewidziano wykorzystanie rodzimych gatunków roślin, które będą wsparciem dla lokalnego ekosystemu.
Architektura dla wymagających:
Koncepcja inwestycji łączy w sobie historię z nowoczesnością, nadając jej unikalnego charakteru.
Projekt inwestycji: Pracownię Łapacz Winkowski Architekci
Projekt zieleni: Pracownia IKropka
Lobby i części wspólne: artysta i scenograf Boris Kudlicka
Mieszkanie znajduje się w inwestycji Nowa Stawowa, w której znajduje się w sprzedaży jeszcze 12 podobnych nowych mieszkań.





