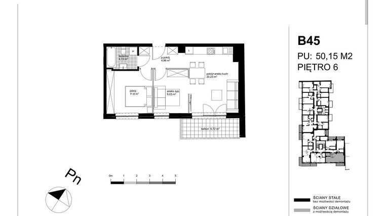
Mieszkanie na sprzedaż 2 pokoje o powierzchni 50,33 m² numer B45
Inwestycja:
Apartamenty Kopernika - etap IIDeweloper:
Platforma Mieszkaniowa
Inwestycja:
Apartamenty Kopernika - etap IIDeweloper:
Platforma MieszkaniowaŁódź, Polesie, Stare Polesie, ul. Kopernika 49
Łódź, Polesie, Stare Polesie, ul. Kopernika 49
Termin oddania
Gotowe
Ilość pokoi
2 pokoje
Metraż
50,33 m²
Piętro
6 piętro
Kuchnia
otwarta kuchnia
Wysokość pomieszczeń
od 260 do 280 cm wysokości
Ilość poziomów
1 poziom
Oznaczenie oferty
B45

Raport o deweloperze
Poznaj dewelopera bliżej! Pobierz raport, w którym znajdziesz kluczowe informacje o firmie, jej doświadczeniu, nagrodach oraz aktualnych i zrealizowanych inwestycjach.
Budynek i otoczenie
Miejsca postojowe | |
|---|---|
Komórki lokatorskie | dostępne |
Standard wykończenia | standard deweloperski |
Realizacja inwestycji | rozpoczęcie budowy w 2 kw. 2024 roku, inwestycja została oddana do użytkowania w 3 kw. 2025 roku |
Udogodnienia | teren ogrodzony, usługi w budynku, winda |
Przyroda | w okolicy inwestycji znajduje się park |
Charakterystyka energetyczna nieruchomości | informacja u dewelopera |
Rezerwacja i finanse
Rodzaj własności | Odrębna własność z własnością gruntu |
|---|---|
Wysokość czynszu | informacja u dewelopera |
Warunki rezerwacji | Informacja u dewelopera |
Zabezpieczenie środków | Informacja u dewelopera |
Zdjęcia z budowy
Zobacz na jakim etapie budowy jest ta inwestycja
Lokalizacja inwestycji
Stacja kolejowa - Łódź Kaliska - 880 m
Przystanek Tramwajowy - 14 m
Przystanek Autobusowy - 15 m
Dojazd do centrum: pokaż
W pobliżu 1 km od tej inwestycji znajdują się:
33 kawiarnie i restauracje, 44 sklepy, 44 obiekty sportowe, 12 placówek medycznych, 39 placówek edukacyjnych, 30 placów zabaw
Przeczytaj więcej o lokalizacji
Łódź Polesie to dzielnica Łodzi o powierzchni 46 km. kw., w której mieszka ok. 140 tys. osób. W centralnym obszarze dzielnicy położony jest Park im. J. Piłsudskiego, dworzec Łódź Kaliska i droga E75. Dzielnicę okala od wschodu rzeka Ner, od południa port lotniczy im. W. Reymonta a od północy ul. Szczecińska i Rąbieńska. Polesie dzieli się na osiedla Złotno, Zdrowie-Mania, Karolew-Retkinia Wschód, Osiedla im. Montwiłła-Mireckiego, Retkinia Zachód, Lublinek, Stare Polesie i Koziny. O jej przyjaznym mieszkańcom charakterze świadczy położony tu największy łódzki park, Ogród Botaniczny, las Lublinek i 5 supermarketów i liczne punkty usługowe. Do tego dochodzi ciekawa oferta szkół wyższych z kampusem Politechniki Łódzkiej na czele.
Opis oferty
Nowe 2-pokojowe mieszkanie na sprzedaż o powierzchni 50,33 m² znajduje się w nowo budowanej inwestycji deweloperskiej Apartamenty Kopernika - etap II w Starym Polesiu, ul. Kopernika 49 (0.9 km od centrum Łodzi).
Sprzedaż prowadzi Platforma Mieszkaniowa.
Cała inwestycja składa się z 1 budynku, w którym łącznie znajduje się 46 nowych mieszkań.
Na sprzedaż pozostaje 9 ofert o powierzchni od 27 do 56 m².
W budynku jest 7 kondygnacji naziemnych oraz 1 kondygnacja podziemna.
Inwestycja Apartamenty Kopernika - etap II została wybudowana i oddana do użytkowania w 3 kw. 2025 roku.
Nowe mieszkanie o oznaczeniu B45 znajduje się na 6 piętrze i jest 1-poziomowe. Pomieszczenia mają od 260 do 280 centymetrów wysokości. W mieszkaniu znajdują się 2 pokoje.
Dla przyszłych mieszkańców Apartamenty Kopernika - etap II deweloper przewidział miejsca postojowe podziemne.
Dzięki temu przyszli właściciele nie będą musieli poszukiwać wolnej przestrzeni parkingowej. Dodatkowo, miejsce postojowe w garażu podziemnym zabezpiecza przed niekorzystnymi warunkami atmosferycznymi.
Opis Inwestycji
Tereny zielone
Jakie trzy czynniki decydują o wartości nieruchomości? Lokalizacja , lokalizacja, lokalizacja! Centrum miasta - skrzyżowanie Kopernika z Łąkową - to dobra lokata kapitału oraz przestrzeń do życia dla ludzi ceniących wielkomiejski styl bycia. W bezpośredniej okolicy Apartamentów Kopernika zlokalizowana jest: komunikacja miejska, szkoły, ośrodki akademickie, biura, sklepy, park im. ks. J. Poniatowskiego, restauracje i puby. Spacer do ul. Piotrkowskiej zajmie 15 minut. Zmotoryzowani mieszkańcy również docenią położenie w pobliżu głównych arterii miasta (Mickiewicza , Włókniarzy). W siedmiokondygnacyjnym obiekcie zaplanowano mieszkania o pow. od 25 do 83 mkw., lokale handlowo-usługowe w parterze oraz dwupoziomową halę garażową w głębi posesji.
Mieszkanie znajduje się w inwestycji Apartamenty Kopernika - etap II, w której znajduje się w sprzedaży jeszcze 1 podobne nowe mieszkanie.





