Cisova Park etap II
Domy na sprzedaż oferowane bezpośrednio przez Platforma Mieszkaniowa
oławski, Stanowice, ul. Cisowa
oławski, Stanowice, ul. Cisowa
:format(jpg)/offers/offer/19697/main_image/cisova-park-etap-3_3aa0af.jpg)
:format(jpg)/offers/offer/19697/main_image/cisova-park-etap-3_3aa0af.jpg)
1 zdjęcie
Termin oddania
3 kw. 2026
Powierzchnie
140 - 148/m2
Przedział pokoi
5
Kondygnacje
3
Budynki
3
Stand. wykończenia
Standard deweloperski
Domy w inwestycji (10)
Sortuj
Stacja kolejowa - Lizawice - 2523 m
Przystanek Autobusowy - 1118 m
Dojazd do centrum Wrocławia: pokaż
W pobliżu 1 km od tej inwestycji znajdują się:
9 obiektów sportowych
Zdjęcia z budowy
Zobacz na jakim etapie budowy jest ta inwestycja
Udogodnienia Inwestycji
Standard i bezpieczeństwo
- Standard deweloperski
Instalacje i energetyka
- pompa ciepła
Rekreacja
- plac zabaw
- pomieszczenie rekreacyjne
Przyroda w okolicy
- las
- staw
- rzeka
Szczegóły inwestycji
Realizacja inwestycji:
Liczba domów:
Liczba kondygnacji:
Wysokość pomieszczeń:
Standard wykończenia
standard deweloperski
Ogrzewanie
pompa ciepła
Rodzaj własności:
Garaże:
- miejsca postojowe naziemne
Przyroda:
Aktualna oferta
Dostępne domy:
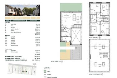
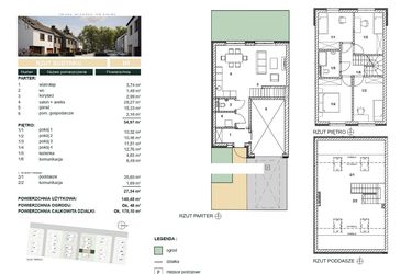
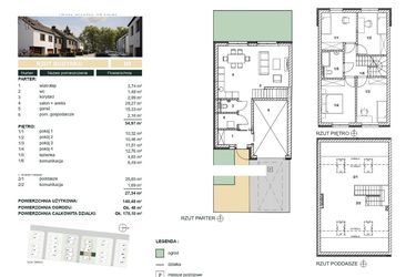
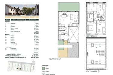
Powierzchnie domów:
Opis płatności:
Warunki rezerwacji:
Zabezpieczenie środków klienta:
Wysokość czynszu:
Opis inwestycji
Inwestycja Cisova Park etap II znajduje się w Stanowicach, ul. Cisowa (12 km od Wrocławia), sprzedaż prowadzi Platforma Mieszkaniowa.
Inwestycja obecnie jest w trakcie budowy z planowanym na 3 kw. 2026 roku terminem oddania do użytkowania
Cały projekt składa się z 10 nowych domów.
Aktualnie w inwestycji Cisova Park etap II w sprzedaży jest 10 nowych domów o powierzchni od 140 do 148 metrów kwadratowych , w cenie od 828 832 zł.
Dla przyszłych mieszkańców Cisova Park etap II deweloper przewidział:
- miejsca postojowe naziemne
Lokalizacja inwestycji
Powiat oławski usytuowany jest na południowo-wschodnim skraju województwa dolnośląskiego i zajmuje powierzchnię ok. 524 km2, na której mieszka ponad 75 tys. osób. Do terytorium powiatu należą miasta: Oława i Jelcz-Laskowice, jedna gmina miejska i jedna miejsko-wiejska oraz 2 – wiejskie. Nizinne tereny nad Odrą oraz jej dopływami: Oławą i Smortawą, stanowią dogodne warunki do rozwoju rolnictwa, toteż grunty rolne zajmują prawie 60% obszaru. Architektura mieszkaniowa w postaci domów jedno- i wielorodzinnych oraz niskich bloków skoncentrowana jest w miastach, natomiast na pozostałych terenach występują zabudowania wiejskie. Rozległe kompleksy leśne, 5 rezerwatów przyrody, min.: Zwierzyniec i Kanigóra, a także ulokowane nad zalewami ośrodki wypoczynkowe czy jeździeckie, sprzyjają rekreacji na świeżym powietrzu. Największą lokalną firmą są Jelczańskie Zakłady Samochodowe. Główne arterie to: autostrada A4 oraz drogi krajowe: nr 39 (Łagiewniki – Kępno) i nr 94 (Zgorzelec – Korczowa).
Komunikacja
Jak wygląda komunikacja w okolicy inwestycji Cisova Park etap II?
Oławski to powiat o dużym znaczeniu, zarówno dla komunikacji lądowej, jak i wodnej. Osią powiatu jest Odra wraz z dopływami, która stanowi fragment Odrzańskiej Drogi Wodnej. Przez oławski przebiegają również ważne linie kolejowe, min. magistrala nr 132 będąca fragmentem transeuropejskiego szlaku kolejowego E-30 (Berlin – Kijów). Przebiegają tędy ważne arterie: autostrada A4, drogi krajowe: nr 39 (Łagiewniki – Kępno) i nr 94 (Zgorzelec – Korczowa) oraz 4 drogi wojewódzkie.
Przyszli mieszkańcy inwestycji Cisova Park etap II mogą korzystać z rozbudowanej sieci połączeń komunikacyjnych. W odległości 1100 metrów od inwestycji Cisova Park etap II znajduje się najbliższy punkt komunikacyjny - przystanek autobusowy.
Sport
Bliskość terenów rekreacyjnych oraz obiektów sportowych to mocna strona tej lokalizacji. W najbliższej okolicy inwestycji Cisova Park etap II w odległości 100 m znajduje się siłownia na świeżym powietrzu, w odległości 200 m znajduje się Amatorskie Ścieżki MTB / BMX na terenie dawnego lotniska wojskowego w Stanowicach.





