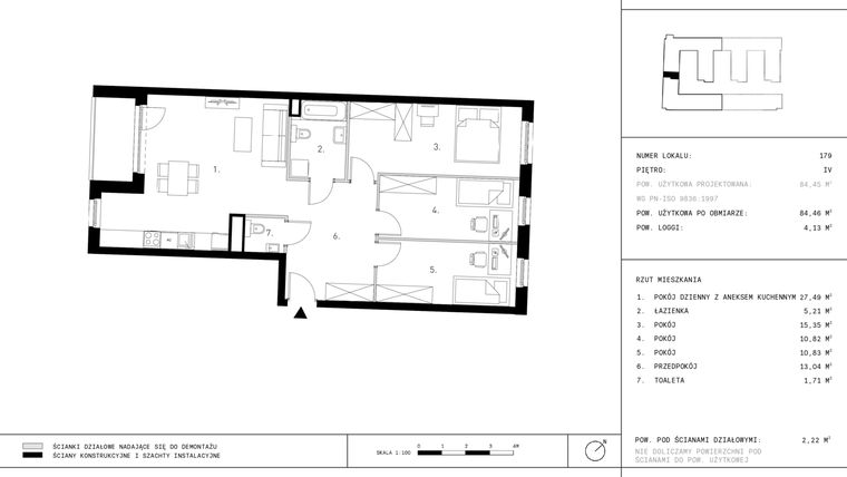
Mieszkanie na sprzedaż 4 pokoje o powierzchni 84,46 m² numer 4.A17-179
Inwestycja:
Jurowiecka 22Deweloper:
Strus Development Sp. z o.o.
Inwestycja:
Jurowiecka 22Deweloper:
Strus Development Sp. z o.o.Białystok, Sienkiewicza, ul. Jurowiecka 22
Białystok, Sienkiewicza, ul. Jurowiecka 22
Termin oddania
Gotowe
Ilość pokoi
4 pokoje
Metraż
84,46 m²
Piętro
4 piętro
Wysokość pomieszczeń
263 cm wysokości
Ilość poziomów
1 poziom
Oznaczenie oferty
4.A17-179

Raport o deweloperze
Poznaj dewelopera bliżej! Pobierz raport, w którym znajdziesz kluczowe informacje o firmie, jej doświadczeniu, nagrodach oraz aktualnych i zrealizowanych inwestycjach.
Budynek i otoczenie
Miejsca postojowe | |
|---|---|
Standard wykończenia | standard deweloperski |
Realizacja inwestycji | rozpoczęcie budowy w 1 kw. 2022 roku, inwestycja została oddana do użytkowania w 1 kw. 2024 roku |
Udogodnienia | winda |
Przyroda | informacja u dewelopera |
Charakterystyka energetyczna nieruchomości | informacja u dewelopera |
Rezerwacja i finanse
Rodzaj własności | Odrębna własność z własnością gruntu |
|---|---|
Wysokość czynszu | informacja u dewelopera |
Warunki rezerwacji | Informacja u dewelopera |
Zabezpieczenie środków | Informacja u dewelopera |
Zdjęcia z budowy
Zobacz na jakim etapie budowy jest ta inwestycja
Lokalizacja inwestycji
Stacja kolejowa - Białystok Fabryczny - 1473 m
Przystanek Autobusowy - 126 m
Dojazd do centrum: pokaż
W pobliżu 1 km od tej inwestycji znajdują się:
147 kawiarni i restauracji, 79 sklepów, 33 obiekty sportowe, 36 placówek medycznych, 67 placówek edukacyjnych, 38 placów zabaw
Przeczytaj więcej o lokalizacji
Białystok to miasto położone w północno-wschodniej Polsce nad rzeką Białą. Jest to stolica województwa podlaskiego. Białystok jest perłą Podlasia, w której znajdują się liczne zabytki, takie jak Ratusz Miejski, zbrojownia hetmańska czy katedra. Zabudowa Białegostoku jest charakterystyczna dla polskich miast - przeważają tu osiedla mieszkaniowe, a na przedmieściach zabudowa jednorodzinna. W mieście znajduję się wiele parków miejskich. Białystok to także największy węzeł komunikacyjny północno-wschodniej Polski. Przez miasto przebiega europejska linia kolejowa Warszawa-Tallin. Miasto posiada bezpośrednie połączenia kolejowe z Warszawą, Olsztynem, Gdańskiem i Poznaniem. Rozwinięty transport autobusowy to zasługa głównie PKS Białystok, które obsługuje zarówno linie lokalne jak i międzymiastowe. Przez miasto przebiega również droga ekspresowa E67, która krzyżuję się z drogą krajową nr 19.
Opis oferty
Nowe 4-pokojowe mieszkanie na sprzedaż o powierzchni 84,46 m² znajduje się w nowo budowanej inwestycji deweloperskiej Jurowiecka 22 na Sienkiewicza, ul. Jurowiecka 22 (0.7 km od centrum Białegostoku).
Inwestycja jest realizowana przez Strus Development Sp. z o.o.
Cała inwestycja składa się z 1 budynku, w którym łącznie znajduje się 269 nowych mieszkań.
Na sprzedaż pozostaje 19 ofert o powierzchni od 32 do 84 m².
W budynku jest od 5 do 9 kondygnacji naziemnych oraz 1 kondygnacja podziemna.
Inwestycja Jurowiecka 22 została wybudowana i oddana do użytkowania w 1 kw. 2024 roku.
Nowe mieszkanie o oznaczeniu 4.A17-179 znajduje się na 4 piętrze i jest 1-poziomowe. Pomieszczenia mają 263 centymetrów wysokości. W mieszkaniu znajdują się 4 pokoje.
Dla przyszłych mieszkańców Jurowiecka 22 deweloper przewidział miejsca postojowe podziemne, miejsca postojowe naziemne.
Dzięki temu przyszli właściciele nie będą musieli poszukiwać wolnej przestrzeni parkingowej. Dodatkowo, miejsce postojowe w garażu podziemnym zabezpiecza przed niekorzystnymi warunkami atmosferycznymi.
Opis Inwestycji
Tereny zielone
Jurowiecka 22 to starannie zaprojektowany zespół dwóch budynków o nowoczesnej architekturze wpisującej się w charakter rozwijającego się Białegostoku. Dodatkowo urządzony estetyczny dziedziniec z pieszym utwardzonym ciągiem komunikacyjnym i bogatymi elementami małej architektury stworzą kameralną atmosferę.
Projektowane mieszkania będą miały zróżnicowane metraże oraz układy od jednego do czterech pokoi, co pozwoli przyszłym mieszkańcom, na wybór lokum doskonale dostosowanego do indywidualnych potrzeb. Każde z mieszkań, niezależnie od powierzchni, posiadać będzie balkon lub taras. Na parterze zaprojektowano lokale usługowe.
W trosce o potrzeby osób zmotoryzowanych przewidziano miejsca postojowe w garażu naziemnym i podziemnym, a dogodne usytuowanie w obrębie najważniejszych szlaków komunikacyjnych i zasięgu transportu miejskiego, gwarantuje doskonały dostęp do wszystkich zakątków miasta. To istniejące od wielu lat i wciąż rozwijające się osiedle posiada już praktyczną i rozwiniętą infrastrukturę.
Mieszkanie znajduje się w inwestycji Jurowiecka 22, w której znajduje się w sprzedaży jeszcze 1 podobne nowe mieszkanie.
Strus Development Sp. z o.o.
Strona internetowa inwestycjiAdres biura sprzedaży:
UL. JUROWIECKA 1 (GALERIA JUROWIECKA) 15-101 Białystok




