Dom na sprzedaż 3 pokoje o powierzchni 68,42 m² numer 30A
Inwestycja:
Osiedle Słoneczne etap IIIDeweloper:
Novisa Development Sp. z o.o.
Inwestycja:
Osiedle Słoneczne etap IIIDeweloper:
Novisa Development Sp. z o.o.Sulejówek, ul. Szklarniowa
Sulejówek, ul. Szklarniowa
Promocje
Nieruchomość bez wkładu własnego
Wybrane mieszkania w tej inwestycji możesz kupić bez wkładu własnego!
Skontaktuj się z naszym biurem sprzedaży i doradcą kredytowym.
Termin oddania
4 kw. 2026
Ilość pokoi
3 pokoje
Metraż
68,42 m²
Piętro
Parter
Powierzchnie dodatkowe
Ogródek
Kuchnia
otwarta kuchnia
Wysokość pomieszczeń
od 260 do 280 cm wysokości
Ilość kondygnacji
1 poziom
Oznaczenie oferty
30A

Raport o deweloperze
Poznaj dewelopera bliżej! Pobierz raport, w którym znajdziesz kluczowe informacje o firmie, jej doświadczeniu, nagrodach oraz aktualnych i zrealizowanych inwestycjach.
Budynek i otoczenie
Miejsca postojowe | |
|---|---|
Standard wykończenia | standard deweloperski |
Realizacja inwestycji | rozpoczęcie budowy w 3 kw. 2025 roku, planowane oddanie do użytkowania w 4 kw. 2026 roku |
Udogodnienia | informacja u dewelopera |
Przyroda | w okolicy inwestycji znajduje się park |
Charakterystyka energetyczna nieruchomości | informacja u dewelopera |
Rezerwacja i finanse
Rodzaj własności | Odrębna własność z własnością gruntu |
|---|---|
Wysokość czynszu | informacja u dewelopera |
Warunki rezerwacji | Informacja u dewelopera |
Zabezpieczenie środków | Otwarty mieszkaniowy rachunek powierniczy |
Zdjęcia z budowy
Zobacz na jakim etapie budowy jest ta inwestycja
Lokalizacja inwestycji
Stacja kolejowa - Sulejówek Miłosna - 2043 m
Przystanek Autobusowy - 632 m
Dojazd do centrum Warszawy: pokaż
W pobliżu 1 km od tej inwestycji znajdują się:
1 kawiarnia lub restauracja, 3 sklepy, 4 placówki edukacyjne
Przeczytaj więcej o lokalizacji
Sulejówek to miasto w powiecie mińskim, zlokalizowane w województwie mazowieckim. Należy do aglomeracji warszawskiej i oddalony jest od stolicy zaledwie 18 kilometrów. Południową granicę Sulejówka wyznacza Trakt Brzeski czyli droga krajowa biegnąca na trasie Warszawa– Terespol – Moskwa i gmina Wiązowna. Północna część miasta to lasy poligonu wojskowego sąsiadujące z Zielonką. Zachodnią granicę stanowi Warszawa - Wesoła, a wschodnią gmina Halinów. Ponad 1/3 powierzchni Sulejówka zajmują lasy i parki. Teren posiada ogromny potencjał inwestycyjny. Kompleks leśny, obszerne grunty sprzyjają rozwojowi przedsiębiorstw i branży turystyczno- rekreacyjnej. Sulejówek to zdecydowanie miasto przyjazne rodzinom z dziećmi, które cenią bliskość dużego miasta i możliwość wypoczynku na świeżym powietrzu. Dojazd do Warszawy zajmuje tylko kilka minut, a doskonale funkcjonująca komunikacja miejska zapewnia łatwy dojazd do pracy czy szkoły bez konieczności używania samochodu. Mieszkańcy Sulejówka do dyspozycji posiadają dwie stacje kolei podmiejskiej i liczne połączenia autobusowe, które gwarantują szybki i wygodny dojazd do stolicy.
Opis oferty
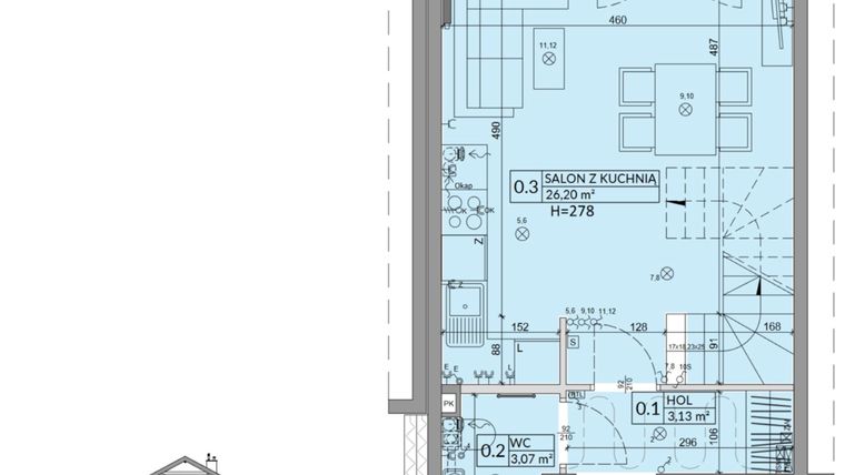
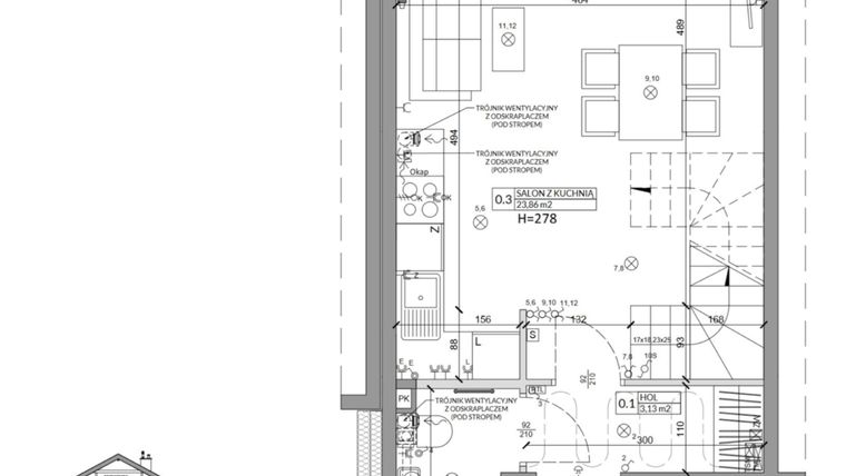
68-metrowy dom z trzema pokojami, ze wschodnio-zachodnią ekspozycją, spełni oczekiwania rodziny z dzieckiem. Na parterze znajduje się przestronny salon z aneksem kuchennym i wyjściem do ogrodu, WC dla gości oraz hall z miejscem na szafę. Do lokalu przynależy również pomieszczenie gospodarcze z niezależnym wejściem z zewnątrz, które doskonale sprawdzi się jako schowek na narzędzia. Piętro domu to prywatna przestrzeń dla mieszkańców - dwie sypialnie oraz ustawna łazienka z miejscem na wannę.
Nowy 3-pokojowy dom na sprzedaż o powierzchni 68,42 m² znajduje się w nowo budowanej inwestycji deweloperskiej Osiedle Słoneczne etap III w Sulejówku, ul. Szklarniowa (1.6 km od Warszawy).
Inwestycja jest realizowana przez Novisa Development Sp. z o.o.
Cała inwestycja składa się z 20 nowych domów.
Inwestycja Osiedle Słoneczne etap III jest w trakcie budowy z planowanym na 4 kw. 2026 roku terminem oddania do użytkowania.
Nowy dom o oznaczeniu 30A , składa się z 1 kondygnacji bez poddasza, nie posiada podpiwniczenia. Wysokość pomieszczeń wynosi od 260 do 280 cm.
W domu numer 30A znajdują się się 3 pokoje.
Do domu przynależy ogródek o powierzchni 74 m².
Dla przyszłych mieszkańców Osiedle Słoneczne etap III deweloper przewidział miejsca postojowe naziemne
Opis Inwestycji
Pow. dodatkowe
Osiedle Słoneczne w Sulejówku to nowoczesna inwestycja, która powstaje w malowniczej, zielonej okolicy, blisko Warszawy. Osiedle składa się z 82 dwukondygnacyjnych lokali w zabudowie szeregowej, każdy z własnym ogrodem (57–243 m²) z zachodnią ekspozycją, co pozwala na relaks w promieniach popołudniowego słońca. Lokale oferują 3 lub 4 pokoje o powierzchni 68–79 m², co zapewnia komfort zarówno mniejszym, jak i większym rodzinom.
Na parterze znajduje się przestronny salon z aneksem kuchennym oraz wyjściem do ogrodu. Dodatkowe WC dla gości i schowki na narzędzia w wybranych domach podnoszą funkcjonalność. Na piętrze mieszczą się 2 lub 3 pokoje oraz łazienka, a wschodnio-zachodnia ekspozycja gwarantuje optymalne nasłonecznienie przez cały dzień.
Osiedle Słoneczne harmonijnie wpisuje się w otaczający krajobraz dzięki nowoczesnym białym elewacjom, oknom w kolorze drewna oraz estetycznym elementom dekoracyjnym. Duże okna i ponadstandardowa wysokość pomieszczeń, sprawiają, że wnętrza są jasne i przestronne.
Okolica jest spokojna, ale dobrze skomunikowana, z dostępem do publicznych i prywatnych żłobków oraz przedszkoli w promieniu ok. 2 km. Dla starszych dzieci w pobliżu znajdują się szkoły podstawowe, boiska i basen. Miłośnicy sportu skorzystają z siłowni, kortów tenisowych oraz zajęć grupowych, takich jak joga.
W odległości około 3 km znajduje się znany Park Glinianki, oferujący kąpielisko, miejsca do grillowania oraz wiele atrakcji na świeżym powietrzu. Dodatkowo, park ma tężnię solankową, która wspomaga zdrowie dzięki wdychaniu powietrza wzbogaconego w minerały.
Bezpieczna okolica, pełna dźwięków natury i pięknych krajobrazów, sprawia, że Osiedle Słoneczne to idealne miejsce dla rodzin pragnących harmonijnego życia.
Link do filmiku: https://youtu.be/BKukkluz2qA?si=arT0975d6m0SFpxu
Skorzystaj z Rodzinnego Kredytu Mieszkaniowego i kup dom w inwestycji Osiedle Słoneczne z minimalnym wkładem własnym – już ok. 20 tys. zł. Jeśli posiadasz zdolność kredytową, brakujący wkład może zostać objęty gwarancją BKG.
To rozwiązanie szczególnie korzystne dla rodzin i osób planujących przyszłość – w ramach programu, po narodzinach kolejnego dziecka, możliwa jest spłata części kredytu przez państwo (tzw. spłata rodzinna), która może sięgnąć nawet 60 000 zł.
W połączeniu z funkcjonalnymi układami domów, przyjaznym charakterem osiedla oraz lokalizacją sprzyjającą codziennemu życiu, program RKM sprawia, że zakup nieruchomości na Osiedlu Słonecznym jest dziś prostszy i bardziej dostępny, niż mogłoby się wydawać.
Chcesz sprawdzić, jak to wygląda w praktyce przy konkretnym domu? Zostaw kontakt – oddzwonimy i przeprowadzimy Cię przez cały proces.
Dom znajduje się w inwestycji Osiedle Słoneczne etap III, w której znajduje się w sprzedaży jeszcze 7 podobnych nowych domów.
Novisa Development Sp. z o.o.
Strona internetowa inwestycjiAdres biura sprzedaży:
ul. Cieślewskich 49, 03-017 WarszawaGodziny otwarcia biura sprzedaży:
- Poniedziałek: 10:00 - 18:00
- Wtorek: 10:00 - 18:00
- Środa: 10:00 - 18:00
- Czwartek: 10:00 - 18:00
- Piątek: 10:00 - 18:00
- Sobota: 10:00 - 15:00
Artykuły powiązane:
![[SONDA] Jakich promocji szukają klienci deweloperów?](https://thumbs.rynekpierwotny.pl/2fafa89d:9-_fZi6jnrIBq1G-4WqLMvPnymg/440x440/filters:upscale():format(jpg)/articles/gallery/image/8601/a005ae.jpg)
[SONDA] Jakich promocji szukają klienci deweloperów?
Deweloperzy kuszą promocjami, rabatami i różnymi „okazjami” dla osób szukających mieszkań. Które z nich jednak najbardziej przykuwają uwagę klientów? Największym powodzeniem wśród klientów cieszą się promocje związane przede wszystkim ceną. Są to wszelkiego rodzaju obniżki, ale także promocje w ramach...
26 czerwca 2017
Mikołaj Ostrowski





