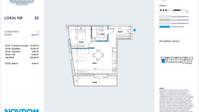
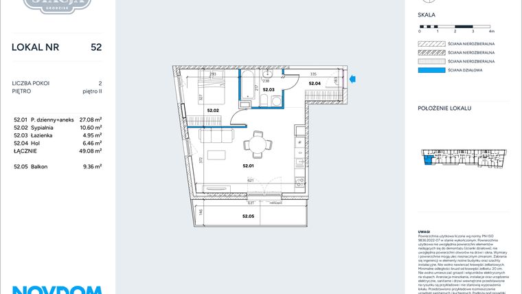
Mieszkanie na sprzedaż 2 pokoje o powierzchni 49,08 m² numer 52
Inwestycja:
Stacja GrodziskDeweloper:
Novdom Sp. z o.o.
Inwestycja:
Stacja GrodziskDeweloper:
Novdom Sp. z o.o.Grodzisk Mazowiecki, ul. Traugutta
Grodzisk Mazowiecki, ul. Traugutta
Termin oddania
4 kw. 2027
Ilość pokoi
2 pokoje
Metraż
49,08 m²
Piętro
2 piętro
Powierzchnie dodatkowe
Balkon
Wysokość pomieszczeń
od 260 do 280 cm wysokości
Ilość poziomów
1 poziom
Oznaczenie oferty
52

Raport o deweloperze
Poznaj dewelopera bliżej! Pobierz raport, w którym znajdziesz kluczowe informacje o firmie, jej doświadczeniu, nagrodach oraz aktualnych i zrealizowanych inwestycjach.
Budynek i otoczenie
Miejsca postojowe | |
|---|---|
Komórki lokatorskie | dostępne (23) |
Standard wykończenia | standard deweloperski |
Realizacja inwestycji | rozpoczęcie budowy w 1 kw. 2026 roku, planowane oddanie do użytkowania w 4 kw. 2027 roku |
Udogodnienia | winda |
Przyroda | w okolicy inwestycji znajduje się park |
Charakterystyka energetyczna nieruchomości | informacja u dewelopera |
Rezerwacja i finanse
Rodzaj własności | Odrębna własność z własnością gruntu |
|---|---|
Wysokość czynszu | informacja u dewelopera |
Warunki rezerwacji | Informacja u dewelopera |
Zabezpieczenie środków | Informacja u dewelopera |
Zdjęcia z budowy
Zobacz na jakim etapie budowy jest ta inwestycja
Lokalizacja inwestycji
Stacja kolejowa - Grodzisk Mazowiecki - 355 m
Przystanek Autobusowy - 99 m
Dojazd do centrum Warszawy: pokaż
W pobliżu 1 km od tej inwestycji znajdują się:
22 kawiarnie i restauracje, 32 sklepy, 19 obiektów sportowych, 12 placówek medycznych, 21 placówek edukacyjnych, 17 placów zabaw
Przeczytaj więcej o lokalizacji
Grodzisk Mazowiecki to miasto położone na Równinie Łowicko-Błońskiej, w województwie mazowieckim, w powiecie grodziskim. W zachodniej części miasta przepływa rzeka Mrowna. Powierzchnia miasta zajmuje 13,19 km i zamieszkuje ją ok. 31 tysięcy mieszkańców. Na terenie miasta znajduje się Centrum Kultury Gminy Grodzisk, Mediateka oraz Studio Tańca. W Grodzisku oraz jego okolicy funkcjonuje kilka klubów sportowych, m.in: Grodziski Klub Żeglarski „Czysty Wiatr”, Grodziski Klub Sportowy „Sparta”, czy klub piłkarski LKS Chlebnia. Grodzisk Mazowiecki otoczony jest licznymi terenami zielonymi, nieopodal znajduje się kilka stawów, parków oraz jezioro Kniaziówka.
Opis oferty
Nowe 2-pokojowe mieszkanie na sprzedaż o powierzchni 49,08 m² znajduje się w nowo budowanej inwestycji deweloperskiej Stacja Grodzisk w Grodzisku Mazowieckim, ul. Traugutta (18 km od Warszawy).
Inwestycja jest realizowana przez Novdom Sp. z o.o.
Cała inwestycja składa się z 1 budynku, w którym łącznie znajduje się 57 nowych mieszkań.
Na sprzedaż pozostaje 39 ofert o powierzchni od 35 do 60 m².
W budynku są 4 kondygnacje naziemne oraz 1 kondygnacja podziemna.
Inwestycja Stacja Grodzisk jest w trakcie budowy z planowanym na 4 kw. 2027 roku terminem oddania do użytkowania.
Nowe mieszkanie o oznaczeniu 52 znajduje się na 2 piętrze i jest 1-poziomowe. Pomieszczenia mają od 260 do 280 centymetrów wysokości. W mieszkaniu znajdują się 2 pokoje.
Do mieszkania przewidziano możliwość zakupu komórki lokatorskiej, którą można zagospodarować na spiżarnię, warsztat czy składzik.
Dla przyszłych mieszkańców Stacja Grodzisk deweloper przewidział miejsca postojowe podziemne, miejsca postojowe naziemne.
Dzięki temu przyszli właściciele nie będą musieli poszukiwać wolnej przestrzeni parkingowej. Dodatkowo, miejsce postojowe w garażu podziemnym zabezpiecza przed niekorzystnymi warunkami atmosferycznymi.
Opis Inwestycji
Pow. dodatkowe
Stacja Grodzisk to nowoczesna inwestycja w Grodzisku Mazowieckim, która łączy wygodę codziennego życia z szybkim dojazdem do Warszawy.
W budynku zaprojektowano 57 mieszkań o powierzchniach od 28 do 60 m² – od kawalerek, przez mieszkania dwupokojowe, po większe trzypokojowe.
Każde mieszkanie powstaje tu z myślą o codziennym komforcie. Przemyślane układy sprawiają, że przestrzeń jest funkcjonalna i łatwa do aranżacji. Balkony i ogródki stają się idealnym miejscem na poranną kawę, relaks po pracy czy spotkanie z przyjaciółmi.
Lokalizacja inwestycji zapewnia szybkie i wygodne połączenie ze stolicą. Pobliska kładka prowadzi bezpiecznie do stacji kolejowej i przystanków autobusowych, a podróż do centrum Warszawy zajmuje jedynie 20 minut. To rozwiązanie pozwala korzystać ze wszystkich wygód dużego miasta, a jednocześnie cieszyć się spokojem i nie tracić czasu w korkach oraz czasochłonnych dojazdach.
Na terenie osiedla znajdują się praktyczne rozwiązania na co dzień, takie jak hala garażowa, komórki lokatorskie czy pomieszczenia na jednoślad. Całość uzupełnia nowoczesne oświetlenie i systemy domofonowe, które podnoszą poczucie bezpieczeństwa.
W pobliskim otoczeniu znajdują się parki, ścieżki rowerowe i tereny spacerowe – idealne na aktywny wypoczynek i kontakt z naturą po pracy. Wszystkie udogodnienia oraz otoczenie tworzą tutaj spokojną przestrzeń, a bliskość stolicy otwiera nowe możliwości.
Stacja Grodzisk – Bliżej Warszawy. Szybciej do domu.
Mieszkanie znajduje się w inwestycji Stacja Grodzisk, w której znajduje się w sprzedaży jeszcze 19 podobnych nowych mieszkań.
Novdom Sp. z o.o.
Strona internetowa inwestycjiAdres biura sprzedaży:
ul. 1 Maja 4, Grodzisk MazowieckiGodziny otwarcia biura sprzedaży:
- Poniedziałek: 10:00 - 18:00
- Wtorek: 08:00 - 16:00
- Środa: 08:00 - 16:00
- Czwartek: 08:00 - 16:00
- Piątek: 08:00 - 16:00
Inwestycje w pobliżu w Grodzisku Mazowieckim
Oferty w Grodzisku Mazowieckim
- Kawalerki Grodzisk Mazowiecki
- Mieszkania 2 pokoje Grodzisk Mazowiecki
- Mieszkania 3 pokoje Grodzisk Mazowiecki
- Mieszkania 4 pokoje Grodzisk Mazowiecki
- Mieszkania 5 pokoi Grodzisk Mazowiecki
- Mieszkania na ostatnim piętrze Grodzisk Mazowiecki
- Mieszkania z ogródkiem Grodzisk Mazowiecki
- Mieszkania na parterze Grodzisk Mazowiecki





