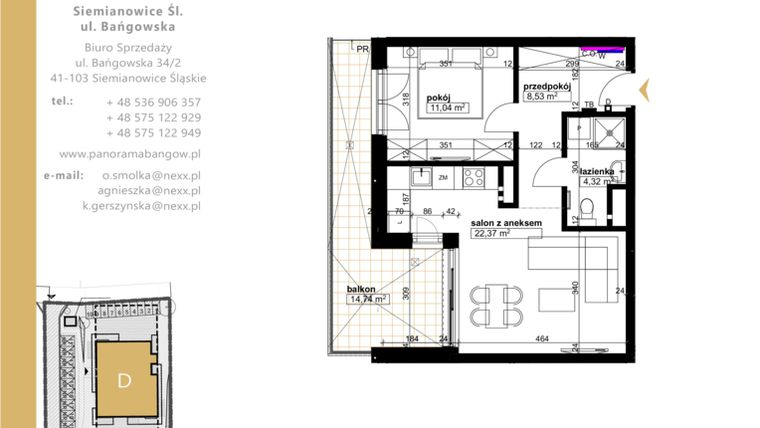
Mieszkanie na sprzedaż 2 pokoje o powierzchni 46,26 m² numer D.2.1
Inwestycja:
Panorama Bańgów Etap IIDeweloper:
NEXX Developer Sp. z o.o
Inwestycja:
Panorama Bańgów Etap IIDeweloper:
NEXX Developer Sp. z o.oSiemianowice Śląskie, ul. Bańgowska 34/2
Siemianowice Śląskie, ul. Bańgowska 34/2
Termin oddania
2 kw. 2028
Ilość pokoi
2 pokoje
Metraż
46,26 m²
Piętro
2 piętro
Kuchnia
otwarta kuchnia
Wysokość pomieszczeń
od 260 do 280 cm wysokości
Ilość poziomów
1 poziom
Oznaczenie oferty
D.2.1

Raport o deweloperze
Poznaj dewelopera bliżej! Pobierz raport, w którym znajdziesz kluczowe informacje o firmie, jej doświadczeniu, nagrodach oraz aktualnych i zrealizowanych inwestycjach.
Budynek i otoczenie
Miejsca postojowe | |
|---|---|
Komórki lokatorskie | dostępne (90): od 13.000 zł |
Standard wykończenia | standard deweloperski Ogrzewanie podłogowe miejskie |
Realizacja inwestycji | oddanie do użytkowania w 2 kw. 2028 roku |
Udogodnienia | plac zabaw, monitoring, teren ogrodzony, winda, rowerownia, inteligentny dom, wózkarnia, miejsce do ładowania samochodów elektrycznych |
Przyroda | informacja u dewelopera |
Charakterystyka energetyczna nieruchomości | informacja u dewelopera |
Rezerwacja i finanse
Rodzaj własności | informacja u dewelopera |
|---|---|
Wysokość czynszu | informacja u dewelopera |
Warunki rezerwacji | 1% opłata rezerwacyjna |
Zabezpieczenie środków | Otwarty mieszkaniowy rachunek powierniczy |
Zdjęcia z budowy
Zobacz na jakim etapie budowy jest ta inwestycja
Lokalizacja inwestycji
Przystanek Tramwajowy - 2088 m
Przystanek Autobusowy - 273 m
Dojazd do centrum Chorzowa: pokaż
W pobliżu 1 km od tej inwestycji znajdują się:
6 sklepów, 9 obiektów sportowych, 1 placówka medyczna, 4 placówki edukacyjne, 4 place zabaw
Przeczytaj więcej o lokalizacji
Województwo śląskie zajmuje powierzchnię 12 333,09 kilometrów kwadratowych. Jest to region posiadający najwyższy stopień urbanizacji oraz największą gęstość zaludnienia. Stolicą województwa jest miasto Katowice. Ciekawostką jest, iż na śląsku znajduje się więcej miast na prawach powiatu niżeli powiatów. Przeważają tu tereny wyżynne i górskie (średnia wysokość 318,9 m.n.p.mm), a najwyższym punktem jest wierzchołek Góry Pięciu Kopców posiadający 1534 m.n.p.m. W regionie tym znajduje się Górnośląski Okręg Przemysłowy, który jest najsilniej uprzemysłowionym obszarem Polski.
Opis oferty
Nowe 2-pokojowe mieszkanie na sprzedaż o powierzchni 46,26 m² znajduje się w nowo wybudowanej inwestycji deweloperskiej Panorama Bańgów Etap II w Siemianowicach Śląskich, ul. Bańgowska 34/2 (3.6 km od Chorzowa).
Inwestycja została zrealizowana przez NEXX Developer Sp. z o.o.
Cała inwestycja składa się z 3 budynków, w których łącznie znajduje się 110 nowych mieszkań.
Na sprzedaż pozostaje 91 ofert o powierzchni od 36 do 103 m².
W budynkach jest 6 kondygnacji naziemnych oraz 1 kondygnacja podziemna.
Inwestycja Panorama Bańgów Etap II jest w trakcie budowy z planowanym na 2 kw. 2028 roku terminem oddania do użytkowania.
Nowe mieszkanie o oznaczeniu D.2.1 znajduje się na 2 piętrze i jest 1-poziomowe. Pomieszczenia mają od 260 do 280 centymetrów wysokości. W mieszkaniu znajdują się 2 pokoje.
Do mieszkania przewidziano możliwość zakupu komórki lokatorskiej, którą można zagospodarować na spiżarnię, warsztat czy składzik.
Dla przyszłych mieszkańców Panorama Bańgów Etap II deweloper przewidział miejsca postojowe podziemne, miejsca postojowe naziemne.
Dzięki temu przyszli właściciele nie będą musieli poszukiwać wolnej przestrzeni parkingowej. Dodatkowo, miejsce postojowe w garażu podziemnym zabezpiecza przed niekorzystnymi warunkami atmosferycznymi.
Opis Inwestycji
Panorama Bańgów łączy nowoczesną architekturę, wysoką jakość wykonania i atrakcyjną cenę za metr kwadratowy, dzięki czemu stanowi konkurencyjną propozycję na tle innych inwestycji w aglomeracji. Kameralny charakter osiedla w połączeniu z otoczeniem zieleni sprawiają, że jest to idealna propozycja dla osób poszukujących nowych mieszkań w Siemianowicach Śląskich w spokojnym otoczeniu.
W ramach drugiego etapu inwestycji powstanie ponad 110 mieszkań o metrażach od 36 do 102 m² – dopasowanych zarówno do potrzeb rodzin, jak i inwestorów poszukujących mieszkań w Siemianowicach Śląskich blisko Katowic. To projekt, który łączy wygodę codziennego życia, bliskość natury oraz starannie przemyślane układy funkcjonalne.
Mieszkania – również te o mniejszych metrażach – wyposażono w duże, panoramiczne okna przesuwne, które zapewniają doskonałe doświetlenie i optycznie powiększają przestrzeń. Dzięki temu wnętrza są jasne, nowoczesne i otwarte na otaczającą zieleń. Na najwyższych kondygnacjach zaprojektowano przestronne apartamenty z wyjątkowo dużymi tarasami i widokiem na okolicę Bańgowa. Tego typu rozwiązania należą do rzadkości zarówno na rynku pierwotnym, jak i wtórnym wśród mieszkań na sprzedaż w Siemianowicach Śląskich.
Panorama Bańgów oferuje mieszkania dopasowane do różnych potrzeb – od kompaktowych układów dla singli i par, po przestronne lokale stworzone z myślą o rodzinach.
Szeroka gama dostępnych metraży pozwala znaleźć przestrzeń odpowiednią zarówno do codziennego życia, jak i pod inwestycję.
Mieszkanie znajduje się w inwestycji Panorama Bańgów Etap II, w której znajduje się w sprzedaży jeszcze 38 podobnych nowych mieszkań.
NEXX Developer Sp. z o.o
Strona internetowa inwestycjiAdres biura sprzedaży:
Siemianowice Śląskie ul. Bańgowska 34/2Godziny otwarcia biura sprzedaży:
- Poniedziałek: 09:00 - 17:00
- Wtorek: 09:00 - 17:00
- Środa: 09:00 - 17:00
- Czwartek: 09:00 - 17:00
- Piątek: 08:00 - 16:00





