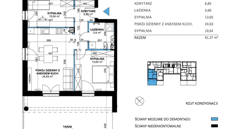
Mieszkanie na sprzedaż 3 pokoje o powierzchni 61,37 m² numer 2
Inwestycja:
Comfort CornerDeweloper:
Nest Development
Inwestycja:
Comfort CornerDeweloper:
Nest DevelopmentMurowana Goślina, ul. Kręta 56
Murowana Goślina, ul. Kręta 56
Termin oddania
Gotowe
Ilość pokoi
3 pokoje
Metraż
61,37 m²
Piętro
1 piętro
Strona świata
zachód, północ, południe
Powierzchnie dodatkowe
Taras
Kuchnia
otwarta kuchnia
Wysokość pomieszczeń
263 cm wysokości
Ilość poziomów
1 poziom
Oznaczenie oferty
2

Raport o deweloperze
Poznaj dewelopera bliżej! Pobierz raport, w którym znajdziesz kluczowe informacje o firmie, jej doświadczeniu, nagrodach oraz aktualnych i zrealizowanych inwestycjach.
Budynek i otoczenie
Miejsca postojowe | |
|---|---|
Standard wykończenia | standard deweloperski Ogrzewanie miejska sieć ciepłownicza |
Realizacja inwestycji | rozpoczęcie budowy w 3 kw. 2024 roku, inwestycja została oddana do użytkowania w 1 kw. 2026 roku |
Udogodnienia | teren ogrodzony, internet, przystosowane dla niepełnosprawnych, TV kablowa, winda, videodomofon, patio / dziedziniec, miejsca parkingowe dla gości |
Przyroda | w okolicy inwestycji znajduje się park |
Charakterystyka energetyczna nieruchomości |
|
Rezerwacja i finanse
Rodzaj własności | Odrębna własność z własnością gruntu |
|---|---|
Wysokość czynszu | informacja u dewelopera |
Warunki rezerwacji | Informacja u dewelopera |
Zabezpieczenie środków | Otwarty mieszkaniowy rachunek powierniczy |
Zdjęcia z budowy
Zobacz na jakim etapie budowy jest ta inwestycja
Lokalizacja inwestycji
Stacja kolejowa - Zielone Wzgórza - 1205 m
Przystanek Autobusowy - 333 m
Dojazd do centrum Poznania: pokaż
W pobliżu 1 km od tej inwestycji znajdują się:
7 kawiarni i restauracji, 22 sklepy, 20 obiektów sportowych, 7 placówek medycznych, 10 placówek edukacyjnych, 28 placów zabaw
Przeczytaj więcej o lokalizacji
Murowana Goślina to miasto położone w województwie wielkopolskim, w powiecie poznańskim. Znajduje się na zboczach doliny rzeczki Trojanki, niedaleko jej ujścia do Warty. Powierzchnia miasta wynosi 7,15 km2 i zamieszkuje ją ok.11 tysięcy osób. Położona 20 km od centrum Poznania, Murowana Goślina to region nowoczesny, nastawiony na nowe inwestycje oraz turystykę. Na terenie miasta znajduje się Park Krajobrazowy „Puszcza Zielonka”oraz oznakowane szlaki rowerowe, liczące ponad 500 km długości. Dodatkowo, w pobliżu usytuowane są liczne kąpieliska w Kamińsku i Wojnówku.
Opis oferty
Nowe 3-pokojowe mieszkanie na sprzedaż o powierzchni 61,37 m² znajduje się w nowo budowanej inwestycji deweloperskiej Comfort Corner w Murowanej Goślinie, ul. Kręta 56 (6.9 km od Poznania).
Inwestycja jest realizowana przez Nest Development.
Cała inwestycja składa się z 1 budynku, w którym łącznie znajduje się 26 nowych mieszkań.
Na sprzedaż pozostaje 20 ofert o powierzchni od 45 do 69 m².
W budynku są 4 kondygnacje naziemne. Budynek nie posiada kondygnacji podziemnych.
Inwestycja Comfort Corner została wybudowana i oddana do użytkowania w 1 kw. 2026 roku.
Nowe mieszkanie o oznaczeniu 2 znajduje się na 1 piętrze i jest 1-poziomowe. Pomieszczenia mają 263 centymetrów wysokości. W mieszkaniu znajdują się 3 pokoje.
Okna w mieszkaniu wychodzą na zachód, północ, południe.
Północna ekspozycja to idealny wybór dla osób ceniących przytulne i klimatyczne wnętrza. Delikatne, rozproszone światło sprzyja harmonii i stwarza doskonałe warunki do relaksu lub pracy. Okna na północ zapewnią równomierne oświetlenie przez cały dzień.
Okna wychodzące na południe gwarantują maksymalną ilość naturalnego światła, co czyni wnętrza jasnymi i ciepłymi. Dodatkowo południowa ekspozycja pomaga obniżyć koszty ogrzewania w zimie. Okna na południe są idealne dla osób pragnących cieszyć się jasnym otoczeniem, które sprzyja dobremu samopoczuciu oraz pozytywnej energii.
Zachodnia ekspozycja to gwarancja intensywnego popołudniowego światła, które nadaje wnętrzom przytulności i ciepła. Idealne dla miłośników słonecznych wieczorów, którzy pragną cieszyć się pięknymi zachodami słońca we własnym domu. Zachodnie światło podkreśla kolory i faktury w aranżacji wnętrz, tworząc atmosferę sprzyjającą relaksowi po długim dniu.
Dla przyszłych mieszkańców Comfort Corner deweloper przewidział miejsca postojowe naziemne.
Dzięki temu przyszli właściciele nie będą musieli poszukiwać wolnej przestrzeni parkingowej.
Mieszkanie znajduje się w inwestycji Comfort Corner, w której znajduje się w sprzedaży jeszcze 10 podobnych nowych mieszkań.
Nest Development
Strona internetowa inwestycjiAdres biura sprzedaży:
ul. M. Palacza 89, 60-273 PoznańGodziny otwarcia biura sprzedaży:
- Poniedziałek: 09:00 - 17:00
- Wtorek: 09:00 - 17:00
- Środa: 09:00 - 17:00
- Czwartek: 09:00 - 17:00
- Piątek: 09:00 - 17:00





