Mieszkanie na sprzedaż 4 pokoje o powierzchni 79,4 m² numer 58
Inwestycja:
Osiedle BorzęcinDeweloper:
NAMI Development
Inwestycja:
Osiedle BorzęcinDeweloper:
NAMI Developmentwarszawski zachodni, Borzęcin Duży, ul. Warszawska
warszawski zachodni, Borzęcin Duży, ul. Warszawska
Uwaga
Ta nieruchomość jest nieaktywna. Informacje na jej temat pomagają nam jednak tworzyć wiarygodną bazę informacji na temat lokalnego rynku nieruchomości statystycznych portalu
Termin oddania
Gotowe
Ilość pokoi
4 pokoje
Metraż
79,4 m²
Piętro
2 piętro
Strona świata
zachód, północ
Powierzchnie dodatkowe
Balkon
Kuchnia
otwarta kuchnia
Wysokość pomieszczeń
od 260 do 263 cm wysokości
Ilość poziomów
1 poziom
Oznaczenie oferty
58

Raport o deweloperze
Poznaj dewelopera bliżej! Pobierz raport, w którym znajdziesz kluczowe informacje o firmie, jej doświadczeniu, nagrodach oraz aktualnych i zrealizowanych inwestycjach.
Budynek i otoczenie
Miejsca postojowe | |
|---|---|
Komórki lokatorskie | dostępne (16) |
Standard wykończenia | standard deweloperski |
Realizacja inwestycji | rozpoczęcie budowy w 1 kw. 2024 roku, inwestycja została oddana do użytkowania w 3 kw. 2025 roku |
Udogodnienia | winda, rowerownia, patio / dziedziniec |
Przyroda | w okolicy inwestycji znajduje się las, rezerwat przyrody |
Charakterystyka energetyczna nieruchomości |
|
Rezerwacja i finanse
Rodzaj własności | Odrębna własność z własnością gruntu |
|---|---|
Wysokość czynszu | informacja u dewelopera |
Warunki rezerwacji | Informacja u dewelopera |
Zabezpieczenie środków | Informacja u dewelopera |
Lokalizacja inwestycji
Przystanek Autobusowy - 136 m
Dojazd do centrum Warszawy: pokaż
W pobliżu 1 km od tej inwestycji znajdują się:
1 sklep, 2 obiekty sportowe, 1 placówka medyczna, 6 placówek edukacyjnych, 1 plac zabaw
Przeczytaj więcej o lokalizacji
Powiat warszawski zachodni usytuowany jest w środkowej części województwa mazowieckiego i zajmuje obszar o powierzchni 533 km2, na którym mieszka ponad 100 tys. osób. Na atrakcyjność lokalizacji wpływa zarówno niewielka odległość od Warszawy, jak i obecność Puszczy Kampinoskiej. Do terytorium powiatu należą gminy miejsko-wiejskie: Łomianki, Błonie i Ożarów Mazowiecki oraz obszary wiejskie: Izabelin, Kampinos, Leszno i Stare Babice. Południową cześć zajmują grunty uprawne, a w Broniszach znajduje się – jeden z największych w kraju – Rolno-Spożywczy Rynek Hurtowy. Bliskość stolicy oraz zielone, zaciszne okolice wpływają na rozwój architektury mieszkalnej: domów jednorodzinnych i budynków wielorodzinnych. Przemysł rozwija się w Ożarowie Mazowieckim oraz w Błoniach, gdzie mieszczą się Zakłady Mechaniczno-Precyzyjne. Miejscami zakupów są: 2 galerie i centrum handlowe. Przez powiat przebiegają drogi krajowe: nr 2 (Warszawa – Poznań), nr 7 (Gdańsk – Chyżne) i nr 92 (Rzepin – Warszawa).
Opis oferty
Nowe 4-pokojowe mieszkanie na sprzedaż o powierzchni 79,4 m² znajduje się w nowo budowanej inwestycji deweloperskiej Osiedle Borzęcin w Borzęcinie Dużym, ul. Warszawska (8.9 km od Warszawy).
Inwestycja jest realizowana przez NAMI Development.
Cała inwestycja składa się z 2 budynków, w których łącznie znajduje się 70 nowych mieszkań.
Inwestycja jest już wyprzedana.
W budynkach są 3 kondygnacje naziemne oraz 1 kondygnacja podziemna.
Inwestycja Osiedle Borzęcin została wybudowana i oddana do użytkowania w 3 kw. 2025 roku.
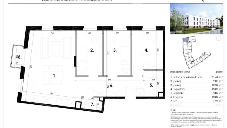
Nowe mieszkanie o oznaczeniu 58 znajduje się na 2 piętrze i jest 1-poziomowe. Pomieszczenia mają od 260 do 263 centymetrów wysokości. W mieszkaniu znajdują się 4 pokoje.
Do mieszkania przewidziano możliwość zakupu komórki lokatorskiej, którą można zagospodarować na spiżarnię, warsztat czy składzik.
Okna w mieszkaniu wychodzą na zachód, północ.
Północna ekspozycja to idealny wybór dla osób ceniących przytulne i klimatyczne wnętrza. Delikatne, rozproszone światło sprzyja harmonii i stwarza doskonałe warunki do relaksu lub pracy. Okna na północ zapewnią równomierne oświetlenie przez cały dzień.
Zachodnia ekspozycja to gwarancja intensywnego popołudniowego światła, które nadaje wnętrzom przytulności i ciepła. Idealne dla miłośników słonecznych wieczorów, którzy pragną cieszyć się pięknymi zachodami słońca we własnym domu. Zachodnie światło podkreśla kolory i faktury w aranżacji wnętrz, tworząc atmosferę sprzyjającą relaksowi po długim dniu.
Dla przyszłych mieszkańców Osiedle Borzęcin deweloper przewidział miejsca postojowe podziemne, miejsca postojowe naziemne.
Dzięki temu przyszli właściciele nie będą musieli poszukiwać wolnej przestrzeni parkingowej. Dodatkowo, miejsce postojowe w garażu podziemnym zabezpiecza przed niekorzystnymi warunkami atmosferycznymi.
Opis Inwestycji
Pow. dodatkowe
Witamy w sąsiedztwie Bemowa, Starych Babic i Ożarowa Mazowieckiego, w Borzęcinie Dużym. Osiedle Borzęcin to wyjątkowa alternatywa, wobec zgiełku i ruchu zatłoczonych miejscowości sąsiednich.
U nas czas płynie wolniej, co sprawia, że po powrocie do domu możesz prawdziwie odpocząć i poczuć się… jak w domu.
Lokalizacja Osiedla Borzęcin jest niezwykle atrakcyjna, zaledwie 20 minut jazdy samochodem od granic administracyjnych Warszawy. Taki sam czas potrzebny jest na dojazd do Ożarowa Mazowieckiego, Błonia i niewiele dłużej do Grodziska Mazowieckiego.
Osiedle Borzęcin jest niezwykle atrakcyjne dla rodzin z dziećmi, w najbliższym sąsiedztwie jest szkoła podstawowa oraz punkt publicznej opieki zdrowotnej, a także sklep spożywczo-przemysłowy. Rodzice starszych dzieci oraz dorośli korzystający z komunikacji zbiorowej docenią fakt przystanków autobusowych tuż przy naszej inwestycji, co znacznie poprawia bezpieczeństwo komunikacji. Serdecznie zapraszamy wszystkich ceniących sobie komfortowe mieszkanie, w nowoczesnym budynku oraz w sielankowej atmosferze.
Mieszkanie znajduje się w inwestycji Osiedle Borzęcin.





