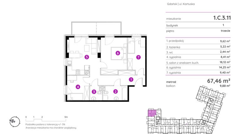
Mieszkanie na sprzedaż 4 pokoje o powierzchni 67,46 m² numer 1.C.3.11
Inwestycja:
Murapol ScarpaDeweloper:
Murapol Real Estate
Inwestycja:
Murapol ScarpaDeweloper:
Murapol Real EstateGdańsk, Siedlce, ul. Kartuska
Gdańsk, Siedlce, ul. Kartuska
Promocje
Promocja
Kwiecień rozkwita bonusami! Wybierz lokal z puli promocyjnej i oszczędź nawet 132 tys. zł
Wybierz lokal z kwietniowymi bonusami w Gdańsku! Wszystkie posiadają w standardzie pakiet antysmogowy, a w promocyjnej puli znajdziesz mieszkania i apartamenty inwestycyjne o zróżnicowanych układach i metrażach. Wybrane będą do odbioru wiosną 2026!
Promocja
Szukasz przestronnego mieszkania dla całej rodziny?
Sprawdź ofertę mieszkań gotowych do odbioru już w tym roku o funkcjonalnych układach, zaprojektowanych z myślą o komforcie wszystkich domowników w inwestycji Murapol Scarpa przy ul. Kartuskiej na Siedlcach, zaledwie 2 km od Głównego Miasta.
Promocja
Umowa deweloperska lub przedwstępna za 0 zł do 3 dni od podpisania umowy rezerwacyjnej
Szukasz mieszkania w okolicach Winnej Góry lub na południu Gdańska? Sprawdź nasze inwestycje w atrakcyjnych lokalizacjach! Oferta obejmuje zróżnicowane metraże i kompaktowe układy mieszkań z dwustronną ekspozycją oraz pakietem antysmogowym.
Promocja
Poleć ofertę Grupy Murapol i zyskaj nawet 5 000 zł!
Doceniasz nowoczesne inwestycje i podwyższony standard mieszkań oraz apartamentów inwestycyjnych Grupy Murapol? Poleć naszą ofertę znajomym lub rodzinie! Odbierz nagrodę nawet 5 000 zł. Już 1,3 tys. osób skorzystało z programu poleceń!
Oddanie
Gotowe
Ilość pokoi
4 pokoje
Metraż
67,46 m²
Piętro
3 piętro
Strona świata
wschód, północ
Dodatkowe
Balkon
Kuchnia
otwarta kuchnia
Wysokość
250 cm wysokości
Poziomy
3 poziomy
Oznaczenie oferty
1.C.3.11

Raport o deweloperze
Poznaj dewelopera bliżej! Pobierz raport, w którym znajdziesz kluczowe informacje o firmie, jej doświadczeniu, nagrodach oraz aktualnych i zrealizowanych inwestycjach.
Budynek i otoczenie
Miejsca postojowe | |
|---|---|
Garaże | garaż jednostanowiskowy |
Komórki lokatorskie | dostępne (97): Informacja u dewelopera. |
Standard wykończenia | standard deweloperski |
Realizacja inwestycji | rozpoczęcie budowy w 4 kw. 2023 roku, inwestycja została oddana do użytkowania w 1 kw. 2026 roku |
Udogodnienia | winda, inteligentny dom, miejsce do ładowania samochodów elektrycznych |
Przyroda | informacja u dewelopera |
Charakterystyka energetyczna nieruchomości |
|
Rezerwacja i finanse
Rodzaj własności | informacja u dewelopera |
|---|---|
Wysokość czynszu | informacja u dewelopera |
Warunki rezerwacji | Informacja u dewelopera |
Zabezpieczenie środków | Informacja u dewelopera |
Postępy i zdjęcia z budowy
Zobacz na jakim etapie budowy jest ta inwestycja
Lokalizacja inwestycji
Stacja kolejowa - Gdańsk Śródmieście - 1895 m
Przystanek Tramwajowy - 191 m
Przystanek Autobusowy - 143 m
Dojazd do centrum: pokaż
W pobliżu 1 km od tej inwestycji znajdują się:
6 kawiarni i restauracji, 48 sklepów, 46 obiektów sportowych, 10 placówek medycznych, 33 placówki edukacyjne, 46 placów zabaw
Przeczytaj więcej o lokalizacji
Siedlce to niezwykle kameralna dzielnica Gdańska położona w środkowej części miasta i granicząca od zachodu z samym Śródmieściem. Jest to świetna propozycja dla osób ceniących sobie spokój, niepowtarzalną atmosferę, a zarazem bliskość tętniącego życiem serca Trójmiasta. Dominuje tu niska zabudowa mieszkalna – kamienice i nowoczesne osiedla a także charakterystyczne tzw. domy pruskie, z których najstarsze sięgają XVIII wieku. Przez dzielnicę przebiega kilka linii autobusowych oraz linia tramwajowa a także ul. Kartuska – jedna z głównych arterii Gdańska, przy której można znaleźć większość kawiarni, restauracji i sklepów. Największe zabytki okolicy to kościół św. Franciszka i zespół młynów przy ul. Kartuskiej 213/215. Dzielnica posiada własne licea oraz szkoły podstawowe. Działa tu też klub sportowy EX Siedlce Gdańsk i centrum sztuk walki. W odległości ok. 500 m od Siedlec znajduje się stacja PKP Gdańsk Główny, Starówka, Multikino, CH Morena, Pasaż Chełmski czy Muzeum Narodowe. Najbliższy szpital (COPERNICUS) znajduje się ok. 300 m na zachód od granicy dzielnicy, a na terenie samych Siedlec znajduje się NZOZ Kartuska. Siedlce liczą sobie powierzchnię 2,58 km kw., zamieszkiwaną przez ponad 12 tys. osób.
Opis oferty
Nowe 4-pokojowe mieszkanie na sprzedaż o powierzchni 67,46 m² znajduje się w nowo budowanej inwestycji deweloperskiej Murapol Scarpa na Siedlcach, ul. Kartuska (2 km od centrum Gdańska).
Inwestycja jest realizowana przez Murapol Real Estate.
Cała inwestycja składa się z 2 budynków, w których łącznie znajdują się 282 nowe mieszkania.
Na sprzedaż pozostają 24 oferty o powierzchni od 40 do 76 m².
W budynkach jest 7 kondygnacji naziemnych oraz 1 kondygnacja podziemna.
Inwestycja Murapol Scarpa została wybudowana i oddana do użytkowania w 1 kw. 2026 roku.
Nowe mieszkanie o oznaczeniu 1.C.3.11 znajduje się na 3 piętrze i jest 3-poziomowe. Pomieszczenia mają 250 centymetrów wysokości. W mieszkaniu znajdują się 4 pokoje.
Do mieszkania przewidziano możliwość zakupu komórki lokatorskiej, którą można zagospodarować na spiżarnię, warsztat czy składzik.
Okna w mieszkaniu wychodzą na wschód, północ.
Północna ekspozycja to idealny wybór dla osób ceniących przytulne i klimatyczne wnętrza. Delikatne, rozproszone światło sprzyja harmonii i stwarza doskonałe warunki do relaksu lub pracy. Okna na północ zapewnią równomierne oświetlenie przez cały dzień.
Wschodnia orientacja zapewnia dostęp do łagodnego porannego światła, idealnego dla rozpoczęcia dnia pełnego energii. Wnętrza pozostają jasne, ale nieprzegrzane, co sprzyja utrzymaniu komfortowej temperatury. Przebywanie w pomieszczeniu z oknami na wschód inspiruje do działania i pozytywnie wpływa na poranny rytuał.
Dla przyszłych mieszkańców Murapol Scarpa deweloper przewidział miejsca postojowe podziemne.
Dzięki temu przyszli właściciele nie będą musieli poszukiwać wolnej przestrzeni parkingowej. Dodatkowo, miejsce postojowe w garażu podziemnym zabezpiecza przed niekorzystnymi warunkami atmosferycznymi.
Opis Inwestycji
Okazyjna cena
Pow. dodatkowe
WYBRANE MIESZKANIA W PAKIECIE Z MIEJSCEM POSTOJOWYM W CENIE 15000 ZŁ- 30000 ZŁ I/LUB KOMÓRKĄ LOKATORSKĄ W CENIE 19710 ZŁ-40500 ZŁ. O SZCZEGÓŁY ZAPYTAJ DEWELOPERA.
Murapol Scarpa to wyjątkowa inwestycja mieszkaniowa zaprojektowana w dolinie potoku Siedleckiego, która prowadzi ulicą Kartuską wprost do Głównego Miasta. Na ustokach Winnej Góry, u stóp której powstanie Murapol Scarpa, przed wiekami uprawiano winorośl i prowadzono winnice. Dzisiaj wzgórze stanowi punkt widokowy i prezentuje nową perspektywę na Gdańsk z jego najbardziej symbolicznymi obiektami.
Stworzyliśmy to miejsce z myślą o tych, którzy pragną wieść spokojne i wygodne życie, acz nie mniej interesujące z uwagi na bliskość śródmiejskich atrakcji. Zaledwie kilka chwil dzieli przyszłych mieszkańców Murapol Scarpa od zabytkowego Prawego Miasta, w tym m.in. Bramy Wyżynnej i fontanny Neptuna, odrestaurowanego dworca głównego czy nowoczesnej galerii handlowej Forum Gdańsk.
W ramach inwestycji zaprojektowaliśmy dwa 6-piętrowe budynki wraz z podziemnymi halami garażowymi i lokalami usługowymi. Stworzymy tutaj 282 kompaktowe mieszkania z nowoczesnymi udogodnieniami. Funkcjonalne układy kawalerek oraz 2-, 3- i 4-pokojowe mieszkania zapewnią zarówno najwyższy komfort lokatorom, jak i atrakcyjność inwestycyjną dla osób pragnących zabezpieczyć swój kapitał w nieruchomościach.
Zamieszkaj u bram Śródmieścia i odkryj własną perspektywę na Gdańsk
• Instalacja Home Management System pozwoli mieszkańcom korzystać z najnowocześniejszych technologii inteligentnego domu, w tym sterować temperaturą, zaworami wody czy elektrycznością za pomocą aplikacji mobilnej bądź manualnie.
• Pakiet antysmogowy zapewnia stały dostęp świeżego powietrza w mieszkaniu. Filtry montowane w nawiewnikach okiennych eliminują nie tylko zanieczyszczenia, ale i alergeny, pyłki roślin czy nawet dostęp owadów.
• Dekoracyjne panele meblowe z wytrzymałego laminatu, wysokogatunkowy tynk mozaikowy czy trwałe płytki gresowe to jedynie część elementów wysokiej jakości wykończenia części wspólnych. W holach wejściowych zaprojektowaliśmy ponadto duże lustra oraz estetyczne i nierdzewne skrzynki pocztowe.
• Na klatkach schodowych i w korytarzach stosujemy również energooszczędną oprawę liniową LED, dzięki której koszty utrzymania budynków będą niższe.
• Mieszkania na piętrach będą posiadać balkony – nawet dwa w przypadku poszczególnych lokali. Dodatkowo mieszkania na 5. i 6. kondygnacji oferują dodatkową przestrzeń plenerową w formie dużych tarasów o powierzchni nawet 37 mkw. Zaprojektowane przy użyciu termoizolacyjnych łączników balkony zapobiegną ponadto utracie ciepła.
• Tarasy wybrukowane kostką z zielonymi ogródkami o powierzchni aż do 104 mkw. będą przynależeć do mieszkań dostępnych na kondygnacjach parterowych.
• Okna portfenetrowe, rozciągające się niemal od podłogi do sufitu, zapewnią wysokie nasłonecznienie mieszkań.
• W budynku od strony ul. Kartuskiej powstaną również lokale handlowo-usługowe, dzięki czemu pod ręką będziemy mieli sklep bądź salon fryzjerski.
• Osiedle zostanie podłączone do miejskiego węzła cieplnego.
• Z myślą o najmłodszych lokatorach oraz rodzicach na terenie osiedla przewidziano plac zabaw.
• W obszarze inwestycji powstaną ogrody deszczowe, które będą miejscem spotkań i rekreacji oraz zapewnią odpowiednią retencję wody.
Termin zakończenia budowy:
• bud. 1 - I Q 2026
• bud. 2 - IV Q 2025
Mieszkanie znajduje się w inwestycji Murapol Scarpa, w której znajduje się w sprzedaży jeszcze 20 podobnych nowych mieszkań.
Murapol Real Estate
Strona internetowa inwestycjiAdres biura sprzedaży:
ul. Kartuska 125, 80-134 GdańskGodziny otwarcia biura sprzedaży:
- Poniedziałek: 09:00 - 18:00
- Wtorek: 09:00 - 18:00
- Środa: 09:00 - 18:00
- Czwartek: 09:00 - 18:00
- Piątek: 09:00 - 18:00
- Sobota: 09:00 - 14:00
Artykuły powiązane:
:format(jpg)/articles/gallery/image/11509/wroc%C5%82aw-widok-stare-miasto.jpg)
Wrocław - dlaczego warto w nim zainwestować?
Skąd bierze się fenomen Wrocławia i co sprawia, że ludzie tak chętnie osiadają w tym mieście, a jego mieszkańcy są niezmiennie zadowoleni z miejsca zamieszkania? Sprawdź! Wrocław jest jednym z najstarszych miast w Polsce, jego początki sięgają już X wieku....
06 lipca 2020
Murapol S.A.
:format(jpg)/articles/gallery/image/9813/e54c4c.jpg)
Czy warto zamieszkać na peryferiach Wrocławia?
Jakie są zalety mieszkania na peryferiach? Sprawdźcie ofertę mieszkań od deweloperów na peryferiach Wrocławia! We Wrocławiu ceny nowych mieszkań w samym centrum lub stosunkowo blisko Rynku potrafią sięgać nawet 8 tys. złotych za metr kwadratowy. Średnia cena na rynku deweloperskim...
30 października 2019
Bartosz Moch





