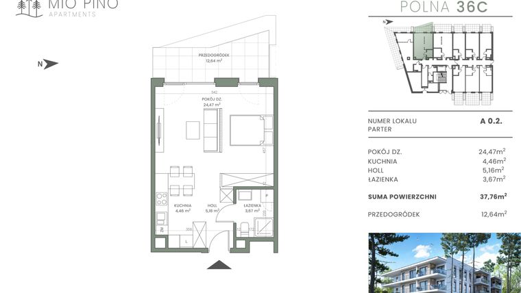
Apartament na sprzedaż 2 pokoje o powierzchni 37,18 m² numer 0.2
Inwestycja:
Mio PinoDeweloper:
MIO PINO Sp. z o.o.
Inwestycja:
Mio PinoDeweloper:
MIO PINO Sp. z o.o.Międzyzdroje, Polna 36C
Międzyzdroje, Polna 36C
Oddanie
Gotowe
Ilość pokoi
2 pokoje
Metraż
37,18 m²
Piętro
Parter
Strona świata
zachód
Dodatkowe
Ogródek
Kuchnia
otwarta kuchnia
Wysokość
280 cm wysokości
Poziomy
1 poziom
Oznaczenie oferty
0.2

Raport o deweloperze
Poznaj dewelopera bliżej! Pobierz raport, w którym znajdziesz kluczowe informacje o firmie, jej doświadczeniu, nagrodach oraz aktualnych i zrealizowanych inwestycjach.
Budynek i otoczenie
Miejsca postojowe | |
|---|---|
Standard wykończenia | standard deweloperski Ogrzewanie podłogowe |
Realizacja inwestycji | rozpoczęcie budowy w 4 kw. 2024 roku, inwestycja została oddana do użytkowania w 1 kw. 2026 roku |
Udogodnienia | monitoring, teren ogrodzony, klimatyzacja, winda, rowerownia, instalacja fotowoltaiczna, pompa ciepła |
Przyroda | w okolicy inwestycji znajduje się morze, rezerwat przyrody |
Charakterystyka energetyczna nieruchomości | informacja u dewelopera |
Rezerwacja i finanse
Rodzaj własności | Odrębna własność z własnością gruntu |
|---|---|
Wysokość czynszu | informacja u dewelopera |
Warunki rezerwacji | umowa rezerwacyjna 5000zł / 2 tygodnie |
Zabezpieczenie środków | Informacja u dewelopera |
Postępy i zdjęcia z budowy
Zobacz na jakim etapie budowy jest ta inwestycja
Lokalizacja inwestycji
Stacja kolejowa - Międzyzdroje - 1328 m
Przystanek Autobusowy - 27 m
Dojazd do centrum: pokaż
W pobliżu 1 km od tej inwestycji znajdują się:
12 kawiarni i restauracji, 8 sklepów, 21 obiektów sportowych, 10 placów zabaw
Przeczytaj więcej o lokalizacji
Międzyzdroje to jedna z popularniejszych miejscowości nadmorskich w Polsce. Leży na wyspie Wolin w powiecie kamieńskim na Pomorzu Zachodnim i bezpośrednio sąsiaduje z Wolińskim Parkiem Narodowym oraz z Bałtykiem. Od strony nadmorskiej zabudowa ma charakter historyczno-turystyczny, znajdują się tu główne atrakcje miejscowości. Pozostała część to obszar mieszkalny przeplatany budynkami usługowymi i najważniejszymi instytucjami. W Międzyzdrojach znajdują się także zakłady opieki zdrowotnej. Dzieci i młodzież mają dostęp do trzech placówek oświatowych. Jest tu ośrodek szkoleniowo-wypoczynkowy z boiskami i kortami tenisowymi. Działa kino, salon gier i planetarium.
Opis oferty
Nowy 2-pokojowy apartament na sprzedaż o powierzchni 37,18 m² znajduje się w nowo budowanej inwestycji deweloperskiej Mio Pino w Międzyzdrojach (0.3 km od centrum Międzyzdrojów).
Inwestycja jest realizowana przez MIO PINO Sp. z o.o.
Cała inwestycja składa się z 1 budynku, w którym łącznie znajdują się 33 nowe apartamenty.
Na sprzedaż pozostają 24 oferty o powierzchni od 36 do 51 m².
W budynku są 4 kondygnacje naziemne. Budynek nie posiada kondygnacji podziemnych.
Inwestycja Mio Pino została wybudowana i oddana do użytkowania w 1 kw. 2026 roku.
Nowy apartament o oznaczeniu 0.2 znajduje się na parterze i jest 1-poziomowy. Pomieszczenia mają 280 centymetrów wysokości. W apartamencie znajdują się 2 pokoje.
Okna w apartamencie wychodzą na zachód.
Zachodnia ekspozycja to gwarancja intensywnego popołudniowego światła, które nadaje wnętrzom przytulności i ciepła. Idealne dla miłośników słonecznych wieczorów, którzy pragną cieszyć się pięknymi zachodami słońca we własnym domu. Zachodnie światło podkreśla kolory i faktury w aranżacji wnętrz, tworząc atmosferę sprzyjającą relaksowi po długim dniu.
Dla przyszłych mieszkańców Mio Pino deweloper przewidział miejsca postojowe naziemne.
Dzięki temu przyszli właściciele nie będą musieli poszukiwać wolnej przestrzeni parkingowej.
Opis Inwestycji
Pow. dodatkowe
MIO PINO to komfort mieszkania, spokój natury, zieleń drzew i błękit morza, który w niezwykły sposób łączy się z emocjami miasta.
Zapraszamy do MIO PINO – kameralnego, 4 kondygnacyjnego budynku, który łączy nowoczesność z naturą. Obiekt wyróżnia się modernistyczną bryłą budynku utrzymaną w jasnych naturalnych kolorach.
Inspiracją dla naszego projektu były najlepsze tradycje włoskiego designu, znanego z elegancji, dbałości o szczegóły i użycia wysokiej jakości materiałów. Na elewacji zastosowano okładziny HPL w jasnych naturalnych kolorach w połączeniu z odcieniami jasnego drewna. Lekkości nadają szklane balustrady balkonów oraz duże przeszklenia okien w ramach o ciekawym odcieniu taupe.
Apartament znajduje się w inwestycji Mio Pino, w której znajduje się w sprzedaży jeszcze 16 podobnych nowych apartamentów.
MIO PINO Sp. z o.o.
Strona internetowa inwestycjiAdres biura sprzedaży:
Szczecin ul. T.A.Wendy 10CGodziny otwarcia biura sprzedaży:
- Poniedziałek: 08:00 - 16:00
- Wtorek: 08:00 - 16:00
- Środa: 08:00 - 16:00
- Czwartek: 08:00 - 16:00
- Piątek: 08:00 - 16:00





