Apartament na sprzedaż 2 pokoje o powierzchni 36,83 m² - numer 0.3512 000 zł13 902 zł/m2Estymowana rata kredytu: 2 589 zł
Estymowana rata kredytu: 2 589 zł
Rezerwacja
Inwestycja:
Mio PinoDeweloper:
MIO PINO Sp. z o.o.
Inwestycja:
Mio PinoDeweloper:
MIO PINO Sp. z o.o.Międzyzdroje, Polna 36C
Międzyzdroje, Polna 36C
:format(jpg)/properties/planimagepage/image/1211878/9ca422.png)
:format(jpg)/offers/offer/18151/main_image/mio-pino_b48b5c.jpg)
1 zdjęcie
Termin oddania
1 kw. 2026
Ilość pokoi
2 pokoje
Metraż
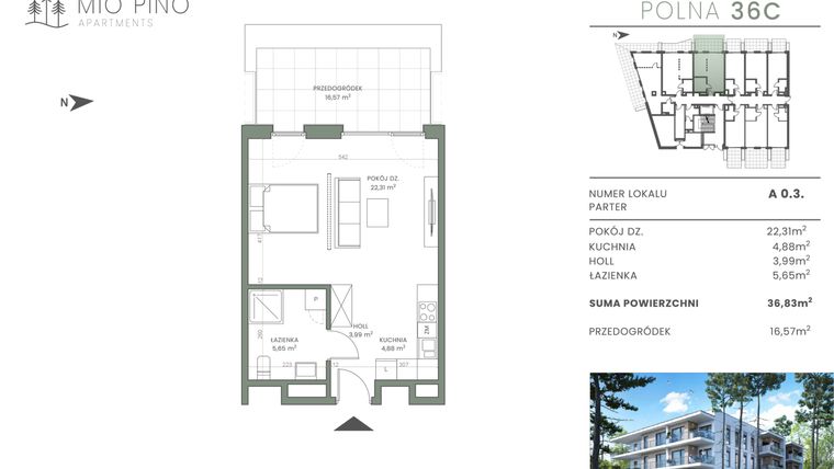
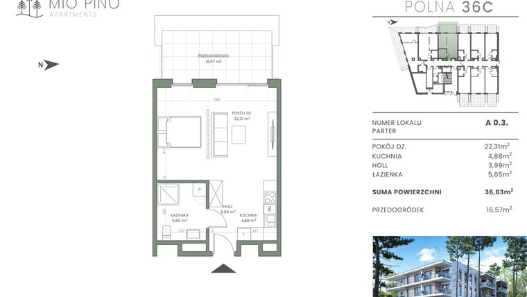
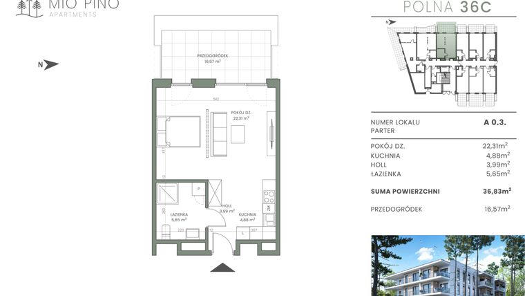
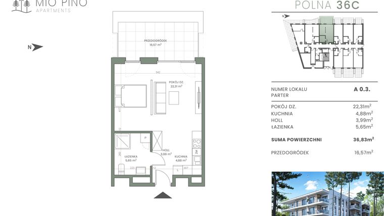
36,83 m²
Piętro
Parter
Strona świata
zachód
Powierzchnie dodatkowe
Ogródek
Kuchnia
otwarta kuchnia
Wysokość pomieszczeń
280 cm wysokości
Ilość poziomów
1 poziom
Oznaczenie oferty
0.3
Budynek i otoczenie
Miejsca postojowe
- miejsca postojowe naziemne
Standard wykończenia
standard deweloperski
Ogrzewanie
podłogowe
Realizacja inwestycji
Udogodnienia
Przyroda
Charakterystyka energetyczna nieruchomości
Rezerwacja i finanse
Rodzaj własności
Wysokość czynszu
Warunki rezerwacji
Zabezpieczenie środków
Zdjęcia z budowy
Zobacz na jakim etapie budowy jest ta inwestycja
Lokalizacja inwestycji
Stacja kolejowa - Międzyzdroje - 1328 m
Przystanek Autobusowy - 27 m
Dojazd do centrum: pokaż
W pobliżu 1 km od tej inwestycji znajdują się:
12 kawiarni i restauracji, 8 sklepów, 21 obiektów sportowych, 10 placów zabaw
Przeczytaj więcej o lokalizacji
Międzyzdroje to jedna z popularniejszych miejscowości nadmorskich w Polsce. Leży na wyspie Wolin w powiecie kamieńskim na Pomorzu Zachodnim i bezpośrednio sąsiaduje z Wolińskim Parkiem Narodowym oraz z Bałtykiem. Od strony nadmorskiej zabudowa ma charakter historyczno-turystyczny, znajdują się tu główne atrakcje miejscowości. Pozostała część to obszar mieszkalny przeplatany budynkami usługowymi i najważniejszymi instytucjami. W Międzyzdrojach znajdują się także zakłady opieki zdrowotnej. Dzieci i młodzież mają dostęp do trzech placówek oświatowych. Jest tu ośrodek szkoleniowo-wypoczynkowy z boiskami i kortami tenisowymi. Działa kino, salon gier i planetarium.
Opis oferty
Nowy 2-pokojowy apartament na sprzedaż o powierzchni 36,83 m² znajduje się w nowo budowanej inwestycji deweloperskiej Mio Pino w Międzyzdrojach (0.3 km od centrum Międzyzdrojów).
Inwestycja jest realizowana przez MIO PINO Sp. z o.o.
Cała inwestycja składa się z 1 budynku, w którym łącznie znajdują się 33 nowe apartamenty.
Na sprzedaż pozostaje 25 ofert o powierzchni od 37 do 51 m².
W budynku są 4 kondygnacje naziemne. Budynek nie posiada kondygnacji podziemnych.
Inwestycja Mio Pino jest w trakcie budowy z planowanym na 1 kw. 2026 roku terminem oddania do użytkowania.
Nowy apartament o oznaczeniu 0.3 znajduje się na parterze i jest 1-poziomowy. Pomieszczenia mają 280 centymetrów wysokości. W apartamencie znajdują się 2 pokoje.
Okna w apartamencie wychodzą na zachód.
Zachodnia ekspozycja to gwarancja intensywnego popołudniowego światła, które nadaje wnętrzom przytulności i ciepła. Idealne dla miłośników słonecznych wieczorów, którzy pragną cieszyć się pięknymi zachodami słońca we własnym domu. Zachodnie światło podkreśla kolory i faktury w aranżacji wnętrz, tworząc atmosferę sprzyjającą relaksowi po długim dniu.
Dla przyszłych mieszkańców Mio Pino deweloper przewidział miejsca postojowe naziemne.
Dzięki temu przyszli właściciele nie będą musieli poszukiwać wolnej przestrzeni parkingowej.
Cena ofertowa apartamentu wynosi 512 000 zł (13 902 zł/m²).
Opis Inwestycji
Pow. dodatkowe
MIO PINO to komfort mieszkania, spokój natury, zieleń drzew i błękit morza, który w niezwykły sposób łączy się z emocjami miasta.
Zapraszamy do MIO PINO – kameralnego, 4 kondygnacyjnego budynku, który łączy nowoczesność z naturą. Obiekt wyróżnia się modernistyczną bryłą budynku utrzymaną w jasnych naturalnych kolorach.
Inspiracją dla naszego projektu były najlepsze tradycje włoskiego designu, znanego z elegancji, dbałości o szczegóły i użycia wysokiej jakości materiałów. Na elewacji zastosowano okładziny HPL w jasnych naturalnych kolorach w połączeniu z odcieniami jasnego drewna. Lekkości nadają szklane balustrady balkonów oraz duże przeszklenia okien w ramach o ciekawym odcieniu taupe.
Apartament znajduje się w inwestycji Mio Pino, w której znajduje się w sprzedaży jeszcze 17 podobnych nowych apartamentów.
Kup to mieszkanie na kredyt
Symulacja miesięcznej raty kredytowej
Wkład własny
Większość banków wymaga wkładu własnego na poziomie 20% ceny nieruchomości
%
zł
Okres kredytowania
Rata miesięczna jest zależna od długości okresu kredytowania
Kalkulator wylicza orientacyjną ratę Twojego kredytu przy założeniu, że średnie oprocentowanie kredytu wraz z WIBOR i marżą banku wynosi 6.5% (oprocentowanie stałe w okresie 5 lat).
Twoja miesięczna rata kredytu
2 589 zł
Kalkulacja raty kredytowej została oparta o estymowaną cenę nieruchomości (512 000 zł) na podstawie ostatnich danych od dewelopera i naszych danych analitycznych
MIO PINO Sp. z o.o.
Strona internetowa inwestycjiAdres biura sprzedaży:
Szczecin ul. T.A.Wendy 10CGodziny otwarcia biura sprzedaży:
- Poniedziałek: 08:00 - 16:00
- Wtorek: 08:00 - 16:00
- Środa: 08:00 - 16:00
- Czwartek: 08:00 - 16:00
- Piątek: 08:00 - 16:00





