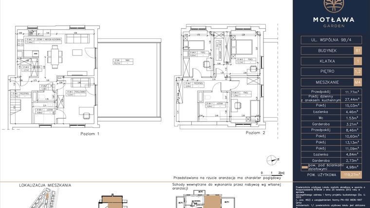
Mieszkanie na sprzedaż 5 pokoi o powierzchni 119,27 m² numer B1.M4
Inwestycja:
Motława GardenDeweloper:
Marvipol Development
Inwestycja:
Motława GardenDeweloper:
Marvipol DevelopmentGdańsk, Olszynka, ul. Wspólna 3
Gdańsk, Olszynka, ul. Wspólna 3
Termin oddania
Gotowe
Ilość pokoi
5 pokoi
Metraż
119,27 m²
Piętro
1 piętro
Strona świata
wschód, zachód, północ
Powierzchnie dodatkowe
Taras
Kuchnia
otwarta kuchnia
Wysokość pomieszczeń
od 250 do 280 cm wysokości
Ilość poziomów
1 poziom
Oznaczenie oferty
B1.M4

Raport o deweloperze
Poznaj dewelopera bliżej! Pobierz raport, w którym znajdziesz kluczowe informacje o firmie, jej doświadczeniu, nagrodach oraz aktualnych i zrealizowanych inwestycjach.
Budynek i otoczenie
Miejsca postojowe | |
|---|---|
Standard wykończenia | standard deweloperski Ogrzewanie gazowe |
Realizacja inwestycji | rozpoczęcie budowy w 3 kw. 2022 roku, inwestycja została oddana do użytkowania w 2 kw. 2024 roku |
Udogodnienia | plac zabaw, monitoring, internet, TV kablowa, inteligentny dom, własna kotłownia, patio / dziedziniec |
Przyroda | w okolicy inwestycji znajduje się park, rzeka |
Charakterystyka energetyczna nieruchomości |
|
Rezerwacja i finanse
Rodzaj własności | Odrębna własność z własnością gruntu |
|---|---|
Wysokość czynszu | informacja u dewelopera |
Warunki rezerwacji | Informacja u dewelopera |
Zabezpieczenie środków | Informacja u dewelopera |
Zdjęcia z budowy
Zobacz na jakim etapie budowy jest ta inwestycja
Lokalizacja inwestycji
Stacja kolejowa - Gdańsk Śródmieście - 1616 m
Przystanek Tramwajowy - 1186 m
Przystanek Autobusowy - 108 m
Dojazd do centrum: pokaż
W pobliżu 1 km od tej inwestycji znajdują się:
3 kawiarnie i restauracje, 13 sklepów, 11 obiektów sportowych, 3 placówki medyczne, 5 placówek edukacyjnych, 12 placów zabaw
Przeczytaj więcej o lokalizacji
Motława Garden położona jest w cichej, zielonej dzielnicy Olszynka, zapewniającej odpoczynek od wielkomiejskiego zgiełku, a jednocześnie doskonały dostęp do Śródmieścia i Nowego Miasta. W pobliżu znajdują się przystanki autobusowe, niedaleko jest także stacja SKM. O atrakcyjności tego miejsca świadczy również rozbudowana infrastruktura lokalna: szkoły, przedszkola, restauracje oraz większe i mniejsze sklepy. Olszynka to spokojna dzielnica Gdańska, z przewagą zabudowy jednorodzinnej. Położona jest w południowo-wschodniej części miasta, skąd blisko do Wyspy Spichrzów. Od północy graniczy ze Śródmieściem, dzięki czemu w okolicy nie brakuje restauracji, kawiarni i wielu innych atrakcji.
Gdańsk to miasto położone na północy Polski w bezpośrednim sąsiedztwie Morza Bałtyckiego (Zatoka Gdańska). Ok 100 m. dzieli granice Gdańska od Pruszcza Gdańskiego, 30 km od Elbląga, 7 km od Sopotu i 12 km od Gdyni. Panorama Gdańska to zarówno przedwojenne zabytki jak i kamienice odbudowane po wojnie, a także bloki i domki jednorodzinne. Gdańsk składa się z kilkudziesięciu dzielnic, w tym Aniołki, Oliwa, Przymorze Wielkie, Strzyża, Śródmieście, Ujeścisko-Łostowice i Wyspa Sobieszewska. To ważny ośrodek naukowy z Uniwersytetem Gdańskim, Politechniką Gdańską czy Gdańskim Uniwersytetem Medycznym na czele. Za kulturę odpowiada m.in. Filharmonia Bałtycka, Opera Bałtycka, Teatr Wybrzeże, Gdański Teatr Szekspirowski oraz Muzeum Narodowe. Ofertę kulturalną uzupełniają zabytki od średniowiecznych po te najnowsze (Stocznia Gdańska).
Opis oferty
Nowe 5-pokojowe mieszkanie na sprzedaż o powierzchni 119,27 m² znajduje się w nowo budowanej inwestycji deweloperskiej Motława Garden na Olszynce, ul. Wspólna 3 (2.1 km od centrum Gdańska).
Inwestycja jest realizowana przez Marvipol Development.
Cała inwestycja składa się z 21 budynków, w których łącznie znajdują się 72 nowe mieszkania.
Na sprzedaż pozostaje 18 ofert o powierzchni od 117 do 139 m².
W budynkach są 2 kondygnacje naziemne. Budynek nie posiada kondygnacji podziemnych.
Inwestycja Motława Garden została wybudowana i oddana do użytkowania w 2 kw. 2024 roku.
Nowe mieszkanie o oznaczeniu B1.M4 znajduje się na 1 piętrze i jest 1-poziomowe. Pomieszczenia mają od 250 do 280 centymetrów wysokości. W mieszkaniu znajduje się 5 pokoi.
Okna w mieszkaniu wychodzą na wschód, zachód, północ.
Północna ekspozycja to idealny wybór dla osób ceniących przytulne i klimatyczne wnętrza. Delikatne, rozproszone światło sprzyja harmonii i stwarza doskonałe warunki do relaksu lub pracy. Okna na północ zapewnią równomierne oświetlenie przez cały dzień.
Wschodnia orientacja zapewnia dostęp do łagodnego porannego światła, idealnego dla rozpoczęcia dnia pełnego energii. Wnętrza pozostają jasne, ale nieprzegrzane, co sprzyja utrzymaniu komfortowej temperatury. Przebywanie w pomieszczeniu z oknami na wschód inspiruje do działania i pozytywnie wpływa na poranny rytuał.
Zachodnia ekspozycja to gwarancja intensywnego popołudniowego światła, które nadaje wnętrzom przytulności i ciepła. Idealne dla miłośników słonecznych wieczorów, którzy pragną cieszyć się pięknymi zachodami słońca we własnym domu. Zachodnie światło podkreśla kolory i faktury w aranżacji wnętrz, tworząc atmosferę sprzyjającą relaksowi po długim dniu.
Dla przyszłych mieszkańców Motława Garden deweloper przewidział miejsca postojowe naziemne.
Dzięki temu przyszli właściciele nie będą musieli poszukiwać wolnej przestrzeni parkingowej.
Opis Inwestycji
Pow. dodatkowe
Motława Garden to kameralny projekt zlokalizowany w dzielnicy Olszynka, zaledwie 1,6 km od Śródmieścia Gdańska. Położony w otoczeniu zieleni i jednorodzinnej zabudowy, projekt oparty jest na koncepcji miasta-ogrodu, zapewniając dostęp do infrastruktury miejskiej, jednocześnie oferując spokój i prywatność.
Nowoczesna, ponadczasowa architektura osiedla, inspirowana gdańską zabudową, łączy prostotę brył z dużymi przeszkleniami i eleganckimi, biało-grafitowymi elewacjami, które subtelnie wyróżniają inwestycję na tle okolicy.
Osiedle składa się z 16 willi 4 mieszkaniowych oraz 6 willi 2 mieszkaniowych zatopionych w zieleni przydomowych ogródków i tarasów. Łącznie 21 domów z zabudową do 2 pięter tworzy przyjazną enklawę. W ofercie dostępna są mieszkania 5 -pokojowe o powierzchni od 117 do 139 m2. Każde z mieszkań w standardzie zostało wyposażone w system Smart Home, który pozwala na optymalizację i kontrolę zużycia mediów.
W inwestycji znajduje się także 36 miejsc postojowych w garażach oraz 60 miejsc postojowych naziemnych. Osiedle zostało wzbogacone o plac zabaw, strefę rekreacyjną, ogród deszczowy, stojaki na rowery oraz stację do ich naprawy.
Ochrona w Motława Garden to nowoczesne podejście do bezpieczeństwa, które łączy zaawansowane technologie z komfortem codziennego życia. Osiedle objęte jest całodobowym monitoringiem oraz systemem BMS, który kontroluje infrastrukturę osiedla. Ruch pieszy i kołowy jest monitorowany, a system skanowania tablic rejestracyjnych zapewnia precyzyjny dostęp do osiedla. Każdy domofon wyposażony w przycisk SOS umożliwia szybkie powiadomienie ochrony lub zdalnego portiera w razie potrzeby. Dodatkowo, system domofonowy zintegrowany z aplikacją Appartme zapewnia mieszkańcom wygodny dostęp do funkcji bezpieczeństwa, podnosząc komfort codziennego życia.
Inwestycja jest gotowa do zamieszkania. Zapraszamy do zapoznania się z naszą ofertą i obejrzenia dostępnych mieszkań.
Mieszkanie znajduje się w inwestycji Motława Garden, w której znajduje się w sprzedaży jeszcze 18 podobnych nowych mieszkań.
Marvipol Development
Strona internetowa inwestycjiAdres biura sprzedaży:
Gdańsk, Śródmieście ul. Toruńska 20Godziny otwarcia biura sprzedaży:
- Poniedziałek: 09:00 - 18:00
- Wtorek: 09:00 - 18:00
- Środa: 09:00 - 18:00
- Czwartek: 09:00 - 18:00
- Piątek: 09:00 - 18:00
- Sobota: 10:00 - 14:00
Artykuły powiązane:
:format(jpg)/articles/gallery/image/6677/45c84a.jpg)
Apartamenty pokazowe, czyli jak zwizualizować wyobrażenia
Jak powinien wyglądać apartament pokazowy? Zobacz propozycję dewelopera Marvipol. Kupując mieszkanie, nie lada wyzwaniem okazuje się zagospodarowanie w nim przestrzeni, tak aby była funkcjonalna i estetyczna. Problem polega na tym, że na etapie decydowania się na zakup mieszkania z rynku...
17 sierpnia 2016
Publicon PR





