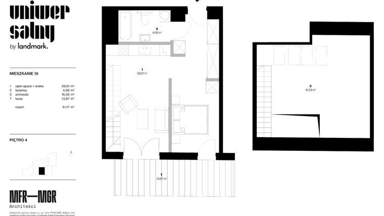
Mieszkanie na sprzedaż 3 pokoje o powierzchni 61,17 m² numer 19
Inwestycja:
Dom UniwersalnyDeweloper:
Landmark Sp. z o.o.
Inwestycja:
Dom UniwersalnyDeweloper:
Landmark Sp. z o.o.Otwock, ul. Andriollego 10
Otwock, ul. Andriollego 10
Termin oddania
Gotowe
Ilość pokoi
3 pokoje
Metraż
61,17 m²
Piętro
4 piętro
Powierzchnie dodatkowe
Balkon
Wysokość pomieszczeń
od 260 do 280 cm wysokości
Ilość poziomów
2 poziomy
Oznaczenie oferty
19

Raport o deweloperze
Poznaj dewelopera bliżej! Pobierz raport, w którym znajdziesz kluczowe informacje o firmie, jej doświadczeniu, nagrodach oraz aktualnych i zrealizowanych inwestycjach.
Budynek i otoczenie
Miejsca postojowe | |
|---|---|
Komórki lokatorskie | dostępne |
Standard wykończenia | standard deweloperski |
Realizacja inwestycji | rozpoczęcie budowy w 1 kw. 2024 roku, inwestycja została oddana do użytkowania w 1 kw. 2026 roku |
Udogodnienia | teren ogrodzony, usługi w budynku, winda |
Przyroda | informacja u dewelopera |
Charakterystyka energetyczna nieruchomości | informacja u dewelopera |
Rezerwacja i finanse
Rodzaj własności | Odrębna własność z własnością gruntu |
|---|---|
Wysokość czynszu | informacja u dewelopera |
Warunki rezerwacji | Informacja u dewelopera |
Zabezpieczenie środków | Otwarty mieszkaniowy rachunek powierniczy |
Zdjęcia z budowy
Zobacz na jakim etapie budowy jest ta inwestycja
Lokalizacja inwestycji
Stacja kolejowa - Otwock - 203 m
Przystanek Autobusowy - 71 m
Dojazd do centrum Warszawy: pokaż
W pobliżu 1 km od tej inwestycji znajdują się:
36 kawiarni i restauracji, 63 sklepy, 31 obiektów sportowych, 26 placówek medycznych, 22 placówki edukacyjne, 31 placów zabaw
Przeczytaj więcej o lokalizacji
Otwock leży w odległości 25 km od Warszawy i zajmuje terytorium o powierzchni 47 km2. Prawie połowę obszaru stanowią tereny leśne, m.in. lasy Mazowieckiego Parku Krajobrazowego, toteż Otwock przypomina miasto-park i jest popularnym miejscem wypoczynkowym oraz uzdrowiskowym. Występuje tutaj niska zabudowa usługowa i mieszkaniowa, a pośród domów jednorodzinnych i willi wyróżniają się obiekty zabytkowe, jak: Willa Sierkowskiego, Uzdrowisko A. Gurewicza, Willa Albinów czy budynki Obserwatorium Magnetyzmu Ziemskiego. Teren miasta przecinają trasy turystyczne, zaś nad rzeką Świder powstało kąpielisko. Ośrodkami handlu są: Galeria Górna oraz KOT Center.
Opis oferty
Nowe 3-pokojowe mieszkanie na sprzedaż o powierzchni 61,17 m² znajduje się w nowo budowanej inwestycji deweloperskiej Dom Uniwersalny w Otwocku, ul. Andriollego 10 (4.4 km od Warszawy).
Inwestycja jest realizowana przez Landmark Sp. z o.o.
Cała inwestycja składa się z 1 budynku, w którym łącznie znajdują się 23 nowe mieszkania.
Na sprzedaż pozostaje 12 ofert o powierzchni od 27 do 83 m².
W budynku jest 5 kondygnacji naziemnych oraz 1 kondygnacja podziemna.
Inwestycja Dom Uniwersalny została wybudowana i oddana do użytkowania w 1 kw. 2026 roku.
Nowe mieszkanie o oznaczeniu 19 znajduje się na 4 piętrze i jest 2-poziomowe. Pomieszczenia mają od 260 do 280 centymetrów wysokości. W mieszkaniu znajdują się 3 pokoje.
Dla przyszłych mieszkańców Dom Uniwersalny deweloper przewidział miejsca postojowe podziemne.
Dzięki temu przyszli właściciele nie będą musieli poszukiwać wolnej przestrzeni parkingowej. Dodatkowo, miejsce postojowe w garażu podziemnym zabezpiecza przed niekorzystnymi warunkami atmosferycznymi.
Opis Inwestycji
Tereny zielone
Pow. dodatkowe
Dom Uniwersalny zlokalizowany jest przy ul. Andriollego 10 w ścisłym centrum Otwocka tuż obok dworca kolejowego. W tym miejscu działał w czasach PRLu kultowy Bar Uniwersalny, prowadzony przez Antoniego Jarząbka. Dzięki swojej ikonicznej formie oraz eksponowanej lokalizacji, budynek ma szanse stać się jedną z wizytówek miasta.
Bryła budynku podzielona została na dwie części o zróżnicowanym charakterze elewacyjnym oraz wysokościowym. Składają się na nią istniejący, dwukondygnacyjny budynek drewniany, oraz zupełnie nowa bryła o znacznie większych gabarytach. Jej prosta i delikatna forma w sposób przewrotny inspirowana jest stylem świdermajer, którego przedstawicielem jest niższy budynek. Przestronne balkony zostały zaprojektowane jako ażurowe werandy, doskonale nadające się do codziennego wypoczynku. Pionowe szprosy elewacyjne, z których składa się fasada, projektowane są jako elementy drewniane, malowane na kolor biały, który będzie dominującą barwą elewacji. Także malowana proszkowo w tym samym kolorze stal, z której wykonane będą zewnętrzne balustrady, korespondować będzie z ażurowym motywem fasady. Całość będzie ascetyczna w formie i kolorze dzięki czemu zyska ponadczasowy charakter.
W parterze zlokalizowane zostały lokale usługowe a pozostałe kondygnacje nadziemne pełnić będą funkcję mieszkalną. W budynku będzie mieścił się parking podziemny. Na tyłach obiektu znajdzie się zazieleniony dziedziniec dostępny tylko dla mieszkańców. Swoim charakterem nawiązywać będzie do architektury obiektu.
Mieszkanie znajduje się w inwestycji Dom Uniwersalny, w której znajduje się w sprzedaży jeszcze 8 podobnych nowych mieszkań.
Landmark Sp. z o.o.
Strona internetowa inwestycjiAdres biura sprzedaży:
ul. Sikorskiego 127b, 05-420 Józefów




