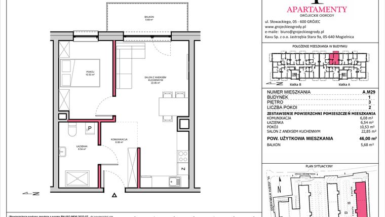
Mieszkanie na sprzedaż 2 pokoje o powierzchni 46 m² numer A.29
Inwestycja:
Apartamenty Grójeckie OgrodyDeweloper:
KAVU Sp. z o.o.
Inwestycja:
Apartamenty Grójeckie OgrodyDeweloper:
KAVU Sp. z o.o.Grójec, ul. Słowackiego 97
Grójec, ul. Słowackiego 97
Termin oddania
Gotowe
Ilość pokoi
2 pokoje
Metraż
46 m²
Piętro
3 piętro
Kuchnia
otwarta kuchnia
Wysokość pomieszczeń
od 260 do 280 cm wysokości
Ilość poziomów
1 poziom
Oznaczenie oferty
A.29

Raport o deweloperze
Poznaj dewelopera bliżej! Pobierz raport, w którym znajdziesz kluczowe informacje o firmie, jej doświadczeniu, nagrodach oraz aktualnych i zrealizowanych inwestycjach.
Budynek i otoczenie
Miejsca postojowe | |
|---|---|
Komórki lokatorskie | dostępne |
Standard wykończenia | standard deweloperski Ogrzewanie kotłownia gazowa |
Realizacja inwestycji | rozpoczęcie budowy w 2 kw. 2024 roku, inwestycja została oddana do użytkowania w 4 kw. 2025 roku |
Udogodnienia | plac zabaw, monitoring, teren ogrodzony, winda, instalacja fotowoltaiczna, pompa ciepła |
Przyroda | informacja u dewelopera |
Charakterystyka energetyczna nieruchomości | informacja u dewelopera |
Rezerwacja i finanse
Rodzaj własności | Odrębna własność z własnością gruntu |
|---|---|
Wysokość czynszu | informacja u dewelopera |
Warunki rezerwacji | 1% wartości transakcji, umowa rezerwacyjna |
Zabezpieczenie środków | Otwarty mieszkaniowy rachunek powierniczy |
Zdjęcia z budowy
Zobacz na jakim etapie budowy jest ta inwestycja
Lokalizacja inwestycji
Przystanek Autobusowy - 103 m
Dojazd do centrum Warszawy: pokaż
W pobliżu 1 km od tej inwestycji znajdują się:
2 kawiarnie i restauracje, 8 sklepów, 5 obiektów sportowych, 3 placówki medyczne, 14 placówek edukacyjnych, 4 place zabaw
Przeczytaj więcej o lokalizacji
Województwo mazowieckie jest największym województwem w Polsce, które zamieszkuje największa liczba ludności w odniesieniu do innych regionów. Jego obszar wynosi 35 588,47 kilometrów kwadratowych. Głównym miastem województwa jest stolica Polski - Warszawa. Większą część regionu zajmuje Niż Środkowoeuropejski. Ukształtowanie powierzchni posiada w w znacznej mierze charakter nizinny, a jego najwyższy punkt to wierzchołek Altany, posiadający 408 m. n. p. m.
Opis oferty
Nowe 2-pokojowe mieszkanie na sprzedaż o powierzchni 46 m² znajduje się w nowo budowanej inwestycji deweloperskiej Apartamenty Grójeckie Ogrody w Grójcu, ul. Słowackiego 97 (27.9 km od Warszawy).
Inwestycja jest realizowana przez KAVU Sp. z o.o.
Cała inwestycja składa się z 1 budynku, w którym łącznie znajduje się 79 nowych mieszkań.
Na sprzedaż pozostaje 35 ofert o powierzchni od 43 do 73 m².
W budynku jest 5 kondygnacji naziemnych oraz 1 kondygnacja podziemna.
Inwestycja Apartamenty Grójeckie Ogrody została wybudowana i oddana do użytkowania w 4 kw. 2025 roku.
Nowe mieszkanie o oznaczeniu A.29 znajduje się na 3 piętrze i jest 1-poziomowe. Pomieszczenia mają od 260 do 280 centymetrów wysokości. W mieszkaniu znajdują się 2 pokoje.
Dla przyszłych mieszkańców Apartamenty Grójeckie Ogrody deweloper przewidział miejsca postojowe podziemne, miejsca postojowe naziemne.
Dzięki temu przyszli właściciele nie będą musieli poszukiwać wolnej przestrzeni parkingowej. Dodatkowo, miejsce postojowe w garażu podziemnym zabezpiecza przed niekorzystnymi warunkami atmosferycznymi.
Opis Inwestycji
Inwestycja zakłada budowę trzech budynków mieszkalnych wielorodzinnych wraz z garażami podziemnymi, parkingami, częścią handlowo-usługową w parterze oraz niezbędną infrastrukturą.
W trzech sześciokondygnacyjnych budynkach Apartamentów Grójeckie Ogrody zaplanowano mieszkania o różnorodnych metrażach, co pozwoli każdemu znaleźć idealną przestrzeń. Na osiedlu powstaną również lokale usługowe, a w podziemnym garażu znajdą się miejsca postojowe oraz komórki lokatorskie. Dodatkowo przewidziano naziemny parking przy budynku. Obecnie realizowany jest pierwszy etap inwestycji, obejmujący Blok nr 1.
W budynku zaprojektowano 79 komfortowych lokali mieszkalnych oraz miejsca parkingowe w podziemnym garażu, co zapewnia wygodę i bezpieczeństwo dla mieszkańców. Ofertę mieszkaniową tworzą 58 funkcjonalnych mieszkań dwupokojowych z aneksem kuchennym, 21 przestronnych mieszkań trzypokojowych, również z aneksem, idealnych dla większych rodzin.
Dla maksymalnego komfortu mieszkańców, klatki schodowe zostały wyposażone w nowoczesne windy osobowe, przystosowane do przewozu osób niepełnosprawnych oraz chorych na noszach. To rozwiązanie zapewnia pełną dostępność budynku, podnosząc standard życia wszystkich mieszkańców, niezależnie od ich potrzeb.
Mieszkanie znajduje się w inwestycji Apartamenty Grójeckie Ogrody, w której znajduje się w sprzedaży jeszcze 26 podobnych nowych mieszkań.
KAVU Sp. z o.o.
Strona internetowa inwestycjiAdres biura sprzedaży:
ul. Słowackiego 97, 05-600 GrójecGodziny otwarcia biura sprzedaży:
- Poniedziałek: 08:00 - 17:00
- Wtorek: 08:00 - 17:00
- Środa: 08:00 - 17:00
- Czwartek: 08:00 - 17:00
- Piątek: 08:00 - 17:00





