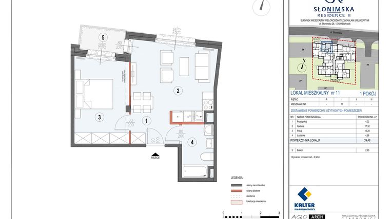
Mieszkanie na sprzedaż 2 pokoje o powierzchni 39,48 m² numer M11
Inwestycja:
Słonimska Residence IIDeweloper:
Kalter Nieruchomości Sp. z o.o.
Inwestycja:
Słonimska Residence IIDeweloper:
Kalter Nieruchomości Sp. z o.o.Białystok, Bojary, ul. Słonimska 26
Białystok, Bojary, ul. Słonimska 26
Termin oddania
3 kw. 2027
Ilość pokoi
2 pokoje
Metraż
39,48 m²
Piętro
1 piętro
Strona świata
zachód, północ
Powierzchnie dodatkowe
Balkon
Kuchnia
otwarta kuchnia
Wysokość pomieszczeń
od 260 do 280 cm wysokości
Ilość poziomów
1 poziom
Oznaczenie oferty
M11

Raport o deweloperze
Poznaj dewelopera bliżej! Pobierz raport, w którym znajdziesz kluczowe informacje o firmie, jej doświadczeniu, nagrodach oraz aktualnych i zrealizowanych inwestycjach.
Budynek i otoczenie
Miejsca postojowe | |
|---|---|
Komórki lokatorskie | dostępne |
Standard wykończenia | standard deweloperski |
Realizacja inwestycji | rozpoczęcie budowy w 2 kw. 2022 roku, planowane oddanie do użytkowania w 3 kw. 2027 roku |
Udogodnienia | usługi w budynku, winda, monitoring, plac zabaw, teren ogrodzony |
Przyroda | informacja u dewelopera |
Charakterystyka energetyczna nieruchomości | informacja u dewelopera |
Rezerwacja i finanse
Rodzaj własności | Odrębna własność z własnością gruntu |
|---|---|
Wysokość czynszu | informacja u dewelopera |
Warunki rezerwacji | Informacja u dewelopera |
Zabezpieczenie środków | Informacja u dewelopera |
Zdjęcia z budowy
Zobacz na jakim etapie budowy jest ta inwestycja
Lokalizacja inwestycji
Stacja kolejowa - Białystok Fabryczny - 654 m
Przystanek Autobusowy - 107 m
Dojazd do centrum: pokaż
W pobliżu 1 km od tej inwestycji znajdują się:
47 kawiarni i restauracji, 75 sklepów, 50 obiektów sportowych, 35 placówek medycznych, 80 placówek edukacyjnych, 77 placów zabaw
Przeczytaj więcej o lokalizacji
Białystok to miasto położone w północno-wschodniej Polsce nad rzeką Białą. Jest to stolica województwa podlaskiego. Białystok jest perłą Podlasia, w której znajdują się liczne zabytki, takie jak Ratusz Miejski, zbrojownia hetmańska czy katedra. Zabudowa Białegostoku jest charakterystyczna dla polskich miast - przeważają tu osiedla mieszkaniowe, a na przedmieściach zabudowa jednorodzinna. W mieście znajduję się wiele parków miejskich. Białystok to także największy węzeł komunikacyjny północno-wschodniej Polski. Przez miasto przebiega europejska linia kolejowa Warszawa-Tallin. Miasto posiada bezpośrednie połączenia kolejowe z Warszawą, Olsztynem, Gdańskiem i Poznaniem. Rozwinięty transport autobusowy to zasługa głównie PKS Białystok, które obsługuje zarówno linie lokalne jak i międzymiastowe. Przez miasto przebiega również droga ekspresowa E67, która krzyżuję się z drogą krajową nr 19.
Opis oferty
Nowe 2-pokojowe mieszkanie na sprzedaż o powierzchni 39,48 m² znajduje się w nowo budowanej inwestycji deweloperskiej Słonimska Residence II na Bojarach, ul. Słonimska 26 (0.8 km od centrum Białegostoku).
Inwestycja jest realizowana przez Kalter Nieruchomości Sp. z o.o.
Cała inwestycja składa się z 1 budynku, w którym łącznie znajduje się 37 nowych mieszkań.
Na sprzedaż pozostaje 27 ofert o powierzchni od 30 do 86 m².
W budynku są 4 kondygnacje naziemne oraz 1 kondygnacja podziemna.
Inwestycja Słonimska Residence II jest w trakcie budowy z planowanym na 3 kw. 2027 roku terminem oddania do użytkowania.
Nowe mieszkanie o oznaczeniu M11 znajduje się na 1 piętrze i jest 1-poziomowe. Pomieszczenia mają od 260 do 280 centymetrów wysokości. W mieszkaniu znajdują się 2 pokoje.
Okna w mieszkaniu wychodzą na zachód, północ.
Północna ekspozycja to idealny wybór dla osób ceniących przytulne i klimatyczne wnętrza. Delikatne, rozproszone światło sprzyja harmonii i stwarza doskonałe warunki do relaksu lub pracy. Okna na północ zapewnią równomierne oświetlenie przez cały dzień.
Zachodnia ekspozycja to gwarancja intensywnego popołudniowego światła, które nadaje wnętrzom przytulności i ciepła. Idealne dla miłośników słonecznych wieczorów, którzy pragną cieszyć się pięknymi zachodami słońca we własnym domu. Zachodnie światło podkreśla kolory i faktury w aranżacji wnętrz, tworząc atmosferę sprzyjającą relaksowi po długim dniu.
Dla przyszłych mieszkańców Słonimska Residence II deweloper przewidział miejsca postojowe podziemne.
Dzięki temu przyszli właściciele nie będą musieli poszukiwać wolnej przestrzeni parkingowej. Dodatkowo, miejsce postojowe w garażu podziemnym zabezpiecza przed niekorzystnymi warunkami atmosferycznymi.
Opis Inwestycji
Tereny zielone
Pow. dodatkowe
„Słonimska Residence II” to planowany drugi etap i za razem najnowsza nieruchomość mieszkaniowa dewelopera Kalter Nieruchomości usytuowana w centrum miasta Białystok. Nowoczesna architektura budynku łączy klasyczne formy z aktualnymi i wyrazistymi trendami architektonicznymi. Inwestycja została zaprojektowana tak, aby wszystkie znajdujące się w niej nowe apartamenty były jasne, przestronne i doskonale oświetlone. Wszystko to za sprawą dogodnego usytuowania budynku – względem wszystkich czterech stron świata. Dodatkowym atutem inwestycji jest jej kameralna niska zabudowa, która daje komfort nieporównywalny z wysoką zabudową miejską. Dzięki takim rozwiązaniom mieszkańcy mają znacznie więcej możliwości na nawiązywanie pozytywnych relacji sąsiedzkich.
Funkcjonalność i styl
W naszej nowej inwestycji zaplanowaliśmy aż 37 funkcjonalnych lokali mieszkalnych o metrażach od 28 do 86 m². Każde z mieszkań będzie w pełni przystosowane do wymogów i oczekiwań nawet najbardziej wymagających mieszkańców. W budynku przewidziano wiele udogodnień, z których jedną z najbardziej interesującyh, ma być duży i zaaranżowany zielenią taras widokowy na dachu budynku.
Kwintesencją nowoczesnego budownictwa w „Słonimska Residence”, mają być duże przestronne okna oraz przepiękne lukarny i okna połaciowe, dzięki którym inwestycja wpisuje się w najwyższe standardy mieszkaniowe dostępne na rynku nowych mieszkań w Białymstoku.
Komfort i przestrzeń
W każdym nowym mieszkaniu w Białymstoku przewidzieliśmy przestronne oświetlone balkony oraz loggie. Natomiast mieszkania znajdujące się na parterze mają mieć własne, spokojne ogródki, które pozwolą mieszkańcom cieszyć się urokami domowego życia w centrum miasta. Co więcej, ogródki mają być osłonięte budynkiem od strony ulicy, co dodatkowo podniesie komfort i prywatność mieszkańców i pozwoli im cieszyć się z kameralnego klimatu w samym centrum metropolii Białostockiej.
Strefy relaksu
Na terenie inwestycji zaplanowaliśmy również dwie strefy rekreacyjne oraz komórki lokatorskie, a także przestronny podziemny garaż z indywidualnymi miejscami parkingowymi dopasowanymi do potrzeb mieszkańców i ich pojazdów. Inwestycja zostanie również wyposażona w pięknie zaaranżowaną zieleń oraz małą architekturę. Bezpieczeństwo nowych mieszkań w Białymstoku ma zapewniać nowoczesny system monitoringu wokół budynku oraz bezawaryjne wideodomofony – w konsekwencji wszystkie osoby nieupoważnione nie będą miały wstępu do budynku, a co za tym idzie, również do ogródków mieszczących się na terenie inwestycji.
Bezpieczeństwo
Nieruchomość zostanie dodatkowo zabezpieczona solidnym ogrodzeniem od strony sąsiedniej zabudowy, dzięki czemu mieszkańcy będą mogli zaaranżować je w sposób indywidualny z naciskiem na prywatność.
Na komfort mieszkańców pozytywnie wpłyną również ciekawie zaaranżowane przestrzenie wspólne wewnątrz budynku, a także przestronne korytarze i klatka schodowa.
Mieszkanie znajduje się w inwestycji Słonimska Residence II, w której znajduje się w sprzedaży jeszcze 9 podobnych nowych mieszkań.
Kalter Nieruchomości Sp. z o.o.
Strona internetowa inwestycjiAdres biura sprzedaży:
ul. Augustowska 8, 15-218 Białystok




