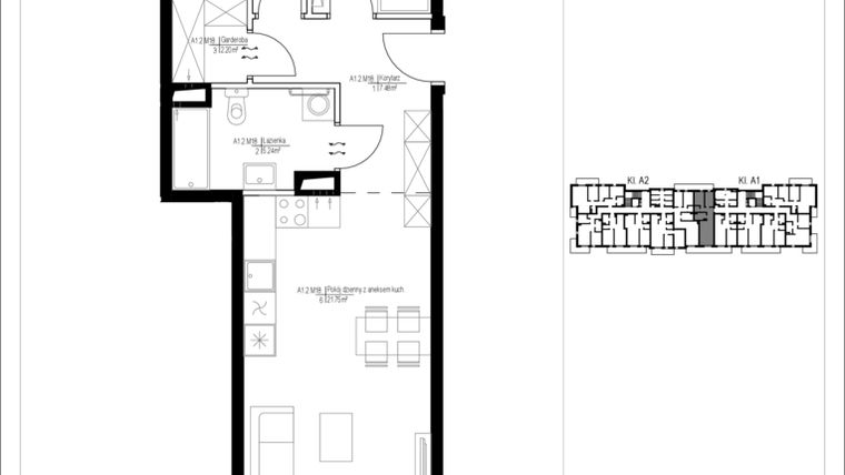
Mieszkanie na sprzedaż 3 pokoje o powierzchni 54,04 m² numer 34A.18
Inwestycja:
Osiedle Konopnickiej etap IIDeweloper:
Jakon Sp. z o.o.
Inwestycja:
Osiedle Konopnickiej etap IIDeweloper:
Jakon Sp. z o.o.Grodzisk Mazowiecki, ul. M. Konopnickiej 34
Grodzisk Mazowiecki, ul. M. Konopnickiej 34
Termin oddania
3 kw. 2026
Ilość pokoi
3 pokoje
Metraż
54,04 m²
Piętro
2 piętro
Strona świata
wschód, zachód, południe
Kuchnia
otwarta kuchnia
Wysokość pomieszczeń
od 265 do 275 cm wysokości
Ilość poziomów
1 poziom
Oznaczenie oferty
34A.18

Raport o deweloperze
Poznaj dewelopera bliżej! Pobierz raport, w którym znajdziesz kluczowe informacje o firmie, jej doświadczeniu, nagrodach oraz aktualnych i zrealizowanych inwestycjach.
Budynek i otoczenie
Miejsca postojowe | |
|---|---|
Komórki lokatorskie | dostępne (42) |
Standard wykończenia | standard deweloperski Ogrzewanie kotłownia gazowa |
Realizacja inwestycji | rozpoczęcie budowy w 1 kw. 2024 roku, planowane oddanie do użytkowania w 3 kw. 2026 roku |
Udogodnienia | plac zabaw, monitoring, teren ogrodzony, winda, wózkarnia, miejsce do ładowania samochodów elektrycznych |
Przyroda | informacja u dewelopera |
Charakterystyka energetyczna nieruchomości | informacja u dewelopera |
Rezerwacja i finanse
Rodzaj własności | Odrębna własność z własnością gruntu |
|---|---|
Wysokość czynszu | informacja u dewelopera |
Warunki rezerwacji | UMOWA REZERWACYJNA |
Zabezpieczenie środków | Otwarty mieszkaniowy rachunek powierniczy i gwarancję bankową |
Zdjęcia z budowy
Zobacz na jakim etapie budowy jest ta inwestycja
Lokalizacja inwestycji
Stacja kolejowa - Grodzisk Mazowiecki Jordanowice - 677 m
Przystanek Autobusowy - 201 m
Dojazd do centrum Warszawy: pokaż
W pobliżu 1 km od tej inwestycji znajdują się:
27 kawiarni i restauracji, 41 sklepów, 40 obiektów sportowych, 17 placówek medycznych, 33 placówki edukacyjne, 27 placów zabaw
Przeczytaj więcej o lokalizacji
Grodzisk Mazowiecki to miasto położone na Równinie Łowicko-Błońskiej, w województwie mazowieckim, w powiecie grodziskim. W zachodniej części miasta przepływa rzeka Mrowna. Powierzchnia miasta zajmuje 13,19 km i zamieszkuje ją ok. 31 tysięcy mieszkańców. Na terenie miasta znajduje się Centrum Kultury Gminy Grodzisk, Mediateka oraz Studio Tańca. W Grodzisku oraz jego okolicy funkcjonuje kilka klubów sportowych, m.in: Grodziski Klub Żeglarski „Czysty Wiatr”, Grodziski Klub Sportowy „Sparta”, czy klub piłkarski LKS Chlebnia. Grodzisk Mazowiecki otoczony jest licznymi terenami zielonymi, nieopodal znajduje się kilka stawów, parków oraz jezioro Kniaziówka.
Opis oferty
Nowe 3-pokojowe mieszkanie na sprzedaż o powierzchni 54,04 m² znajduje się w nowo budowanej inwestycji deweloperskiej Osiedle Konopnickiej etap II w Grodzisku Mazowieckim, ul. M. Konopnickiej 34 (16.9 km od Warszawy).
Inwestycja jest realizowana przez Jakon Sp. z o.o.
Cała inwestycja składa się z 2 budynków, w których łącznie znajdują się 72 nowe mieszkania.
Na sprzedaż pozostaje 31 ofert o powierzchni od 41 do 69 m².
W budynkach są 3 kondygnacje naziemne oraz 1 kondygnacja podziemna.
Inwestycja Osiedle Konopnickiej etap II jest w trakcie budowy z planowanym na 3 kw. 2026 roku terminem oddania do użytkowania.
Nowe mieszkanie o oznaczeniu 34A.18 znajduje się na 2 piętrze i jest 1-poziomowe. Pomieszczenia mają od 265 do 275 centymetrów wysokości. W mieszkaniu znajdują się 3 pokoje.
Do mieszkania przewidziano możliwość zakupu komórki lokatorskiej, którą można zagospodarować na spiżarnię, warsztat czy składzik.
Okna w mieszkaniu wychodzą na wschód, zachód, południe.
Okna wychodzące na południe gwarantują maksymalną ilość naturalnego światła, co czyni wnętrza jasnymi i ciepłymi. Dodatkowo południowa ekspozycja pomaga obniżyć koszty ogrzewania w zimie. Okna na południe są idealne dla osób pragnących cieszyć się jasnym otoczeniem, które sprzyja dobremu samopoczuciu oraz pozytywnej energii.
Wschodnia orientacja zapewnia dostęp do łagodnego porannego światła, idealnego dla rozpoczęcia dnia pełnego energii. Wnętrza pozostają jasne, ale nieprzegrzane, co sprzyja utrzymaniu komfortowej temperatury. Przebywanie w pomieszczeniu z oknami na wschód inspiruje do działania i pozytywnie wpływa na poranny rytuał.
Zachodnia ekspozycja to gwarancja intensywnego popołudniowego światła, które nadaje wnętrzom przytulności i ciepła. Idealne dla miłośników słonecznych wieczorów, którzy pragną cieszyć się pięknymi zachodami słońca we własnym domu. Zachodnie światło podkreśla kolory i faktury w aranżacji wnętrz, tworząc atmosferę sprzyjającą relaksowi po długim dniu.
Dla przyszłych mieszkańców Osiedle Konopnickiej etap II deweloper przewidział miejsca postojowe podziemne, miejsca postojowe naziemne.
Dzięki temu przyszli właściciele nie będą musieli poszukiwać wolnej przestrzeni parkingowej. Dodatkowo, miejsce postojowe w garażu podziemnym zabezpiecza przed niekorzystnymi warunkami atmosferycznymi.
Opis Inwestycji
Tereny zielone
Osiedle Konopnickiej Grodzisk Mazowiecki – nowe mieszkania blisko Warszawy
Mieszkania deweloperskie na sprzedaż w Grodzisku Mazowieckim to idealne rozwiązanie dla osób chcących cieszyć się bliskością największego polskiego miasta oraz komfortem, który zapewnia życie poza metropolią. Atutami inwestycji są dobra komunikacja, przyjazna okolica oraz szeroki wybór mieszkań i udogodnień.
Inwestycja obejmuje lokale o powierzchni od 40 do 68 m², co pozwala na znalezienie idealnego lokum dostosowanego do indywidualnych potrzeb. Na terenie osiedla znajduje się nowoczesny plac zabaw, gdzie dzieci mogą bezpiecznie spędzać czas.
Mieszkanie znajduje się w inwestycji Osiedle Konopnickiej etap II, w której znajduje się w sprzedaży jeszcze 10 podobnych nowych mieszkań.
Jakon Sp. z o.o.
Strona internetowa inwestycjiAdres biura sprzedaży:
anna.rosenbaum@jakon.plGodziny otwarcia biura sprzedaży:
- Poniedziałek: 08:00 - 16:00
- Wtorek: 08:00 - 16:00
- Środa: 08:00 - 16:00
- Czwartek: 08:00 - 16:00
- Piątek: 08:00 - 16:00
Inwestycje w pobliżu w Grodzisku Mazowieckim
Oferty w Grodzisku Mazowieckim
- Kawalerki Grodzisk Mazowiecki
- Mieszkania 2 pokoje Grodzisk Mazowiecki
- Mieszkania 3 pokoje Grodzisk Mazowiecki
- Mieszkania 4 pokoje Grodzisk Mazowiecki
- Mieszkania 5 pokoi Grodzisk Mazowiecki
- Mieszkania na ostatnim piętrze Grodzisk Mazowiecki
- Mieszkania z ogródkiem Grodzisk Mazowiecki
- Mieszkania na parterze Grodzisk Mazowiecki





