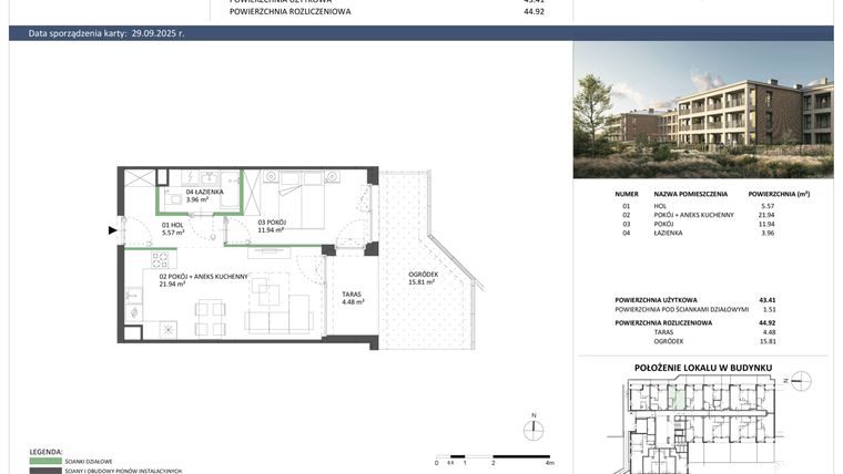
Mieszkanie na sprzedaż 2 pokoje o powierzchni 43,41 m² numer B-03
Inwestycja:
Hillence etap 2Deweloper:
Harmony Group
Inwestycja:
Hillence etap 2Deweloper:
Harmony Groupolsztyński, Jaroty, ul. Biskupa Tomasza Wilczyńskiego
olsztyński, Jaroty, ul. Biskupa Tomasza Wilczyńskiego
Termin oddania
1 kw. 2027
Ilość pokoi
2 pokoje
Metraż
43,41 m²
Piętro
Parter
Powierzchnie dodatkowe
Taras, Ogródek
Wysokość pomieszczeń
od 260 do 280 cm wysokości
Ilość poziomów
1 poziom
Oznaczenie oferty
B-03

Raport o deweloperze
Poznaj dewelopera bliżej! Pobierz raport, w którym znajdziesz kluczowe informacje o firmie, jej doświadczeniu, nagrodach oraz aktualnych i zrealizowanych inwestycjach.
Budynek i otoczenie
Miejsca postojowe | |
|---|---|
Komórki lokatorskie | dostępne: nieobowiązkowy zakup; 2500 zł/m2 |
Standard wykończenia | standard deweloperski Ogrzewanie miejskie |
Realizacja inwestycji | rozpoczęcie budowy w 4 kw. 2025 roku, planowane oddanie do użytkowania w 1 kw. 2027 roku |
Udogodnienia | plac zabaw, winda |
Przyroda | w okolicy inwestycji znajduje się park, las, jezioro |
Charakterystyka energetyczna nieruchomości | informacja u dewelopera |
Rezerwacja i finanse
Rodzaj własności | Odrębna własność z własnością gruntu |
|---|---|
Wysokość czynszu | informacja u dewelopera |
Warunki rezerwacji | Informacja u dewelopera |
Zabezpieczenie środków | Otwarty mieszkaniowy rachunek powierniczy |
Zdjęcia z budowy
Zobacz na jakim etapie budowy jest ta inwestycja
Lokalizacja inwestycji
Stacja kolejowa - Bartąg - 2729 m
Przystanek Tramwajowy - 1196 m
Przystanek Autobusowy - 513 m
Dojazd do centrum Olsztyna: pokaż
W pobliżu 1 km od tej inwestycji znajdują się:
3 kawiarnie i restauracje, 18 sklepów, 12 obiektów sportowych, 6 placówek medycznych, 5 placówek edukacyjnych, 38 placów zabaw
Przeczytaj więcej o lokalizacji
Województwo Warmińsko-Mazurskie to jedno z 16 województw Polski. Zajmuje powierzchnię 24 173,47 kilometrów kwadratowych i jest czwartym pod względem wielkości województwem. Stolicą regionu jest miasto Olsztyn. Większość obszaru zajmuje Pojezierze Mazurskie. Liczne zbiorniki wodne znajdujące się na terenie województwa sprawiły, iż jest ono nazywane "Krainą Tysiąca Jezior". Występują tu także liczne tereny zielone. Aż 30 procent całkowitej powierzchni stanowią lasy.
Opis oferty
Nowe 2-pokojowe mieszkanie na sprzedaż o powierzchni 43,41 m² znajduje się w nowo budowanej inwestycji deweloperskiej Hillence etap 2 w Jarotach, ul. Biskupa Tomasza Wilczyńskiego (0.1 km od Olsztyna).
Inwestycja jest realizowana przez Harmony Group.
Cała inwestycja składa się z 3 budynków, w których łącznie znajduje się 48 nowych mieszkań.
Na sprzedaż pozostaje 10 ofert o powierzchni od 26 do 77 m².
W budynkach są 3 kondygnacje naziemne oraz 1 kondygnacja podziemna.
Inwestycja Hillence etap 2 jest w trakcie budowy z planowanym na 1 kw. 2027 roku terminem oddania do użytkowania.
Nowe mieszkanie o oznaczeniu B-03 znajduje się na parterze i jest 1-poziomowe. Pomieszczenia mają od 260 do 280 centymetrów wysokości. W mieszkaniu znajdują się 2 pokoje.
Dla przyszłych mieszkańców Hillence etap 2 deweloper przewidział miejsca postojowe podziemne.
Dzięki temu przyszli właściciele nie będą musieli poszukiwać wolnej przestrzeni parkingowej. Dodatkowo, miejsce postojowe w garażu podziemnym zabezpiecza przed niekorzystnymi warunkami atmosferycznymi.
Opis Inwestycji
Pow. dodatkowe
Hillence to nasza flagowa inwestycja mieszkaniowa, która powstaje obok Obszaru Chronionego Krajobrazu „Dolina Środkowej Łyny”, w miejscu z ogromnym potencjałem rozwoju i stale rozwijającą się infrastrukturą – przy osiedlach Generałów i Belweder.
Naszym celem jest tworzenie przestrzeni, w których komfort spotyka się z elegancją, a nowoczesny design podkreśla wyjątkowy charakter miejsca.
Hillence to nie tylko inwestycja – to styl życia, w którym jakość, harmonia i dbałość o każdy detal stają się codziennością.
Mieszkanie znajduje się w inwestycji Hillence etap 2, w której znajduje się w sprzedaży jeszcze 8 podobnych nowych mieszkań.





