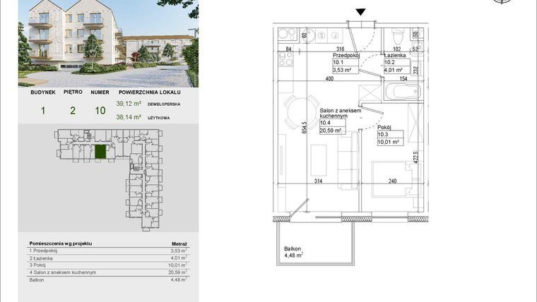
Mieszkanie na sprzedaż 2 pokoje o powierzchni 38,14 m² numer A10
Inwestycja:
Aleja MickiewiczaDeweloper:
Grupa Moderator
Inwestycja:
Aleja MickiewiczaDeweloper:
Grupa Moderatorbydgoski, Osielsko, Al. A. Mickiewicza
bydgoski, Osielsko, Al. A. Mickiewicza
Termin oddania
2 kw. 2027
Ilość pokoi
2 pokoje
Metraż
38,14 m²
Piętro
2 piętro
Powierzchnie dodatkowe
Balkon
Wysokość pomieszczeń
od 260 do 280 cm wysokości
Ilość poziomów
1 poziom
Oznaczenie oferty
A10

Raport o deweloperze
Poznaj dewelopera bliżej! Pobierz raport, w którym znajdziesz kluczowe informacje o firmie, jej doświadczeniu, nagrodach oraz aktualnych i zrealizowanych inwestycjach.
Budynek i otoczenie
Miejsca postojowe | |
|---|---|
Standard wykończenia | standard deweloperski |
Realizacja inwestycji | rozpoczęcie budowy w 4 kw. 2025 roku, planowane oddanie do użytkowania w 2 kw. 2027 roku |
Udogodnienia | informacja u dewelopera |
Przyroda | informacja u dewelopera |
Charakterystyka energetyczna nieruchomości | informacja u dewelopera |
Rezerwacja i finanse
Rodzaj własności | Odrębna własność z własnością gruntu |
|---|---|
Wysokość czynszu | informacja u dewelopera |
Warunki rezerwacji | Informacja u dewelopera |
Zabezpieczenie środków | Informacja u dewelopera |
Zdjęcia z budowy
Zobacz na jakim etapie budowy jest ta inwestycja
Lokalizacja inwestycji
Przystanek Autobusowy - 311 m
Dojazd do centrum Bydgoszczy: pokaż
W pobliżu 1 km od tej inwestycji znajdują się:
1 kawiarnia lub restauracja, 2 sklepy, 2 obiekty sportowe, 4 placówki medyczne, 4 placówki edukacyjne, 7 placów zabaw
Przeczytaj więcej o lokalizacji
Powiat bydgoski leży w środkowo-zachodniej części woj. kujawsko-pomorskiego i składa się z 8 gmin, w tym dwóch miast i 215 wsi. Jego obszar to 1398 km2, a mieszka tu ponad 105 000 osób. W regionie przeważa zabudowa małomiasteczkowa oraz wiejska. Sporą część stanowią zabytki utrzymane w różnych stylach, m.in. gotyckim, barokowym i klasycystycznym. Najstarsze z nich powstały w późnym średniowieczu. Znaczne tereny powiatu zajęte są przez lasy, co sprawia, że jest to jeden z bardziej zielonych regionów województwa. Jest tu niemal 10 rezerwatów przyrody, a największym kompleksem leśnym jest Puszcza Bydgoska. Powiat ma pełną bazę placówek oświatowych. Na jego terenie funkcjonuje ponad 60 szkół różnego szczebla. Działa tu 11 placówek medycznych oraz pogotowie ratunkowe. Jest tu muzeum, 6 ośrodków kultury, JuraPark, a sportowcy mają dostęp m.in. do paru wodnego i stadionu. Przez region biegnie trasa europejska E261, droga ekspresowa, 5 dróg krajowych i 8 dróg wojewódzkich. Działa tu kolej i port lotniczy.
Opis oferty
Nowe 2-pokojowe mieszkanie na sprzedaż o powierzchni 38,14 m² znajduje się w nowo budowanej inwestycji deweloperskiej Aleja Mickiewicza w Osielsku (0.8 km od Bydgoszczy).
Inwestycja jest realizowana przez Grupa Moderator.
Cała inwestycja składa się z 1 budynku, w którym łącznie znajduje się 66 nowych mieszkań.
Na sprzedaż pozostaje 56 ofert o powierzchni od 26 do 83 m².
W budynku są 4 kondygnacje naziemne. Budynek nie posiada kondygnacji podziemnych.
Inwestycja Aleja Mickiewicza jest w trakcie budowy z planowanym na 2 kw. 2027 roku terminem oddania do użytkowania.
Nowe mieszkanie o oznaczeniu A10 znajduje się na 2 piętrze i jest 1-poziomowe. Pomieszczenia mają od 260 do 280 centymetrów wysokości. W mieszkaniu znajdują się 2 pokoje.
Dla przyszłych mieszkańców Aleja Mickiewicza deweloper przewidział miejsca postojowe naziemne.
Dzięki temu przyszli właściciele nie będą musieli poszukiwać wolnej przestrzeni parkingowej.
Opis Inwestycji
Pow. dodatkowe
W pierwszym etapie oddajemy kameralny, trzypiętrowy budynek, w którym znajdzie się 66 mieszkań – od ustawnych kawalerek, idealnych na start lub pod pewną inwestycję, po przestronne, 4-pokojowe lokale dla rodziny. Stawiamy na nowoczesną, funkcjonalną architekturę i inteligentne rozwiązania.
Dla pełnej wygody mieszkańców, na poziomie 0 zaprojektowaliśmy halę garażową. To nie tylko mury. To nowa energia i inteligentny wybór. Projekt został zaplanowany etapowo, a w przyszłości dopełni go drugi budynek, tworząc spójną i kompletną całość.
"Inteligentny wybór" to dla nas także przemyślana struktura metraży. Świadomie odpowiadamy na potrzeby rynku, oferując zarówno poszukiwane mieszkania inwestycyjne, jak i komfortowe mieszkania dla rodzin. Ta elastyczność sprawia, że Aleja Mickiewicza to bezpieczna decyzja – niezależnie od tego, czy kupujesz swoje pierwsze „M”, czy dywersyfikujesz portfel. Kolejny etap inwestycji tylko potwierdzi wartość tej lokalizacji, budując spójne, kompletne i tętniące życiem osiedle.
Mieszkanie znajduje się w inwestycji Aleja Mickiewicza, w której znajduje się w sprzedaży jeszcze 30 podobnych nowych mieszkań.





