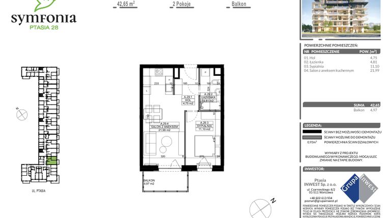
Mieszkanie na sprzedaż 2 pokoje o powierzchni 42,53 m² numer 28/31
Inwestycja:
Symfonia Ptasia 28Deweloper:
Grupa Inwest
Inwestycja:
Symfonia Ptasia 28Deweloper:
Grupa InwestPoznań, Grunwald, Ławica, ul. Ptasia 28
Poznań, Grunwald, Ławica, ul. Ptasia 28
Promocje
Promocja
Promocje!
Koszt aktu przeniesienia własności - GRATIS! Drugie miejsce postojowe w hali garażowej w cenie 50% pierwszego miejsca!
Termin oddania
Gotowe
Ilość pokoi
2 pokoje
Metraż
42,53 m²
Piętro
4 piętro
Powierzchnie dodatkowe
Balkon
Kuchnia
otwarta kuchnia
Wysokość pomieszczeń
260 cm wysokości
Ilość poziomów
1 poziom
Oznaczenie oferty
28/31

Raport o deweloperze
Poznaj dewelopera bliżej! Pobierz raport, w którym znajdziesz kluczowe informacje o firmie, jej doświadczeniu, nagrodach oraz aktualnych i zrealizowanych inwestycjach.
Budynek i otoczenie
Miejsca postojowe | |
|---|---|
Komórki lokatorskie | dostępne: można opcjonalnie dokupić komórkę lokatorską (powierzchnia 3,5-11,5 m2):
• 6 000 zł / m2 w hali garażowej
• 7 000 zł / m2 na piętrze (klatka A) |
Standard wykończenia | standard deweloperski Wybrane lokale w standardzie premium: 1 moduł klimatyzacji salon, ogrzewanie podłogowe, tylko drabinka w łazience, szpachlowanie malowanie na gotowo na biało, wideofony, płytki na balkonie, pakiet SMART Ogrzewanie miejskie |
Realizacja inwestycji | rozpoczęcie budowy w 4 kw. 2023 roku, inwestycja została oddana do użytkowania w 4 kw. 2025 roku |
Udogodnienia | usługi w budynku, winda |
Przyroda | w okolicy inwestycji znajduje się las |
Charakterystyka energetyczna nieruchomości |
|
Rezerwacja i finanse
Rodzaj własności | Odrębna własność z własnością gruntu |
|---|---|
Wysokość czynszu | informacja u dewelopera |
Warunki rezerwacji | 1% od wartości umowy |
Zabezpieczenie środków | Otwarty mieszkaniowy rachunek powierniczy |
Zdjęcia z budowy
Zobacz na jakim etapie budowy jest ta inwestycja
Lokalizacja inwestycji
Stacja kolejowa - Poznań Górczyn - 2963 m
Przystanek Tramwajowy - 855 m
Przystanek Autobusowy - 516 m
Dojazd do centrum: pokaż
W pobliżu 1 km od tej inwestycji znajdują się:
16 kawiarni i restauracji, 16 sklepów, 56 obiektów sportowych, 18 placówek medycznych, 22 placówki edukacyjne, 24 place zabaw
Przeczytaj więcej o lokalizacji
Symfonia Ptasia 28 to inwestycja doskonale ulokowana w dzielnicy Grunwald, cieszącej się uznaniem mieszkańców Poznania. Położenie w bliskim sąsiedztwie Lasku Marcelińskiego! Dodatkowo, bliskość Stadionu Poznań daje możliwość korzystania z licznych wydarzeń sportowych i kulturalnych. Wygodna komunikacja miejska w postaci tramwajów i autobusów pozwala łatwo dotrzeć do dowolnego miejsca w mieście. Mieszkańcy mają również zapewniony dostęp do najważniejszych punktów usługowych, takich jak supermarket, siłownia, sklepy spożywcze, przedszkola, żłobki, kościoły oraz placówki medyczne, co przekłada się na wygodę i komfort codziennego życia.
Grunwald to leżąca na zachodzie miasta dzielnica Poznania o powierzchni 36 km kw i populacji 125 tys. mieszkańców. Dzielnica zamyka się w ulicach Skórzewskiej, Bukowskiej, Kolejowej i Leszczyńskiej. Dzielnicę z południowego zachodu na północy wschód przedziela ul. Głogowska, za miastem przechodząca w drogę krajową E261. Na terenie Grunwaldu krzyżuje się z nią droga europejska E30. Dzielnica ma własną szkołę wyższą – to Wyższa Szkoła Bezpieczeństwa. Jest stąd również blisko do Portu Lotniczego Poznań-Ławica, który zaczyna się tuż za północną granicą. Dzielnica ma też dobry dostęp do opieki zdrowotnej dzięki dwóm szpitalom klinicznym, prywatnej lecznicy (Certus), 60 aptekom, 15 przychodniom i gabinetom lekarskim. Fani sportu docenią Arenę Poznań i stadion INEA a także Lasek Marceliński, idealny do uprawiania joggingu czy nordic walkingu. Na terenie dzielnicy są też dwa kina.
Opis oferty
Nowe 2-pokojowe mieszkanie na sprzedaż o powierzchni 42,53 m² znajduje się w nowo budowanej inwestycji deweloperskiej Symfonia Ptasia 28 na Ławicy, ul. Ptasia 28 (4.7 km od centrum Poznania).
Inwestycja jest realizowana przez Grupa Inwest.
Cała inwestycja składa się z 1 budynku, w którym łącznie znajduje się 118 nowych mieszkań.
Na sprzedaż pozostaje 55 ofert o powierzchni od 41 do 107 m².
W budynku jest 7 kondygnacji naziemnych oraz 2 kondygnacje podziemne.
Inwestycja Symfonia Ptasia 28 została wybudowana i oddana do użytkowania w 4 kw. 2025 roku.
Nowe mieszkanie o oznaczeniu 28/31 znajduje się na 4 piętrze i jest 1-poziomowe. Pomieszczenia mają 260 centymetrów wysokości. W mieszkaniu znajdują się 2 pokoje.
Dla przyszłych mieszkańców Symfonia Ptasia 28 deweloper przewidział miejsca postojowe podziemne.
Dzięki temu przyszli właściciele nie będą musieli poszukiwać wolnej przestrzeni parkingowej. Dodatkowo, miejsce postojowe w garażu podziemnym zabezpiecza przed niekorzystnymi warunkami atmosferycznymi.
Opis Inwestycji
Pow. dodatkowe
Symfonia Ptasia 28 to unikalna inwestycja od Grupa Inwest, oferująca 118 przestronnych mieszkań 2-5-pokojowych o powierzchni 41 - 120 m2 w sześciopiętrowym budynku. Każde mieszkanie zostało zaprojektowane z myślą o komforcie i wygodzie mieszkańców, oferując przestronne pomieszczenia dopasowane do potrzeb przyszłych Nabywców. Lokale wyposażone są w tarasy, ogródki i balkony, które pozwalają cieszyć się świeżym powietrzem oraz pięknymi widokami. Dodatkowo, inwestycja zapewnia miejsca postojowe i komórki lokatorskie w podziemnej dwupoziomowej hali garażowej, gwarantując wygodne i bezpieczne parkowanie oraz dodatkową przestrzeń do przechowywania. Dla miłośników aktywnego trybu życia przewidziana jest wspólna rowerownia, zachęcająca do korzystania z ekologicznego środka transportu.
Mieszkanie znajduje się w inwestycji Symfonia Ptasia 28, w której znajduje się w sprzedaży jeszcze 29 podobnych nowych mieszkań.
Grupa Inwest
Strona internetowa inwestycjiAdres biura sprzedaży:
ul. Jasielska 10b, 60-476 PoznańGodziny otwarcia biura sprzedaży:
- Poniedziałek: 08:00 - 18:00
- Wtorek: 08:00 - 18:00
- Środa: 08:00 - 18:00
- Czwartek: 08:00 - 18:00
- Piątek: 08:00 - 18:00
Artykuły powiązane:
:format(jpg)/articles/gallery/image/700/co-sie-buduje-w-katowicach_8dd3c8.jpg)
Co buduje się w Katowicach?
Katowice wyróżnia innowacja, przedsiębiorczość i wszechobecny przemysł. W stolicy województwa śląskiego i Górnośląskiego Okręgu Przemysłowego odbywa się wiele międzynarodowych imprez, na które ściągają tłumy z całego świata. Bogata oferta edukacyjna i przemysłowa zachęca młodych ludzi do zamieszkania i rozpoczęcia kariery zawodowej w Katowicach. Inwestycje mieszkaniowe to kolejny atut miasta.
02 marca 2022
Redakcja





