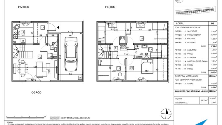
Dom na sprzedaż 5 pokoi o powierzchni 120,86 m² numer B2
Inwestycja:
Majewska DomyDeweloper:
ELMIS GK Sp. z o.o. S.K.A.
Inwestycja:
Majewska DomyDeweloper:
ELMIS GK Sp. z o.o. S.K.A.Warszawa, Białołęka, Brzeziny, ul. Włady Majewskiej
Warszawa, Białołęka, Brzeziny, ul. Włady Majewskiej
Promocje
Promocja
Miejsce postojowe zewnętrzne – W CENIE LOKALU!* Dla pierwszych 3 Klientów 30 tys. rabatu!
*Oferta cenowa ważna do odwołania
Termin oddania
4 kw. 2026
Ilość pokoi
5 pokoi
Metraż
120,86 m²
Piętro
Parter
Strona świata
północ, południe
Powierzchnie dodatkowe
Ogródek
Kuchnia
zamknięta kuchnia
Wysokość pomieszczeń
280 cm wysokości
Ilość kondygnacji
2 poziomy
Oznaczenie oferty
B2

Raport o deweloperze
Poznaj dewelopera bliżej! Pobierz raport, w którym znajdziesz kluczowe informacje o firmie, jej doświadczeniu, nagrodach oraz aktualnych i zrealizowanych inwestycjach.
Budynek i otoczenie
Miejsca postojowe | |
|---|---|
Garaże | garaż jednostanowiskowy |
Standard wykończenia | standard deweloperski Ogrzewanie gazowe |
Realizacja inwestycji | rozpoczęcie budowy w 1 kw. 2025 roku, planowane oddanie do użytkowania w 4 kw. 2026 roku |
Udogodnienia | teren ogrodzony, instalacja fotowoltaiczna |
Przyroda | informacja u dewelopera |
Charakterystyka energetyczna nieruchomości | informacja u dewelopera |
Rezerwacja i finanse
Rodzaj własności | Odrębna własność z własnością gruntu |
|---|---|
Wysokość czynszu | informacja u dewelopera |
Warunki rezerwacji | umowa rezerwacyjna - 1% ceny |
Zabezpieczenie środków | Otwarty mieszkaniowy rachunek powierniczy i gwarancję bankową |
Zdjęcia z budowy
Zobacz na jakim etapie budowy jest ta inwestycja
Lokalizacja inwestycji
Przystanek Tramwajowy - 2590 m
Przystanek Autobusowy - 103 m
Dojazd do centrum: pokaż
W pobliżu 1 km od tej inwestycji znajdują się:
3 kawiarnie i restauracje, 6 sklepów, 17 obiektów sportowych, 1 placówka medyczna, 15 placówek edukacyjnych, 8 placów zabaw
Przeczytaj więcej o lokalizacji
Białołęka to północna, druga pod względem wielkości powierzchni, dzielnica Warszawy odznaczająca się najszybszym rozwojem. Występują tutaj zarówno osiedla domów jednorodzinnych w północnej części obszaru, jak również wysoka, nowoczesna zabudowa mieszkaniowa. Dużą popularnością nadal cieszą się białołęckie osiedla z wielkiej płyty: Nowy Tarchomin, Nowodwory i Nowe Świdry. W strefie centralnej i południowej rozwija się infrastruktura handlowo-usługowa, więc obszar ten ma szansę stać się czymś więcej, niż kolejną warszawską "sypialnią". Białołęka jest jedną z najspokojniejszych dzielnic, a wypoczynek umożliwiają: kompleksy leśne, parki, rezerwaty przyrody i ścieżki rowerowe. Dogodnym sposobem dojazdu do centrum miasta są tutaj liczne linie autobusowe z pętlą Nowodwory, zaś do głównych arterii dzielnicy należą fragmenty dróg krajowych: ul. Modlińska i Trasa Toruńska, a także ul. Płochocińska.
Opis oferty
Nowy 5-pokojowy dom szeregowy na sprzedaż o powierzchni 120,86 m² znajduje się w nowo budowanej inwestycji deweloperskiej Majewska Domy na Brzezinach, ul. Włady Majewskiej (11 km od centrum Warszawy).
Inwestycja jest realizowana przez ELMIS GK Sp. z o.o. S.K.A.
Cała inwestycja składa się z 18 nowych domów.
Inwestycja Majewska Domy jest w trakcie budowy z planowanym na 4 kw. 2026 roku terminem oddania do użytkowania.
Nowy dom szeregowy o oznaczeniu B2 , składa się z 2 kondygnacji bez poddasza, nie posiada podpiwniczenia. Wysokość pomieszczeń wynosi 280 cm. Dom ma garaż 1 stanowiskowy.
W domu szeregowym numer B2 znajduje się się 5 pokoi.
Okna domu wychodzą na północ, południe.
Do domu przynależy ogródek o powierzchni 82,73 m².
Dla przyszłych mieszkańców Majewska Domy deweloper przewidział miejsca postojowe naziemne (18 miejsc)
Opis Inwestycji
Okazyjna cena
Pow. dodatkowe
Majewska Domy – Przemyślane i Nowoczesne Przestrzenie Mieszkalne
Majewska Domy to nowa inwestycja zlokalizowana na malowniczych warszawskich Brzezinach - na Białołęce, ul. Włady Majewskiej (ok. 15 km od centrum Warszawy).
Lokalizacja gwarantuje idealną komunikację, dostęp do edukacji, usług i obiektów różnego rodzaju, w tym rekreacyjnych, sklepów, szkół i przedszkoli – wszystkiego, co niezbędne do życia i funkcjonowania na co dzień.
Projekt składa się z 18 nowych lokali mieszkalnych o powierzchni od 120,86 m2 do 121,10 m². Każdy lokal posiada garaż, miejsce na podjeździe, miejsce zewnętrzne i ogródki o pow. od 66 do 335 m².
Inwestycja jest w trakcie budowy, odbiór lokali planowany w IV kwartale 2026 roku.
Dom znajduje się w inwestycji Majewska Domy, w której znajduje się w sprzedaży jeszcze 16 podobnych nowych domów.
ELMIS GK Sp. z o.o. S.K.A.
Strona internetowa inwestycjiAdres biura sprzedaży:
ul. Warszawska 92, 05-092 ŁomiankiGodziny otwarcia biura sprzedaży:
- Poniedziałek: 09:00 - 17:00
- Wtorek: 09:00 - 17:00
- Środa: 09:00 - 17:00
- Czwartek: 09:00 - 17:00
- Piątek: 09:00 - 17:00





