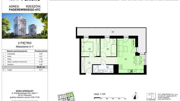
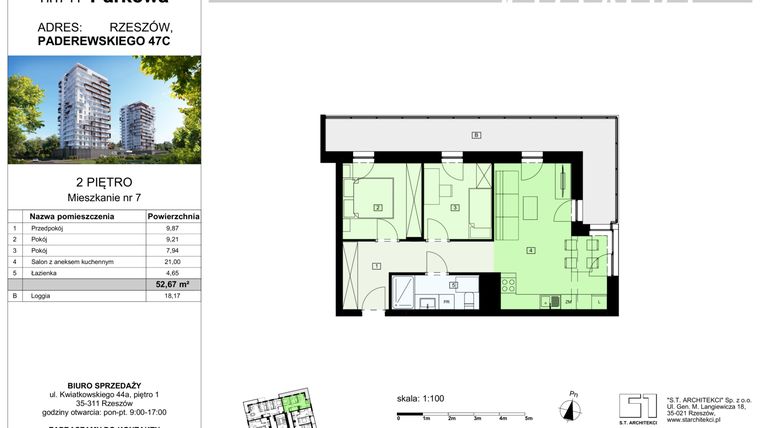
Mieszkanie na sprzedaż 3 pokoje o powierzchni 52,67 m² numer 7/B8
Inwestycja:
Dzielnica Parkowa VIIIDeweloper:
Dzielnica Parkowa 2 Sp. z o.o.
Inwestycja:
Dzielnica Parkowa VIIIDeweloper:
Dzielnica Parkowa 2 Sp. z o.o.Rzeszów, Słocina, ul. Paderewskiego
Rzeszów, Słocina, ul. Paderewskiego
Termin oddania
1 kw. 2027
Ilość pokoi
3 pokoje
Metraż
52,67 m²
Piętro
2 piętro
Kuchnia
otwarta kuchnia
Wysokość pomieszczeń
od 260 do 280 cm wysokości
Ilość poziomów
1 poziom
Oznaczenie oferty
7/B8

Raport o deweloperze
Poznaj dewelopera bliżej! Pobierz raport, w którym znajdziesz kluczowe informacje o firmie, jej doświadczeniu, nagrodach oraz aktualnych i zrealizowanych inwestycjach.
Budynek i otoczenie
Miejsca postojowe | |
|---|---|
Komórki lokatorskie | dostępne |
Standard wykończenia | standard deweloperski |
Realizacja inwestycji | rozpoczęcie budowy w 1 kw. 2025 roku, planowane oddanie do użytkowania w 1 kw. 2027 roku |
Udogodnienia | winda, usługi w budynku, monitoring |
Przyroda | w okolicy inwestycji znajduje się park |
Charakterystyka energetyczna nieruchomości | informacja u dewelopera |
Rezerwacja i finanse
Rodzaj własności | informacja u dewelopera |
|---|---|
Wysokość czynszu | informacja u dewelopera |
Warunki rezerwacji | Informacja u dewelopera |
Zabezpieczenie środków | Informacja u dewelopera |
Zdjęcia z budowy
Zobacz na jakim etapie budowy jest ta inwestycja
Lokalizacja inwestycji
Stacja kolejowa - Rzeszów Pobitno - 2854 m
Przystanek Autobusowy - 80 m
Dojazd do centrum: pokaż
W pobliżu 1 km od tej inwestycji znajdują się:
3 kawiarnie i restauracje, 9 sklepów, 12 obiektów sportowych, 11 placówek medycznych, 15 placówek edukacyjnych, 10 placów zabaw
Przeczytaj więcej o lokalizacji
Rzeszów to miasto w południowo-wschodniej Polsce będące stolica województwa podkarpackiego. Położony jest na Podgórzu Rzeszowskim. W skład Rzeszowa wchodzi kilkadziesiąt osiedli. Zabudowa Śródmieścia Rzeszowa pochodzi w większości z XIX wieku, pozostałe części miasta charakteryzują się przeważnie zabudową typową dla osiedli miejskich – są to bloki oraz osiedla domów jednorodzinnych czy szeregowców. Do najważniejszych zabytków Rzeszowa należy gotycki kościół farny oraz zamek z czasów Lubomirskich. Reprezentacyjną częścią miasta jest deptak 3 Maja. W Rzeszowie jest też kilka wieżowców – w 2014 roku oddano do użytku 18-piętrowy apartamentowiec Capital Towers, a w 2015 r. SkyRes Warszawska, 14-piętrowy biurowiec wraz z zapleczem mieszkalnym. W obrębie Rzeszowa znajduje się także rezerwat przyrody Lisia Góra położony nad Zbiornikiem Rzeszowskim. W mieście znajduje się również wiele ważnych obiektów sportowych oraz kulturalnych, m.in. Filharmonia Podkarpacka czy Hala Podpromie.
Opis oferty
Nowe 3-pokojowe mieszkanie na sprzedaż o powierzchni 52,67 m² znajduje się w nowo budowanej inwestycji deweloperskiej Dzielnica Parkowa VIII na Słocinie, ul. Paderewskiego (2.7 km od centrum Rzeszowa).
Inwestycja jest realizowana przez Dzielnica Parkowa 2 Sp. z o.o.
Cała inwestycja składa się z 1 budynku, w którym łącznie znajduje się 87 nowych mieszkań.
Na sprzedaż pozostają 73 oferty o powierzchni od 49 do 145 m².
W budynku jest 16 kondygnacji naziemnych oraz 2 kondygnacje podziemne.
Inwestycja Dzielnica Parkowa VIII jest w trakcie budowy z planowanym na 1 kw. 2027 roku terminem oddania do użytkowania.
Nowe mieszkanie o oznaczeniu 7/B8 znajduje się na 2 piętrze i jest 1-poziomowe. Pomieszczenia mają od 260 do 280 centymetrów wysokości. W mieszkaniu znajdują się 3 pokoje.
Dla przyszłych mieszkańców Dzielnica Parkowa VIII deweloper przewidział miejsca postojowe podziemne.
Dzięki temu przyszli właściciele nie będą musieli poszukiwać wolnej przestrzeni parkingowej. Dodatkowo, miejsce postojowe w garażu podziemnym zabezpiecza przed niekorzystnymi warunkami atmosferycznymi.
Opis Inwestycji
Na naszym samowystarczalnym osiedlu znajdują się wszystkie najważniejsze elementy infrastruktury, które ułatwią codzienne życie. Do dyspozycji mieszkańców jest przedszkole, malowniczy park idealny na spacery i odpoczynek, piekarnia oferująca świeże wypieki każdego dnia, sklepy oraz restauracje serwujące wyśmienite posiłki.
Dzielnica Parkowa to miejsce, gdzie nowoczesność spotyka funkcjonalność, zapewniając mieszkańcom komfort i wygodę na najwyższym poziomie. Tu wszystko, czego potrzebujesz, jest zawsze blisko.
Zamieszkaj w wyjątkowym miejscu, które łączy nowoczesny komfort z bliskością przyrody. Osiedle zlokalizowane przy ulicy Paderewskiego w Rzeszowie graniczy z malowniczym, zabytkowym Parkiem Szafera – oazą spokoju i zieleni w sercu miasta.
Park Szafera to idealne miejsce na spacery, relaks i kontakt z naturą. Znajduje się tu urokliwy staw, po którym majestatycznie pływają kaczki, tworząc sielską atmosferę, która zachwyci każdego. Bliskość parku zapewnia nie tylko piękne widoki, ale także wyjątkowe możliwości spędzania czasu na świeżym powietrzu.
Wybierz życie w otoczeniu zieleni, z dostępem do pełnej infrastruktury miasta – idealne miejsce dla rodzin, osób aktywnych i wszystkich ceniących harmonię między naturą a nowoczesnością.
Mieszkanie znajduje się w inwestycji Dzielnica Parkowa VIII, w której znajduje się w sprzedaży jeszcze 46 podobnych nowych mieszkań.
Dzielnica Parkowa 2 Sp. z o.o.
Strona internetowa inwestycjiAdres biura sprzedaży:
ul. Powstańców Warszawy 34 lok. U1 35-329 Rzeszów




