Mieszkanie na sprzedaż 3 pokoje o powierzchni 65,02 m² numer 5.A.30
Estymowana rata kredytu: 3 530 zł
Inwestycja:
Nowe Południe bud. 5Deweloper:
DOMESTA Sp. z o.o.
Inwestycja:
Nowe Południe bud. 5Deweloper:
DOMESTA Sp. z o.o.Gdańsk, Orunia Górna - Gdańsk Południe, ul. Starogardzka
Gdańsk, Orunia Górna - Gdańsk Południe, ul. Starogardzka
Termin oddania
3 kw. 2026
Ilość pokoi
3 pokoje
Metraż
65,02 m²
Piętro
5 piętro
Strona świata
wschód, północ
Powierzchnie dodatkowe
Balkon
Kuchnia
otwarta kuchnia
Wysokość pomieszczeń
od 260 do 280 cm wysokości
Ilość poziomów
1 poziom
Oznaczenie oferty
5.A.30

Raport o deweloperze
Poznaj dewelopera bliżej! Pobierz raport, w którym znajdziesz kluczowe informacje o firmie, jej doświadczeniu, nagrodach oraz aktualnych i zrealizowanych inwestycjach.
Budynek i otoczenie
Miejsca postojowe | |
|---|---|
Komórki lokatorskie | dostępne |
Standard wykończenia | standard deweloperski |
Realizacja inwestycji | rozpoczęcie budowy w 4 kw. 2024 roku, planowane oddanie do użytkowania w 3 kw. 2026 roku |
Udogodnienia | plac zabaw, rowerownia, patio / dziedziniec, winda |
Przyroda | informacja u dewelopera |
Charakterystyka energetyczna nieruchomości | informacja u dewelopera |
Rezerwacja i finanse
Rodzaj własności | Odrębna własność z własnością gruntu |
|---|---|
Wysokość czynszu | informacja u dewelopera |
Warunki rezerwacji | Informacja u dewelopera |
Zabezpieczenie środków | Informacja u dewelopera |
Zdjęcia z budowy
Zobacz na jakim etapie budowy jest ta inwestycja
Lokalizacja inwestycji
Stacja kolejowa - Gdańsk Lipce - 1903 m
Przystanek Tramwajowy - 2678 m
Przystanek Autobusowy - 196 m
Dojazd do centrum: pokaż
W pobliżu 1 km od tej inwestycji znajdują się:
1 kawiarnia lub restauracja, 7 sklepów, 5 obiektów sportowych, 4 placówki edukacyjne, 22 place zabaw
Przeczytaj więcej o lokalizacji
Gdańsk to miasto położone na północy Polski w bezpośrednim sąsiedztwie Morza Bałtyckiego (Zatoka Gdańska). Ok 100 m. dzieli granice Gdańska od Pruszcza Gdańskiego, 30 km od Elbląga, 7 km od Sopotu i 12 km od Gdyni. Panorama Gdańska to zarówno przedwojenne zabytki jak i kamienice odbudowane po wojnie, a także bloki i domki jednorodzinne. Gdańsk składa się z kilkudziesięciu dzielnic, w tym Aniołki, Oliwa, Przymorze Wielkie, Strzyża, Śródmieście, Ujeścisko-Łostowice i Wyspa Sobieszewska. To ważny ośrodek naukowy z Uniwersytetem Gdańskim, Politechniką Gdańską czy Gdańskim Uniwersytetem Medycznym na czele. Za kulturę odpowiada m.in. Filharmonia Bałtycka, Opera Bałtycka, Teatr Wybrzeże, Gdański Teatr Szekspirowski oraz Muzeum Narodowe. Ofertę kulturalną uzupełniają zabytki od średniowiecznych po te najnowsze (Stocznia Gdańska).
Opis oferty
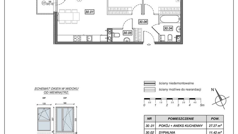
To 3-pokojowe mieszkanie o powierzchni 65,02 m² , położone na piątym, najwyższym piętrze , z balkonem o powierzchni 4,20 m² . Dzięki temu masz więcej prywatności, brak sąsiadów nad głową i możliwość cieszenia się spokojem na najwyższej kondygnacji budynku. Cichobieżna winda zapewnia wygodny dostęp, a duże okna wpuszczają mnóstwo naturalnego światła.
Część dzienna z aneksem kuchennym (27,27 m²) ma zachodnią ekspozycję , co oznacza przytulne, ciepłe wnętrze w godzinach popołudniowych. Balkon to idealne miejsce na relaks po długim dniu.
Dwie sypialnie (11,42 m² i 12,26 m²) , skierowane na północ , zapewniają komfortowy chłód nawet latem i sprzyjają spokojnemu wypoczynkowi.
W holu (7,91 m²) znajduje się miejsce na zabudowaną szafę, a łazienka (4,10 m²) i osobna toaleta (2,06 m²) zwiększają codzienny komfort mieszkańców.
Ostatnie piętro, cicha winda i przestronne wnętrza sprawiają, że to mieszkanie to idealne połączenie komfortu, prywatności i funkcjonalności.
Nowe Południe to nowoczesne, starannie zaprojektowane osiedle zlokalizowane przy ul. Starogardzkiej, w dynamicznie rozwijającej się części Gdańska Południe . Dogodna lokalizacja zapewnia szybki dostęp zarówno do centrum miasta, jak i Obwodnicy Trójmiasta. W bezpośrednim sąsiedztwie znajdują się szkoły, sklepy, przystanki komunikacji miejskiej oraz tereny rekreacyjne, co czyni to miejsce doskonałym wyborem do codziennego życia.
Budynek nr 5 to kameralny, trzypiętrowy obiekt, w którym zaplanowano jedynie 30 mieszkań . Położony w środkowej części osiedla , otoczony z trzech stron zielenią osiedlową, oferuje mieszkańcom poczucie prywatności, spokoju oraz przyjemny widok z okien.
Za projekt osiedla odpowiada renomowana pracownia Meso Architekci , która połączyła nowoczesną architekturę inspirowaną modernizmem z funkcjonalnym, zielonym układem przestrzeni. Ruch samochodowy został całkowicie wyeliminowany z poziomu terenu – wszystkie miejsca postojowe znajdują się w garażach podziemnych. Dzięki temu przestrzeń między budynkami wypełniają alejki spacerowe, pagórki oraz ponad 500 nowych drzew , tworząc wyjątkowy, przyjazny mikroklimat.
Za swoją koncepcję i jakość realizacji osiedle Nowe Południe zostało wyróżnione tytułem „Inwestycja Roku” w plebiscycie portalu Trojmiasto.pl .
Podwyższony standard wykończenia mieszkań obejmuje:
– bloczki wapienne o wysokiej izolacyjności termicznej i akustycznej
– tynkowane i malowane ściany oraz sufity
– trzyszybowe okna
– parapety z konglomeratu
– solidne drzwi antywłamaniowe
– przygotowanie pod instalację światłowodową
– cichobieżne windy, hale garażowe oraz komórki lokatorskie
Planowany termin odbioru budynku nr 5: lipiec 2026
W celu uzyskania szczegółowych informacji o dostępnych mieszkaniach, uprzejmie zapraszamy do kontaktu z biurem sprzedaży. Z przyjemnością zostaną przedstawione wszystkie aktualne propozycje odpowiadające Państwa preferencjom.
Link do oferty dewelopera: https://www.domesta.com.pl/nowe-poludnie
Nowe 3-pokojowe mieszkanie na sprzedaż o powierzchni 65,02 m² znajduje się w nowo budowanej inwestycji deweloperskiej Nowe Południe bud. 5 w Oruni Górnej - Gdańsk Południe, ul. Starogardzka (6.5 km od centrum Gdańska).
Inwestycja jest realizowana przez DOMESTA Sp. z o.o.
Cała inwestycja składa się z 2 budynków, w których łącznie znajduje się 30 nowych mieszkań.
Na sprzedaż pozostają 2 oferty o powierzchni 65 m².
W budynkach jest 5 kondygnacji naziemnych oraz 1 kondygnacja podziemna.
Inwestycja Nowe Południe bud. 5 jest w trakcie budowy z planowanym na 3 kw. 2026 roku terminem oddania do użytkowania.
Nowe mieszkanie o oznaczeniu 5.A.30 znajduje się na 5 piętrze i jest 1-poziomowe. Pomieszczenia mają od 260 do 280 centymetrów wysokości. W mieszkaniu znajdują się 3 pokoje.
Okna w mieszkaniu wychodzą na wschód, północ.
Północna ekspozycja to idealny wybór dla osób ceniących przytulne i klimatyczne wnętrza. Delikatne, rozproszone światło sprzyja harmonii i stwarza doskonałe warunki do relaksu lub pracy. Okna na północ zapewnią równomierne oświetlenie przez cały dzień.
Wschodnia orientacja zapewnia dostęp do łagodnego porannego światła, idealnego dla rozpoczęcia dnia pełnego energii. Wnętrza pozostają jasne, ale nieprzegrzane, co sprzyja utrzymaniu komfortowej temperatury. Przebywanie w pomieszczeniu z oknami na wschód inspiruje do działania i pozytywnie wpływa na poranny rytuał.
Dla przyszłych mieszkańców Nowe Południe bud. 5 deweloper przewidział miejsca postojowe podziemne, miejsca postojowe naziemne.
Dzięki temu przyszli właściciele nie będą musieli poszukiwać wolnej przestrzeni parkingowej. Dodatkowo, miejsce postojowe w garażu podziemnym zabezpiecza przed niekorzystnymi warunkami atmosferycznymi.
Cena ofertowa mieszkania wynosi 698 000 zł (10 735 zł/m²).
Opis Inwestycji
Okazyjna cena
Pow. dodatkowe
Nowe Południe to nowoczesne osiedle powstające przy ulicy Starogardzkiej w prężnie rozwijającej się dzielnicy Gdańsk Południe. Jego położenie gwarantuje szybki dostęp do centrum Gdańska oraz obwodnicy Trójmiasta, najważniejszej ekspresowej drogi tego regionu. To miejsce, w którym wszystko co niezbędne znajdziesz w zasięgu przyjemnego spaceru: zarówno wyjątkową zieloną przestrzeń jak i dostęp do usług. Przy inwestycji znajdują się drogi rowerowe, które umożliwią Twojemu dziecku w bezpieczny sposób dotrzeć do szkoły, a Tobie znaleźć wytchnienie od wielkomiejskiego zgiełku.
Architektura budynków, odznaczająca się prostą formą, rytmicznymi podziałami elewacji oraz narożnymi loggiami, nawiązuje do modernizmu. Budynki zostały podzielone na szare i białe bryły, a detalem spajającym wszystkie elementy jest okładzina ceglana. Na osiedlu Nowe Południe przestrzeń i natura idą w parze z doskonałą architekturą.
Skrupulatnie zaprojektowana przestrzeń naturalnych terenów rekreacyjnych tworzy idealną strefę odpoczynku i zabaw pośród bogactwa roślin, krzewów i drzew. Wyłączenie ruchu samochodowego ze strefy mieszkalnej pozwoliło stworzyć miejsce bezpieczne oraz pozbawione spalin i uciążliwego hałasu. Umieszczenie miejsc postojowych w garażach podziemnych wpłynęło na powiększenie powierzchni osiedlowych dziedzińców. Wypełnienie ich różnorodną zielenią przyczyni się do stworzenia estetycznej przestrzeni sprzyjającej dobremu samopoczuciu.
Na terenie Nowego Południa znajdzie się ponad 500 drzew, a projekt osiedla zakłada ścisłą integrację z naturą. Dobór roślin podyktowany był uwydatnieniem różnorodności poszczególnych przestrzeni dziedzińców, podkreśleniem piękna przyrody i wykreowaniem harmonijnej całości. Alejki, pagórki oraz sposób formowania nasadzeń nawiązuje do naturalnego położenia terenu. Nowe Południe to enklawa zieleni mająca znaczenie zarówno dla naszego komfortu jak i zdrowia.
Z myślą o najmłodszych stworzyliśmy wyjątkowy plac zabaw z oryginalną zabawką wodną. Inspiruje ona do eksperymentowania i zabawy z naturalnymi materiałami. W pobliżu znajdzie się również kopuła wspinaczkowa. Dzieci o różnych umiejętnościach będą mogły "zdobywać szczyty", każde na swój sposób. Możliwość huśtania się, wspinaczki po sieci i skakania po linach pozytywnie wpłynie na rozwój motoryki, równowagi i koordynacji ruchowej. Na terenie osiedla zaprojektowano też przestrzeń do zabawy zawierającą najbardziej popularne i lubiane elementy placu zabaw. Wszystko po to, by czas spędzony z przyjaciółmi na świeżym powietrzu był jak najpiękniejszy.
Mieszkanie znajduje się w inwestycji Nowe Południe bud. 5, w której znajduje się w sprzedaży jeszcze 8 podobnych nowych mieszkań.
Kup to mieszkanie na kredyt
Symulacja miesięcznej raty kredytowej
Wkład własny
Większość banków wymaga wkładu własnego na poziomie 20% ceny nieruchomości
%
zł
Okres kredytowania
Rata miesięczna jest zależna od długości okresu kredytowania
Kalkulator wylicza orientacyjną ratę Twojego kredytu przy założeniu, że średnie oprocentowanie kredytu wraz z WIBOR i marżą banku wynosi 6.5% (oprocentowanie stałe w okresie 5 lat).
Twoja miesięczna rata kredytu
3 530 zł
Kalkulacja raty kredytowej została oparta o estymowaną cenę nieruchomości (698 000 zł) na podstawie ostatnich danych od dewelopera i naszych danych analitycznych
DOMESTA Sp. z o.o.
Strona internetowa inwestycjiAdres biura sprzedaży:
ul. Starogardzka/Borkowska przy rondzie, GdańskGodziny otwarcia biura sprzedaży:
- Poniedziałek: 09:00 - 17:00
- Wtorek: 09:00 - 17:00
- Środa: 09:00 - 17:00
- Czwartek: 09:00 - 17:00
- Piątek: 09:00 - 17:00





