Mieszkanie na sprzedaż 1 pokój o powierzchni 30,7 m² numer H59
Inwestycja:
Apartamenty Park Matecznego Etap 2.2Deweloper:
Dom Development S.A.
Inwestycja:
Apartamenty Park Matecznego Etap 2.2Deweloper:
Dom Development S.A.Kraków, Podgórze, ul. Rydlówka 5
Kraków, Podgórze, ul. Rydlówka 5
Termin oddania
3 kw. 2027
Ilość pokoi
1 pokój
Metraż
30,7 m²
Piętro
1 piętro
Powierzchnie dodatkowe
Balkon
Wysokość pomieszczeń
od 260 do 280 cm wysokości
Ilość poziomów
1 poziom
Oznaczenie oferty
H59

Raport o deweloperze
Poznaj dewelopera bliżej! Pobierz raport, w którym znajdziesz kluczowe informacje o firmie, jej doświadczeniu, nagrodach oraz aktualnych i zrealizowanych inwestycjach.
Budynek i otoczenie
Miejsca postojowe | |
|---|---|
Komórki lokatorskie | dostępne |
Standard wykończenia | standard deweloperski |
Realizacja inwestycji | oddanie do użytkowania w 3 kw. 2027 roku |
Udogodnienia | usługi w budynku, winda, inteligentny dom, patio / dziedziniec, instalacja fotowoltaiczna |
Przyroda | informacja u dewelopera |
Charakterystyka energetyczna nieruchomości | informacja u dewelopera |
Rezerwacja i finanse
Rodzaj własności | Odrębna własność z własnością gruntu |
|---|---|
Wysokość czynszu | informacja u dewelopera |
Warunki rezerwacji | Informacja u dewelopera |
Zabezpieczenie środków | Informacja u dewelopera |
Zdjęcia z budowy
Zobacz na jakim etapie budowy jest ta inwestycja
Lokalizacja inwestycji
Stacja kolejowa - Kraków Bonarka - 1014 m
Przystanek Tramwajowy - 285 m
Przystanek Autobusowy - 237 m
Dojazd do centrum: pokaż
W pobliżu 1 km od tej inwestycji znajdują się:
54 kawiarnie i restauracje, 52 sklepy, 40 obiektów sportowych, 24 placówki medyczne, 39 placówek edukacyjnych, 22 place zabaw
Przeczytaj więcej o lokalizacji
Dzielnica Podgórze znajduje się w centrum Krakowa i jest zamieszkiwana przez 34 045 osób. Dzielnicę można podzielić na 3 podregiony, z których każdy cechuje się odmiennym typem zabudowy. Stare Podgórze pełne jest zabytków i budynków wzniesionych w XIX i na początku XXw., w Płaszowie dominują czterokondygnacyjne budynki z lat 90-tych XXw. oraz domy jednorodzinne, natomiast na Rybitwach domy jednorodzinne mieszają się z nieruchomościami przemysłowymi. Dzielnica rozwija się w szybkim tempie i może pochwalić się dobrze rozbudowaną infrastrukturą, czego przykładem jest niemal 20 szkół, 2 galerie, 2 muzea, Kino Teatr „Wrzos”, domy kultury. Odpocząć można tu na Plantach im. F. Nowackiego lub w Parku im. W. Bednarskiego. Dodatkowo Podgórze ma dobre połączenia komunikacyjne z pozostałymi dzielnicami Krakowa, a dojazdy ułatwiają przechodzące przez dzielnicę drogi: krajowa nr 7 i wojewódzka nr 776.
Opis oferty
Nowe 1-pokojowe mieszkanie na sprzedaż o powierzchni 30,7 m² znajduje się w nowo wybudowanej inwestycji deweloperskiej Apartamenty Park Matecznego Etap 2.2 na Podgórzu, ul. Rydlówka 5 (3.2 km od centrum Krakowa).
Inwestycja została zrealizowana przez Dom Development S.A.
Cała inwestycja składa się z 2 budynków, w których łącznie znajduje się 105 nowych mieszkań.
Na sprzedaż pozostaje 55 ofert o powierzchni od 30 do 108 m².
W budynkach jest 5 kondygnacji naziemnych oraz 1 kondygnacja podziemna.
Inwestycja Apartamenty Park Matecznego Etap 2.2 jest w trakcie budowy z planowanym na 3 kw. 2027 roku terminem oddania do użytkowania.
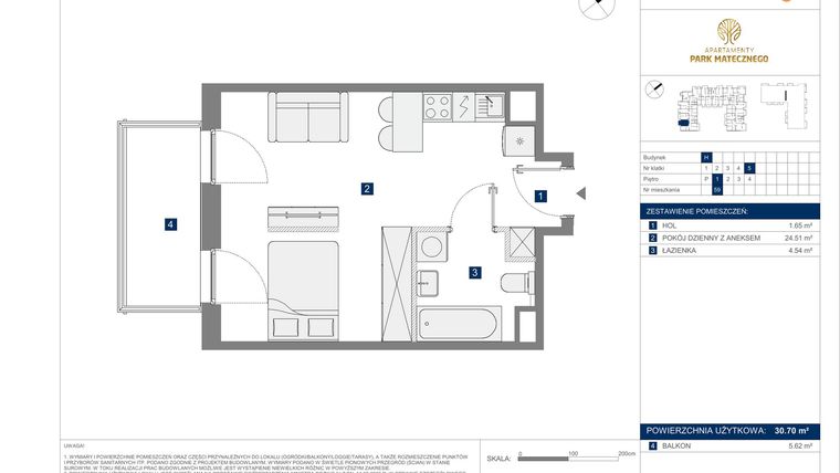
Nowe mieszkanie o oznaczeniu H59 znajduje się na 1 piętrze i jest 1-poziomowe. Pomieszczenia mają od 260 do 280 centymetrów wysokości. W mieszkaniu znajduje się 1 pokój.
Dla przyszłych mieszkańców Apartamenty Park Matecznego Etap 2.2 deweloper przewidział miejsca postojowe podziemne, miejsca postojowe naziemne.
Dzięki temu przyszli właściciele nie będą musieli poszukiwać wolnej przestrzeni parkingowej. Dodatkowo, miejsce postojowe w garażu podziemnym zabezpiecza przed niekorzystnymi warunkami atmosferycznymi.
Opis Inwestycji
Tereny zielone
Pow. dodatkowe
ZIELONA ENKLAWA BLISKO CENTRUM
Apartamenty Park Matecznego to wieloetapowe osiedle, położone w pobliżu Ronda Matecznego. Znakomita lokalizacja blisko centrum, bezpośrednie sąsiedztwo Parku Zdrojowego oraz architektura nawiązująca do stylowych krakowskich kamienic sprawiają, że jest to idealna propozycja dla najbardziej wymagających.
GŁÓWNE ZALETY INWESTYCJI
- sąsiedztwo Parku Zdrojowego Mateczny
- wygodna komunikacja dzięki Rondzie Matecznego
- bliskość Wisły, Podgórza, Kazimierza i Starego Miasta
- wysokiej jakości materiały wykończeniowe
- otwarty, miejski charakter osiedla z lokalami usługowymi
- szerokie, zielone dziedzińce z miejscami do wypoczynku
- liczne, nowoczesne rozwiązania, m.in. fotowoltaika, smart building
WSZĘDZIE BLISKO
Inwestycja zlokalizowana jest tuż obok Ronda Matecznego, ważnego węzła komunikacyjnego, skąd wygodnie można dotrzeć na Podgórze i Kazimierz, a dojazd tramwajem pod Wawel zajmuje jedynie 10 minut. Z osiedlem sąsiaduje Park Zdrojowy Mateczny, który zachęca do aktywnego wypoczynku na łonie natury. Mieszkańców ucieszą również pobliskie tereny zielone nad Wilgą czy bulwary nad Wisłą. Oddalone o 5 minut jazdy autem CH Bonarka z licznymi sklepami, usługami, restauracjami i kinem pozwala na wygodne zakupy i rozrywkę dla całej rodziny.
OTWARTA PRZESTRZEŃ MIEJSKA
Architektura inwestycji nawiązuje do klimatycznych kamienic, z których znany jest Kraków. Liczne balkony i wykusze urozmaicą bryły budynków, a na elewacji pojawi się mineralna płytka klinkierowa. Otwarty charakter osiedla, bogato zaaranżowana zieleń, stojaki na rowery oraz lokale usługowe sprawią, że powstanie tu atrakcyjna przestrzeń miejska.
ELEGANCKIE WNĘTRZA
Wnętrza zaprojektowano przy użyciu materiałów wysokiej jakości. Uwagę przykują eleganckie detale, w tym m.in. portale drzwiowe, sztukaterie, złote elementy identyfikacji wizualnej czy stylowe oświetlenie.
ZIELONA KARTA INWESTYCJI
Zielona Karta Inwestycji to nasz wewnętrzny standard (wchodzący w skład naszej strategii ESG), gwarantujący optymalny zestaw korzyści dla mieszkańców oraz zastosowanie rozwiązań projektowych zgodnych z priorytetami zrównoważonej urbanizacji.
Apartamenty Park Matecznego spełniają wymogi Zielonej Karty Inwestycji z uwagi na bogaty pakiet elementów zapewniających komfort życia mieszkańców oraz wspierających ochronę środowiska.
Mieszkanie znajduje się w inwestycji Apartamenty Park Matecznego Etap 2.2, w której znajduje się w sprzedaży jeszcze 14 podobnych nowych mieszkań.
Dom Development S.A.
Strona internetowa inwestycjiAdres biura sprzedaży:
ul. Wadowicka 3A, 30-347 KrakówGodziny otwarcia biura sprzedaży:
- Poniedziałek: 10:00 - 18:00
- Wtorek: 10:00 - 18:00
- Środa: 11:00 - 18:00
- Czwartek: 10:00 - 18:00
- Piątek: 10:00 - 18:00
- Sobota: 10:00 - 15:00
Artykuły powiązane:
:format(jpg)/articles/gallery/image/9581/mural-zoliborz-artystyczny_1f4dae.jpg)
Warszawskie projekty deweloperskie ze sztuką
25 maja 2026
Paulina Bartkowska
:format(jpg)/articles/gallery/image/7108/ff77b5.jpg)
Jak deweloperzy zmieniają krajobraz polskich miast?
25 maja 2026
Magdalena Szwed





