Apartament na sprzedaż 2 pokoje o powierzchni 46,46 m² numer 4.21
Rezerwacja
Oferta archiwalna
Inwestycja:
TrimareDeweloper:
Dekpol Deweloper Sp. z o.o.
Inwestycja:
TrimareDeweloper:
Dekpol Deweloper Sp. z o.o.pomorskie, nowodworski, Sztutowo, ul. Mierzeja Park 24
pomorskie, nowodworski, Sztutowo, ul. Mierzeja Park 24
Uwaga
Ta nieruchomość jest nieaktywna. Informacje na jej temat pomagają nam jednak tworzyć wiarygodną bazę informacji na temat lokalnego rynku nieruchomości statystycznych portalu
Oddanie
Gotowe
Ilość pokoi
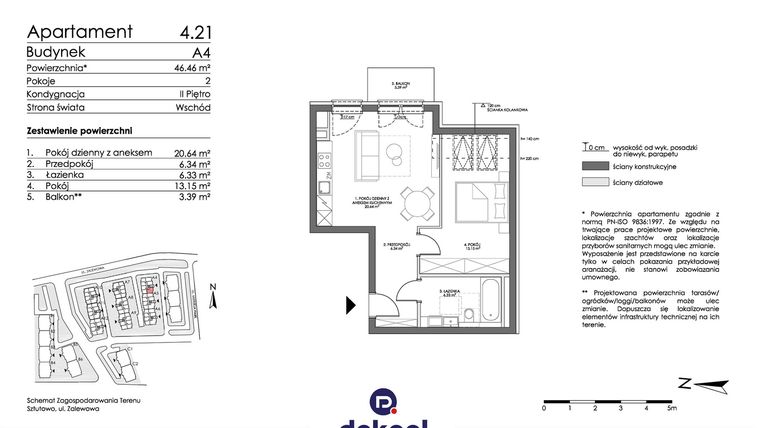
2 pokoje
Metraż
46,46 m²
Piętro
2 piętro
Strona świata
wschód
Dodatkowe
Balkon
Wysokość
od 260 do 280 cm wysokości
Poziomy
1 poziom
Oznaczenie oferty
4.21

Raport o deweloperze
Poznaj dewelopera bliżej! Pobierz raport, w którym znajdziesz kluczowe informacje o firmie, jej doświadczeniu, nagrodach oraz aktualnych i zrealizowanych inwestycjach.
Budynek i otoczenie
Miejsca postojowe | |
|---|---|
Standard wykończenia | standard deweloperski |
Realizacja inwestycji | rozpoczęcie budowy w 3 kw. 2021 roku, inwestycja została oddana do użytkowania w 1 kw. 2022 roku |
Udogodnienia | pomieszczenie rekreacyjne, monitoring, winda, rowerownia, pompa ciepła |
Przyroda | w okolicy inwestycji znajduje się las, morze, rezerwat przyrody, zalew |
Charakterystyka energetyczna nieruchomości |
|
Rezerwacja i finanse
Rodzaj własności | Odrębna własność z własnością gruntu |
|---|---|
Wysokość czynszu | informacja u dewelopera |
Warunki rezerwacji | informacja u dewelopera |
Zabezpieczenie środków | Informacja u dewelopera |
Lokalizacja inwestycji
Stacja kolejowa - Sztutowo - 728 m
Przystanek Autobusowy - 101 m
Dojazd do centrum Gdańska: pokaż
W pobliżu 1 km od tej inwestycji znajdują się:
5 kawiarni i restauracji, 13 sklepów, 10 obiektów sportowych, 4 placówki edukacyjne, 3 place zabaw
Przeczytaj więcej o lokalizacji
Trimare znajduje się w malowniczej miejscowości Sztutowo, położonej bezpośrednio nad polskim morzem. Jej największym atutem jest bliskość szerokich, piaszczystych plaż oraz pięknych sosnowych lasów. Centralne położenie Sztutowa sprawia, że w niedalekiej odległości znajdują się również liczne punkty usługowo-handlowe: sklepy, apteka, poczta, a nawet salon kosmetyczny. W okolicy można znaleźć również wiele atrakcji: słynny most, który zagrał w serialu „Czterej Pancerni i Pies”, rezerwat przyrody czy kolejkę wąskotorową. To wszystko sprawia, że Trimare stanowi idealne miejsce nie tylko na letni wypoczynek, ale także przez cały rok. Pozwala jednocześnie na swobodne korzystanie z rozwiniętej sieci usług. Bliskość na uboczu - 200 m las - 800 m Międzynarodowy szlak rowerowy R10 - 1 km Przystanek kolejki wąskotorowej - 2,5 km Zatoka Gdańska - 3 km Zalew Wiślany - 3 km Rezerwat kormoranów - 17 km Wyspa Sobieszewska (Gdańsk) - 18 km Trasa S7 - 19 km Rejsy po Zalewie Wiślanym - 19 km Krynica Morska
Powiat nowodworski znajduje się we wschodniej części woj. pomorskiego i składa się z 5 gmin, które leżą na terenach zaliczanych do Żuław Wiślanych i Mierzei Wiślanej. Jego stolicą jest Nowy Dwór Gdański. Powierzchnia regionu wynosi 671,53 km2. Mieszka tu ok. 36 250 osób. Choć okolica stale się rozwija, to jednak wciąż widać tu wpływy historii, a nawet współczesna architektura jest inspirowana tradycjami regionu. Od północy powiat bezpośrednio graniczy z Morzem Bałtyckim, a jego wschodnią i zachodnią granicę wyznaczają rzeki Nogat i Wisła. Wysokie walory przyrodnicze sprawiają, że na tych terenach założono rezerwaty przyrody. Są one skupione głównie na obszarze Krynicy Morskiej. W powiecie funkcjonuje 30 szkół różnego szczebla. Jest tu 20 przychodni lekarskich, a w Nowym Dworze Gdańskim mieści się szpital. Rozwinięta jest infrastruktura sportowa, a do najważniejszych obiektów tego typu należą stadion w Nowym Dworze Gdańskim i 6 boisk w Sztutowie. Obok domów i ośrodków kultury, działają tu także muzea. Przez powiat biedną dwie drogi krajowe, a w Krynicy Morskiej znajduje się port wodny.
Opis oferty
Trimare to inwestycja zlokalizowana w jednej z najpiękniejszych miejscowości na Mierzei Wiślanej – Sztutowie. Miejsce idealnie wpisuje się w niepowtarzalny nadmorski klimat, a bezpośrednie sąsiedztwo z naturą gwarantuje spokój i daje możliwość udanego wypoczynku. Projekt obejmuje dziewięć 3-kondygnacyjnych budynków po 21 apartamentów o metrażach od 28 do 49 mkw. Dodatkową przestrzeń wybranych lokali będą tworzą słoneczne balkony. Centralne położenie Sztutowa sprawia, że w niedalekiej odległości znajdują się również liczne punkty usługowo-handlowe: sklepy, apteka, poczta, a nawet salon kosmetyczny. W okolicy można znaleźć również wiele atrakcji: słynny most, który zagrał w serialu „Czterej Pancerni i Pies”, rezerwat przyrody czy kolejkę wąskotorową. To wszystko sprawia, że Trimare stanowi idealne miejsce nie tylko na letni wypoczynek, ale także przez cały rok. Pozwala jednocześnie na swobodne korzystanie z rozwiniętej sieci usług.
Nowy 2-pokojowy apartament na sprzedaż o powierzchni 46,46 m² znajduje się w nowo budowanej inwestycji deweloperskiej Trimare w Sztutowie, ul. Mierzeja Park 24 (15.4 km od Gdańska).
Inwestycja jest realizowana przez Dekpol Deweloper Sp. z o.o.
Cała inwestycja składa się z 12 budynków, w których łącznie znajduje się 189 nowych apartamentów.
Na sprzedaż pozostaje 1 oferta o powierzchni 38 m².
W budynkach są 3 kondygnacje naziemne. Budynek nie posiada kondygnacji podziemnych.
Inwestycja Trimare została wybudowana i oddana do użytkowania w 1 kw. 2022 roku.
Nowy apartament o oznaczeniu 4.21 znajduje się na 2 piętrze i jest 1-poziomowy. Pomieszczenia mają od 260 do 280 centymetrów wysokości. W apartamencie znajdują się 2 pokoje.
Okna w apartamencie wychodzą na wschód.
Wschodnia orientacja zapewnia dostęp do łagodnego porannego światła, idealnego dla rozpoczęcia dnia pełnego energii. Wnętrza pozostają jasne, ale nieprzegrzane, co sprzyja utrzymaniu komfortowej temperatury. Przebywanie w pomieszczeniu z oknami na wschód inspiruje do działania i pozytywnie wpływa na poranny rytuał.
Dla przyszłych mieszkańców Trimare deweloper przewidział miejsca postojowe naziemne.
Dzięki temu przyszli właściciele nie będą musieli poszukiwać wolnej przestrzeni parkingowej.
Opis Inwestycji
Pow. dodatkowe
Trimare to inwestycja zlokalizowana w jednej z najpiękniejszych miejscowości na Mierzei Wiślanej – Sztutowie. Miejsce idealnie wpisuje się w niepowtarzalny nadmorski klimat, a bezpośrednie sąsiedztwo z naturą gwarantuje spokój i daje możliwość udanego wypoczynku.
Osiedle Trimare jest połączeniem wakacyjnego klimatu i nowoczesnych rozwiązań architektonicznych, które razem wpływają na komfort mieszkania w pobliżu trzech wód: morza, zalewu i rzeki.
Kameralne apartamenty wysokiej jakości w pobliżu morza i otoczeniu natury
Do nadmorskiej lokalizacji nawiązuje elewacja budynku przypominającą sieć rybacką. Efekt 3D na ścianie daje zaskakującą grę światła i cienia, która zmienia się w zależności od pory dnia.
Trimare to funkcjonalne mieszkania wkomponowane w naturalne otoczenie. Powierzchnia mieszkań wynosi od 28 do 49 mkw. Architekci osiedla zadbali o najdrobniejsze szczegóły. Układ pomieszczeń został zaprojektowany tak, aby mieszkania mogły być zaaranżowane na wiele sposobów. Ważnym aspektem była kameralność – dlatego powstało wyłącznie 9 budynków, gdzie drugie piętro jest tym najwyższym.
Apartament znajduje się w inwestycji Trimare, w której znajduje się w sprzedaży jeszcze 5 podobnych nowych apartamentów.





