Dom na sprzedaż 5 pokoi o powierzchni 129,3 m² numer 2
Inwestycja:
Domkove Widzew etap 2Deweloper:
Budomal Estate Sp. z o.o. Sp. k.
Inwestycja:
Domkove Widzew etap 2Deweloper:
Budomal Estate Sp. z o.o. Sp. k.Łódź, Widzew, Widzew-Wschód, ul. Mechaniczna 2/30
Łódź, Widzew, Widzew-Wschód, ul. Mechaniczna 2/30
Termin oddania
2 kw. 2027
Ilość pokoi
5 pokoi
Metraż
129,3 m²
Piętro
Parter
Powierzchnie dodatkowe
Balkon, Ogródek
Kuchnia
otwarta kuchnia
Wysokość pomieszczeń
od 260 do 280 cm wysokości
Ilość kondygnacji
2 poziomy
Oznaczenie oferty
2

Raport o deweloperze
Poznaj dewelopera bliżej! Pobierz raport, w którym znajdziesz kluczowe informacje o firmie, jej doświadczeniu, nagrodach oraz aktualnych i zrealizowanych inwestycjach.
Budynek i otoczenie
Miejsca postojowe | |
|---|---|
Standard wykończenia | standard deweloperski Ogrzewanie podłogowe |
Realizacja inwestycji | rozpoczęcie budowy w 1 kw. 2026 roku, planowane oddanie do użytkowania w 2 kw. 2027 roku |
Udogodnienia | plac zabaw, rowerownia |
Przyroda | w okolicy inwestycji znajduje się park |
Charakterystyka energetyczna nieruchomości | informacja u dewelopera |
Rezerwacja i finanse
Rodzaj własności | Odrębna własność z własnością gruntu |
|---|---|
Wysokość czynszu | informacja u dewelopera |
Warunki rezerwacji | Informacja u dewelopera |
Zabezpieczenie środków | Informacja u dewelopera |
Zdjęcia z budowy
Zobacz na jakim etapie budowy jest ta inwestycja
Lokalizacja inwestycji
Stacja kolejowa - Łódź Zarzew - 365 m
Przystanek Tramwajowy - 304 m
Przystanek Autobusowy - 208 m
Dojazd do centrum: pokaż
W pobliżu 1 km od tej inwestycji znajdują się:
3 kawiarnie i restauracje, 13 sklepów, 36 obiektów sportowych, 4 placówki medyczne, 15 placówek edukacyjnych, 29 placów zabaw
Przeczytaj więcej o lokalizacji
Widzew jest największą dzielnicą Łodzi i ma powierzchnię ok. 91 km², a liczba jego mieszkańców wynosi ok. 140 000. Gęstość zaludnienia jest niska, gdyż na obrzeżach Widzewa znajduje się sporo terenów zielonych – pól, lasów, nieużytków. Poza tym dominuje zabudowa przemysłowa i duże osiedla mieszkaniowe (złożone z bloków i wieżowców). Dzielnica leży na terenie dawnej wsi Widzew, która przez lata stopniowo była inkorporowana do granic miasta. Najbardziej uprzemysłowioną część wsi przyłączono do Łodzi już w 1906 roku, a kolejne wcielenia miały miejsce w 1915 i 1946 roku. Także dawna wieś Widzew jest w całości częścią Łodzi od zakończenia II wojny światowej, natomiast jako osobna dzielnica funkcjonuje od 1954 roku. Od tego czasu jej powierzchnia kilkukrotnie rozszerzała się o nowe tereny.
Opis oferty
Nowy 5-pokojowy dom na sprzedaż o powierzchni 129,3 m² znajduje się w nowo budowanej inwestycji deweloperskiej Domkove Widzew etap 2 na Widzewie-Wschód, ul. Mechaniczna 2/30 (4.3 km od centrum Łodzi).
Inwestycja jest realizowana przez Budomal Estate Sp. z o.o. Sp. k.
Cała inwestycja składa się z 13 nowych domów.
Inwestycja Domkove Widzew etap 2 jest w trakcie budowy z planowanym na 2 kw. 2027 roku terminem oddania do użytkowania.
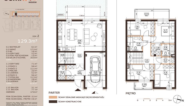
Nowy dom o oznaczeniu 2 , składa się z 2 kondygnacji bez poddasza, nie posiada podpiwniczenia. Wysokość pomieszczeń wynosi od 260 do 280 cm.
W domu numer 2 znajduje się się 5 pokoi.
Do domu przynależą balkon, ogródek o powierzchni 47,8 m².
Dla przyszłych mieszkańców Domkove Widzew etap 2 deweloper przewidział miejsca postojowe naziemne
Opis Inwestycji
Kameralny budynek
Tereny zielone
Pow. dodatkowe
Poznaj Domkove – nowe osiedle usytuowane w spokojnej części dzielnicy Widzew, które łączy w sobie cechy domów jednorodzinnych oraz zabudowy wielorodzinnej. To nietypowe rozwiązanie tworzy ciekawą, funkcjonalną i spójną wizualnie przestrzeń, w której będzie się dobrze mieszkać!
Projekt ze stylem, w odpowiedzi na potrzeby
Projekt osiedla powstał w odpowiedzi na potrzeby nowoczesnych mieszkańców, którzy poszukują równowagi między estetyką, funkcjonalnością i bliskością natury. Celem było stworzenie przestrzeni, która nie tylko spełni te oczekiwania, ale także nawiąże do najlepszych tradycji architektonicznych. Zaprojektowane w stylu modernistycznym, łączy prostotę i funkcjonalność z nowoczesnym designem.
Komfortowo, spokojnie i blisko centrum
Domkove to idealna przestrzeń dla osób szukających miejsca, które zapewni im spokój
i bezpieczeństwo, ale też umożliwi łatwe korzystanie z wielkomiejskiego stylu życia. Z jednej strony spokojne życie w zacisznej części Widzewa, z drugiej bliskość do centrum Łodzi, z którym osiedle jest bardzo dobrze skomunikowane. Odległość do wszystkich ważnych w codziennym funkcjonowaniu miejsc tj. sklepów, szkół, przychodni, czy terenów zielonych, to zaledwie kilka kroków.
Dom znajduje się w inwestycji Domkove Widzew etap 2, w której znajduje się w sprzedaży jeszcze 12 podobnych nowych domów.
Budomal Estate Sp. z o.o. Sp. k.
Strona internetowa inwestycjiAdres biura sprzedaży:
ul. B. Bartoka 24 lok. U8, ŁódźGodziny otwarcia biura sprzedaży:
- Poniedziałek: 09:00 - 17:00
- Wtorek: 09:00 - 17:00
- Środa: 09:00 - 17:00
- Czwartek: 09:00 - 17:00
- Piątek: 09:00 - 17:00





