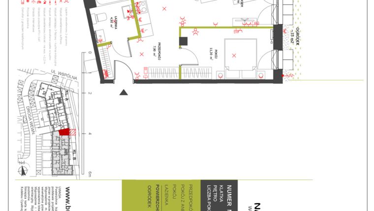
Mieszkanie na sprzedaż 2 pokoje o powierzchni 43,45 m² numer 70
Inwestycja:
Na WspólnejDeweloper:
BUD-RIM Development
Inwestycja:
Na WspólnejDeweloper:
BUD-RIM Developmentmazowieckie, grodziski, Wólka Grodziska, ul. Wspólna 5
mazowieckie, grodziski, Wólka Grodziska, ul. Wspólna 5
Promocje
Promocja
Wiosenna promocja: -700 zł/m² na wybrane mieszkania!
Skorzystaj z wiosennej promocji i kup wybrane mieszkania taniej nawet o 700 zł/m². Oferta obowiązuje przez ograniczony czas. Sprawdź lokale objęte promocją i wybierz swoje nowe miejsce już dziś.
Termin oddania
1 kw. 2027
Ilość pokoi
2 pokoje
Metraż
43,45 m²
Piętro
Parter
Strona świata
wschód
Powierzchnie dodatkowe
Ogródek
Kuchnia
otwarta kuchnia
Wysokość pomieszczeń
od 250 do 270 cm wysokości
Ilość poziomów
1 poziom
Oznaczenie oferty
70

Raport o deweloperze
Poznaj dewelopera bliżej! Pobierz raport, w którym znajdziesz kluczowe informacje o firmie, jej doświadczeniu, nagrodach oraz aktualnych i zrealizowanych inwestycjach.
Budynek i otoczenie
Miejsca postojowe | |
|---|---|
Komórki lokatorskie | dostępne |
Standard wykończenia | standard deweloperski Ogrzewanie kotłownia gazowa, pompy ciepła |
Realizacja inwestycji | rozpoczęcie budowy w 3 kw. 2024 roku, planowane oddanie do użytkowania w 1 kw. 2027 roku |
Udogodnienia | monitoring, usługi w budynku, winda, rowerownia, wózkarnia |
Przyroda | informacja u dewelopera |
Charakterystyka energetyczna nieruchomości |
|
Rezerwacja i finanse
Rodzaj własności | Odrębna własność z własnością gruntu |
|---|---|
Wysokość czynszu | informacja u dewelopera |
Warunki rezerwacji | Informacja u dewelopera |
Zabezpieczenie środków | Otwarty mieszkaniowy rachunek powierniczy |

Zdjęcia z budowy i widok 3D
Zobacz na jakim etapie budowy jest ta inwestycja
Lokalizacja inwestycji
Stacja kolejowa - Grodzisk Mazowiecki - 1969 m
Przystanek Autobusowy - 279 m
Dojazd do centrum Warszawy: pokaż
W pobliżu 1 km od tej inwestycji znajdują się:
1 sklep, 2 placówki edukacyjne
Przeczytaj więcej o lokalizacji
Powiat grodziski w województwie mazowieckim zajmuje powierzchnię ok. 367 km2 i położony jest w odległości 30 km od Warszawy. W skład powiatu wchodzą miasta: Grodzisk Mazowiecki, Milanówek i Podkowa Leśna oraz gminy wiejskie: Baranów, Jaktorów i Żabia Wola. Milanówek oraz Podkowa Leśna z rezerwatem Parów Sójek, to miasta-ogrody słynące z walorów krajobrazowych oraz zabytkowej architektury dworsko-pałacowej. Grodzisk Mazowiecki jest siedzibą powiatu i dawanym uzdrowiskiem, toteż dominuje tu niska zabudowa otoczona parkami. Wsie Baranów i Jaktorów to obszary rolnicze z domami jednorodzinnymi, zaś w Żabiej Woli znajdują się kompleksy leśne z rezerwatami: Skulski Las i Uroczysko Skuły Zachód. Atrakcję powiatu stanowią tereny sportowo-rekreacyjne, m.in. korty tenisowe, tereny do jazdy konnej i zbiorniki do wędkowania, np. Stawy Walczewskiego czy Zalew Grzymek. Dojazd do stolicy umożliwiają linie kolejowe: Warszawa – Skierniewice i Warszawska Kolej Dojazdowa, a także droga wojewódzka nr 719.
Opis oferty
Nowe 2-pokojowe mieszkanie na sprzedaż o powierzchni 43,45 m² znajduje się w nowo budowanej inwestycji deweloperskiej Na Wspólnej w Wólce Grodziskiej, ul. Wspólna 5 (19.7 km od Warszawy).
Inwestycja jest realizowana przez BUD-RIM Development.
Cała inwestycja składa się z 2 budynków, w których łącznie znajduje się 127 nowych mieszkań.
Na sprzedaż pozostaje 59 ofert o powierzchni od 37 do 62 m².
W budynkach jest 6 kondygnacji naziemnych oraz 1 kondygnacja podziemna.
Inwestycja Na Wspólnej jest w trakcie budowy z planowanym na 1 kw. 2027 roku terminem oddania do użytkowania.
Nowe mieszkanie o oznaczeniu 70 znajduje się na parterze i jest 1-poziomowe. Pomieszczenia mają od 250 do 270 centymetrów wysokości. W mieszkaniu znajdują się 2 pokoje.
Okna w mieszkaniu wychodzą na wschód.
Wschodnia orientacja zapewnia dostęp do łagodnego porannego światła, idealnego dla rozpoczęcia dnia pełnego energii. Wnętrza pozostają jasne, ale nieprzegrzane, co sprzyja utrzymaniu komfortowej temperatury. Przebywanie w pomieszczeniu z oknami na wschód inspiruje do działania i pozytywnie wpływa na poranny rytuał.
Dla przyszłych mieszkańców Na Wspólnej deweloper przewidział miejsca postojowe podziemne.
Dzięki temu przyszli właściciele nie będą musieli poszukiwać wolnej przestrzeni parkingowej. Dodatkowo, miejsce postojowe w garażu podziemnym zabezpiecza przed niekorzystnymi warunkami atmosferycznymi.
Opis Inwestycji
Pow. dodatkowe
NA WSPÓLNEJ WÓLKA GRODZISKA
Poznaj naszą inwestycję NA WSPÓLNEJ zlokalizowaną w Wólce Grodziskiej przy Grodzisku Mazowieckim. To miejsce, które wyróżnia estetyczny i nowoczesny design, funkcjonalne rozkłady mieszkań, a także spokojna okolica przy jednoczesnej bliskości miasta.
Inwestycja składa się z dwóch pięciopiętrowych budynków, w których znajdą się zarówno mieszkania jak i lokale usługowe. Zostały one zaprojektowane z dbałością o walory estetyczne jak i jakościowe. W ofercie znajdują się mieszkania o różnorodnych metrażach od 34 do 77m2. Przemyślane rozkłady mieszkań zapewniają maksymalne wykorzystanie przestrzeni i komfort codziennego użytkowania. Elewacje wyróżniają się nowoczesnym designem i eleganckimi detalami. Dla wygody mieszkańców przewidziane są hale garażowe oraz zewnętrzne miejsca postojowe, a także komórki i boksy lokatorskie.
Biało-szara elewacja wyróżnia się klasycznym i ponadczasowym designem, zaś czarne i szklane balustrady balkonowe nadają nowoczesności i elegancji. Duże okna, balkony, aranżacja zieleni i elementów małej architektury pozwolą Ci zatrzymać się na chwilę i złapać oddech od codzienności. Z kolei plac zabaw zapewni atrakcję najmłodszym mieszkańcom.
Zakochaj się w okolicy! Spokój i cisza pozwoli na odpoczynek od miejskiego zgiełku. Przy czym dojazd na stację benzynową i do supermarketów zajmuje zaledwie kilka minut. Jednocześnie przyszli mieszkańcy cieszyć się będą sąsiedztwem rozwijającego się miasta – Grodziska Mazowieckiego, który oferuje wszystko, co potrzebne. 7 minut – tyle potrzeba, aby dojechać na stację kolejową – a stamtąd już bezpośrednim pociągiem dojedziemy do Warszawy czy Łodzi.
Twoja historia zaczyna się tutaj – zamieszkaj Na Wspólnej!
1 ETAP: 1 BUDYNEK KL A,B
Mieszkanie znajduje się w inwestycji Na Wspólnej, w której znajduje się w sprzedaży jeszcze 20 podobnych nowych mieszkań.
BUD-RIM Development
Strona internetowa inwestycjiAdres biura sprzedaży:
Wółka Grodziska k. Grodziska Mazowieckiego, ul. Wspólna 5Godziny otwarcia biura sprzedaży:
- Wtorek: 13:00 - 17:00
- Czwartek: 13:00 - 17:00





