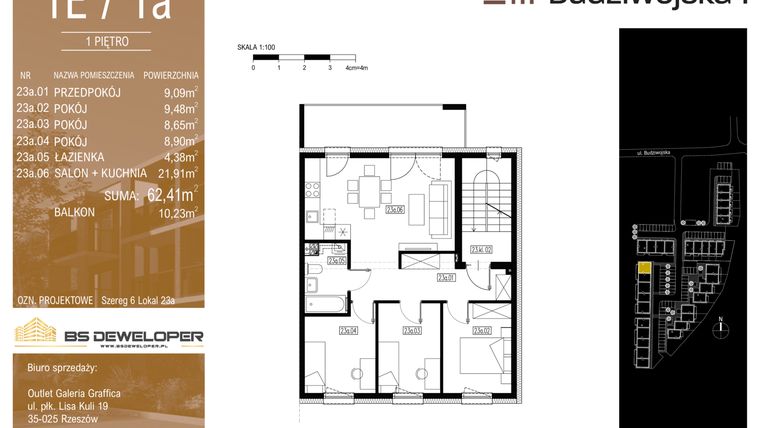
Mieszkanie na sprzedaż 4 pokoje o powierzchni 62,41 m² numer 1E/1a
Inwestycja:
Budziwojska 3Deweloper:
BS Deweloper Sp. z o. o.
Inwestycja:
Budziwojska 3Deweloper:
BS Deweloper Sp. z o. o.Rzeszów, Budziwój, ul. Budziwojska 3
Rzeszów, Budziwój, ul. Budziwojska 3
Termin oddania
Gotowe
Ilość pokoi
4 pokoje
Metraż
62,41 m²
Piętro
1 piętro
Kuchnia
otwarta kuchnia
Wysokość pomieszczeń
od 260 do 280 cm wysokości
Ilość poziomów
1 poziom
Oznaczenie oferty
1E/1a

Raport o deweloperze
Poznaj dewelopera bliżej! Pobierz raport, w którym znajdziesz kluczowe informacje o firmie, jej doświadczeniu, nagrodach oraz aktualnych i zrealizowanych inwestycjach.
Budynek i otoczenie
Miejsca postojowe | |
|---|---|
Standard wykończenia | standard deweloperski |
Realizacja inwestycji | rozpoczęcie budowy w 4 kw. 2023 roku, inwestycja została oddana do użytkowania w 4 kw. 2025 roku |
Udogodnienia | informacja u dewelopera |
Przyroda | w okolicy inwestycji znajduje się park |
Charakterystyka energetyczna nieruchomości |
|
Rezerwacja i finanse
Rodzaj własności | Odrębna własność z własnością gruntu |
|---|---|
Wysokość czynszu | informacja u dewelopera |
Warunki rezerwacji | Informacja u dewelopera |
Zabezpieczenie środków | informacja u dewelopera |
Zdjęcia z budowy
Zobacz na jakim etapie budowy jest ta inwestycja
Lokalizacja inwestycji
Przystanek Autobusowy - 84 m
Dojazd do centrum: pokaż
W pobliżu 1 km od tej inwestycji znajdują się:
4 kawiarnie i restauracje, 9 sklepów, 10 obiektów sportowych, 3 placówki medyczne, 12 placówek edukacyjnych, 3 place zabaw
Przeczytaj więcej o lokalizacji
Rzeszów to miasto w południowo-wschodniej Polsce będące stolica województwa podkarpackiego. Położony jest na Podgórzu Rzeszowskim. W skład Rzeszowa wchodzi kilkadziesiąt osiedli. Zabudowa Śródmieścia Rzeszowa pochodzi w większości z XIX wieku, pozostałe części miasta charakteryzują się przeważnie zabudową typową dla osiedli miejskich – są to bloki oraz osiedla domów jednorodzinnych czy szeregowców. Do najważniejszych zabytków Rzeszowa należy gotycki kościół farny oraz zamek z czasów Lubomirskich. Reprezentacyjną częścią miasta jest deptak 3 Maja. W Rzeszowie jest też kilka wieżowców – w 2014 roku oddano do użytku 18-piętrowy apartamentowiec Capital Towers, a w 2015 r. SkyRes Warszawska, 14-piętrowy biurowiec wraz z zapleczem mieszkalnym. W obrębie Rzeszowa znajduje się także rezerwat przyrody Lisia Góra położony nad Zbiornikiem Rzeszowskim. W mieście znajduje się również wiele ważnych obiektów sportowych oraz kulturalnych, m.in. Filharmonia Podkarpacka czy Hala Podpromie.
Opis oferty
Nowe 4-pokojowe mieszkanie na sprzedaż o powierzchni 62,41 m² znajduje się w nowo budowanej inwestycji deweloperskiej Budziwojska 3 na Budziwoju, ul. Budziwojska 3 (8 km od centrum Rzeszowa).
Inwestycja jest realizowana przez BS Deweloper Sp. z o. o.
Cała inwestycja składa się z 7 budynków, w których łącznie znajduje się 56 nowych mieszkań.
Na sprzedaż pozostają 23 oferty o powierzchni od 48 do 90 m².
W budynkach są 3 kondygnacje naziemne. Budynek nie posiada kondygnacji podziemnych.
Inwestycja Budziwojska 3 została wybudowana i oddana do użytkowania w 4 kw. 2025 roku.
Nowe mieszkanie o oznaczeniu 1E/1a znajduje się na 1 piętrze i jest 1-poziomowe. Pomieszczenia mają od 260 do 280 centymetrów wysokości. W mieszkaniu znajdują się 4 pokoje.
Dla przyszłych mieszkańców Budziwojska 3 deweloper przewidział miejsca postojowe naziemne.
Dzięki temu przyszli właściciele nie będą musieli poszukiwać wolnej przestrzeni parkingowej.
Opis Inwestycji
Okazyjna cena
Budziwojska 3 dzięki doskonałemu położeniu w sąsiedztwie zespołu pałacowo parkowego w Tyczynie, łącząc w sobie spokojną zieloną okolicę z wygodną komunikacją z centrum miasta. Na terenie pałacowego kompleksu znajduje się mnóstwo zabytkowych obiektów, spacery uprzyjemni piękna fontanna, ogród różany, boiska sportowe, ścieżki dydaktyczno- przyrodnicze, malownicze alejki z ławeczkami pośród starodrzewia, a już wkrótce odpoczynek umili piękna nuta muzyczna dobiegająca z nowego amfiteatru. Idealne miejsce wypoczynku, aby odetchnąć od codzienności i oddać się w ręce szczęścia pośród natury.
Osiedle składa się tylko z 56 mieszkań z czego 7 to indywidualne szeregówki. Zaprojektowaliśmy mieszkania o różnym metrażu, tak aby każdy przyszły lokator mógł znaleźć powierzchnię dogodną dla siebie. W ofercie znajdują się lokale mieszkalne 2, 3 lub 4 pokojowe, w metrażach od 41 m2 do 90 m2. Mieszkania są ustawne, z wydzielonymi przestrzeniami na zabudowy meblowe, a także nasłonecznione dzięki zastosowaniu dużych przeszkleń okiennych z bezpośrednim wyjściem na przestronny balkon czy teren zielony. Dla niektórych budynków na poziomie 0, zaprojektowano wielostanowiskowe zadaszone miejsca parkingowe rodzinne co na pewno wpłynie na komfort mieszkania. Na terenie znajduje się 112 miejsc parkingowych co ułatwi pozostawienie własnego samochodu bądź samochodu gości mieszkańców. Wszystkie tereny zielone, oraz ogrody deszczowe zostały zaprojektowane z dużą starannością, aby o każdej porze roku były ozdobą osiedla.
ATUTY INWESTYCJI:
- łatwy i szybki dojazd do centrum miasta
- kameralna i niska zabudowa, wysoki standard materiałów
- sąsiedztwo parków, terenów rekreacyjnych i sportowych
- komfortowe metraże od 41 m2 do 90 m2
- balkony, tarasy lub ogródki w każdym mieszkaniu
- 112 miejsc postojowych
- funkcjonalne układy mieszkań
- stojaki rowerowe
- bliskość szkół, przedszkoli, żłobków
- starannie zaprojektowana zieleń
- ogrzewanie podłogowe w łazience
- instalacja klimatyzacji/ pompy ciepła
Mieszkanie znajduje się w inwestycji Budziwojska 3, w której znajduje się w sprzedaży jeszcze 5 podobnych nowych mieszkań.
BS Deweloper Sp. z o. o.
Strona internetowa inwestycjiAdres biura sprzedaży:
ul. płk. Lisa Kuli 19, 35-025 RzeszówGodziny otwarcia biura sprzedaży:
- Poniedziałek: 09:00 - 17:00
- Wtorek: 09:00 - 17:00
- Środa: 09:00 - 17:00
- Czwartek: 09:00 - 17:00
- Piątek: 09:00 - 17:00





