Mieszkanie na sprzedaż 2 pokoje o powierzchni 35,05 m² numer C13
Promocja
Inwestycja:
Wzgórze GustawaDeweloper:
Awim Grupa Inwestycyjna
Inwestycja:
Wzgórze GustawaDeweloper:
Awim Grupa InwestycyjnaKraków, Wzgórza Krzesławickie, ul. Gustawa Morcinka
Kraków, Wzgórza Krzesławickie, ul. Gustawa Morcinka
Termin oddania
4 kw. 2026
Ilość pokoi
2 pokoje
Metraż
35,05 m²
Piętro
1 piętro
Strona świata
wschód
Powierzchnie dodatkowe
Balkon
Kuchnia
otwarta kuchnia
Wysokość pomieszczeń
od 260 do 280 cm wysokości
Ilość poziomów
1 poziom
Oznaczenie oferty
C13

Raport o deweloperze
Poznaj dewelopera bliżej! Pobierz raport, w którym znajdziesz kluczowe informacje o firmie, jej doświadczeniu, nagrodach oraz aktualnych i zrealizowanych inwestycjach.
Budynek i otoczenie
Miejsca postojowe | |
|---|---|
Komórki lokatorskie | dostępne |
Standard wykończenia | standard deweloperski Ogrzewanie miejskie |
Realizacja inwestycji | rozpoczęcie budowy w 4 kw. 2024 roku, planowane oddanie do użytkowania w 4 kw. 2026 roku |
Udogodnienia | plac zabaw, winda, rowerownia, wózkarnia |
Przyroda | w okolicy inwestycji znajduje się jezioro |
Charakterystyka energetyczna nieruchomości | informacja u dewelopera |
Rezerwacja i finanse
Rodzaj własności | Odrębna własność z własnością gruntu |
|---|---|
Wysokość czynszu | informacja u dewelopera |
Warunki rezerwacji | Informacja u dewelopera |
Zabezpieczenie środków | Otwarty mieszkaniowy rachunek powierniczy |
Zdjęcia z budowy
Zobacz na jakim etapie budowy jest ta inwestycja
Lokalizacja inwestycji
Stacja kolejowa - Kraków Lubocza - 1812 m
Przystanek Tramwajowy - 1252 m
Przystanek Autobusowy - 232 m
Dojazd do centrum: pokaż
W pobliżu 1 km od tej inwestycji znajdują się:
1 kawiarnia lub restauracja, 9 sklepów, 11 obiektów sportowych, 3 placówki medyczne, 10 placówek edukacyjnych, 6 placów zabaw
Przeczytaj więcej o lokalizacji
Dzielnica XVII (Wzgórza Krzesławickie) ze względu na rzeźbę terenu góruje nad pozostałą częścią Krakowa. Władze miasta wyodrębniły Dzielnicę XVII w 1991 roku. W ramach poprzedniego podziału administracyjnego Krakowa okolice Wzgórz Krzesławickich wchodziły w skład rozległej dzielnicy Nowa Huta. Opisywany teren podobnie jak Mistrzejowice i Bieńczyce miał służyć jako zaplecze dla nowohuckiego kombinatu. Dlatego już na początku lat 60 – tych rozpoczęto budowę pierwszego osiedla mieszkaniowego (Os. Na Wzgórzach). Do końca lat 80 – tych na opisywanym terenie powstało jeszcze jedno osiedle wielkopłytowe (Os. Na Stoku). Obecnie w Dzielnicy XVII coraz częściej lokalizuje się nowe inwestycje mieszkaniowe. Są one przeznaczone dla osób, które mogą zaakceptować sporą odległość do centralnej części Krakowa.
Opis oferty
Nowe 2-pokojowe mieszkanie na sprzedaż o powierzchni 35,05 m² znajduje się w nowo budowanej inwestycji deweloperskiej Wzgórze Gustawa na Wzgórzach Krzesławickich, ul. Gustawa Morcinka (9.2 km od centrum Krakowa).
Inwestycja jest realizowana przez Awim Grupa Inwestycyjna.
Cała inwestycja składa się z 3 budynków, w których łącznie znajduje się 81 nowych mieszkań.
Na sprzedaż pozostaje 69 ofert o powierzchni od 35 do 78 m².
W budynkach są 4 kondygnacje naziemne oraz 1 kondygnacja podziemna.
Inwestycja Wzgórze Gustawa jest w trakcie budowy z planowanym na 4 kw. 2026 roku terminem oddania do użytkowania.
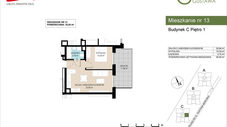
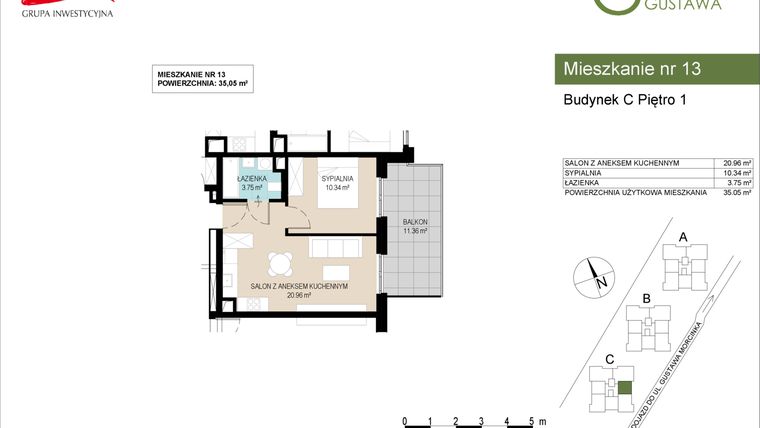
Nowe mieszkanie o oznaczeniu C13 znajduje się na 1 piętrze i jest 1-poziomowe. Pomieszczenia mają od 260 do 280 centymetrów wysokości. W mieszkaniu znajdują się 2 pokoje.
Okna w mieszkaniu wychodzą na wschód.
Wschodnia orientacja zapewnia dostęp do łagodnego porannego światła, idealnego dla rozpoczęcia dnia pełnego energii. Wnętrza pozostają jasne, ale nieprzegrzane, co sprzyja utrzymaniu komfortowej temperatury. Przebywanie w pomieszczeniu z oknami na wschód inspiruje do działania i pozytywnie wpływa na poranny rytuał.
Dla przyszłych mieszkańców Wzgórze Gustawa deweloper przewidział miejsca postojowe podziemne, miejsca postojowe naziemne.
Dzięki temu przyszli właściciele nie będą musieli poszukiwać wolnej przestrzeni parkingowej. Dodatkowo, miejsce postojowe w garażu podziemnym zabezpiecza przed niekorzystnymi warunkami atmosferycznymi.
Opis Inwestycji
Okazyjna cena
Pow. dodatkowe
Miejsce stworzone dla Ciebie
Inwestycja "Wzgórze Gustawa" to wyjątkowy projekt deweloperski, który łączy nowoczesność z urokiem natury. Nasze osiedle położone jest w malowniczym miejscu, oferującym przepiękne widoki i spokój, który pozwala odpocząć od zgiełku miasta. To idealne miejsce dla osób szukających komfortu, bezpieczeństwa oraz bliskości natury.
Jednym z największych atutów "Wzgórza Gustawa" jest czyste powietrze – położenie na wzgórzu gwarantuje doskonałą cyrkulację i brak zanieczyszczeń typowych dla terenów miejskich. To miejsce, w którym można oddychać pełną piersią, ciesząc się zdrowiem i harmonią. Osiedle oferuje luksus życia blisko natury, bez konieczności rezygnacji z wygód miejskiego życia.
Mieszkanie znajduje się w inwestycji Wzgórze Gustawa, w której znajduje się w sprzedaży jeszcze 25 podobnych nowych mieszkań.
Awim Grupa Inwestycyjna
Strona internetowa inwestycjiAdres biura sprzedaży:
Grunwaldzka 28 31-524 KrakówGodziny otwarcia biura sprzedaży:
- Poniedziałek: 09:00 - 17:00
- Wtorek: 09:00 - 17:00
- Środa: 09:00 - 17:00
- Czwartek: 09:00 - 17:00
- Piątek: 09:00 - 17:00





