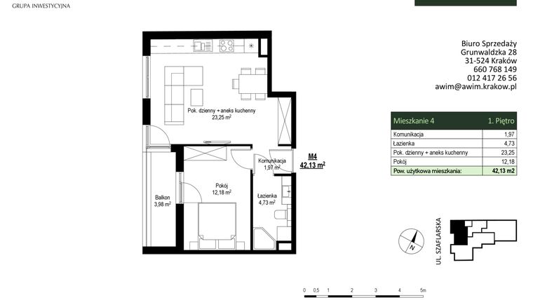
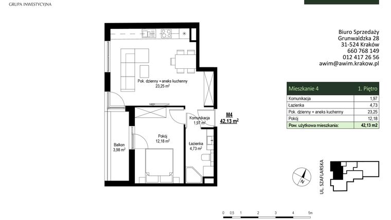
Mieszkanie na sprzedaż 2 pokoje o powierzchni 42,13 m² numer M4
Inwestycja:
Szaflarska 9Deweloper:
Awim Grupa Inwestycyjna
Inwestycja:
Szaflarska 9Deweloper:
Awim Grupa InwestycyjnaKraków, Podgórze, ul. Szaflarska 9
Kraków, Podgórze, ul. Szaflarska 9
Termin oddania
4 kw. 2026
Ilość pokoi
2 pokoje
Metraż
42,13 m²
Piętro
1 piętro
Strona świata
zachód
Kuchnia
otwarta kuchnia
Wysokość pomieszczeń
od 260 do 280 cm wysokości
Ilość poziomów
1 poziom
Oznaczenie oferty
M4

Raport o deweloperze
Poznaj dewelopera bliżej! Pobierz raport, w którym znajdziesz kluczowe informacje o firmie, jej doświadczeniu, nagrodach oraz aktualnych i zrealizowanych inwestycjach.
Budynek i otoczenie
Miejsca postojowe | |
|---|---|
Komórki lokatorskie | dostępne |
Standard wykończenia | standard deweloperski Ogrzewanie podłogowe (kocioł dwufunkcyjny gazowy) |
Realizacja inwestycji | rozpoczęcie budowy w 4 kw. 2024 roku, planowane oddanie do użytkowania w 4 kw. 2026 roku |
Udogodnienia | klimatyzacja, usługi w budynku, winda, rekuperacja |
Przyroda | w okolicy inwestycji znajduje się park |
Charakterystyka energetyczna nieruchomości | informacja u dewelopera |
Rezerwacja i finanse
Rodzaj własności | Odrębna własność z własnością gruntu |
|---|---|
Wysokość czynszu | informacja u dewelopera |
Warunki rezerwacji | informacje w biurze sprzedaży |
Zabezpieczenie środków | Otwarty mieszkaniowy rachunek powierniczy |
Zdjęcia z budowy
Zobacz na jakim etapie budowy jest ta inwestycja
Lokalizacja inwestycji
Stacja kolejowa - Kraków Bonarka - 1370 m
Przystanek Tramwajowy - 381 m
Przystanek Autobusowy - 292 m
Dojazd do centrum: pokaż
W pobliżu 1 km od tej inwestycji znajdują się:
122 kawiarnie i restauracje, 83 sklepy, 43 obiekty sportowe, 28 placówek medycznych, 55 placówek edukacyjnych, 22 place zabaw
Przeczytaj więcej o lokalizacji
Dzielnica Podgórze znajduje się w centrum Krakowa i jest zamieszkiwana przez 34 045 osób. Dzielnicę można podzielić na 3 podregiony, z których każdy cechuje się odmiennym typem zabudowy. Stare Podgórze pełne jest zabytków i budynków wzniesionych w XIX i na początku XXw., w Płaszowie dominują czterokondygnacyjne budynki z lat 90-tych XXw. oraz domy jednorodzinne, natomiast na Rybitwach domy jednorodzinne mieszają się z nieruchomościami przemysłowymi. Dzielnica rozwija się w szybkim tempie i może pochwalić się dobrze rozbudowaną infrastrukturą, czego przykładem jest niemal 20 szkół, 2 galerie, 2 muzea, Kino Teatr „Wrzos”, domy kultury. Odpocząć można tu na Plantach im. F. Nowackiego lub w Parku im. W. Bednarskiego. Dodatkowo Podgórze ma dobre połączenia komunikacyjne z pozostałymi dzielnicami Krakowa, a dojazdy ułatwiają przechodzące przez dzielnicę drogi: krajowa nr 7 i wojewódzka nr 776.
Opis oferty
Nowe 2-pokojowe mieszkanie na sprzedaż o powierzchni 42,13 m² znajduje się w nowo budowanej inwestycji deweloperskiej Szaflarska 9 na Podgórzu, ul. Szaflarska 9 (2.7 km od centrum Krakowa).
Inwestycja jest realizowana przez Awim Grupa Inwestycyjna.
Cała inwestycja składa się z 1 budynku, w którym łącznie znajduje się 13 nowych mieszkań.
Na sprzedaż pozostaje 10 ofert o powierzchni od 42 do 107 m².
W budynku jest 5 kondygnacji naziemnych oraz 1 kondygnacja podziemna.
Inwestycja Szaflarska 9 jest w trakcie budowy z planowanym na 4 kw. 2026 roku terminem oddania do użytkowania.
Nowe mieszkanie o oznaczeniu M4 znajduje się na 1 piętrze i jest 1-poziomowe. Pomieszczenia mają od 260 do 280 centymetrów wysokości. W mieszkaniu znajdują się 2 pokoje.
Okna w mieszkaniu wychodzą na zachód.
Zachodnia ekspozycja to gwarancja intensywnego popołudniowego światła, które nadaje wnętrzom przytulności i ciepła. Idealne dla miłośników słonecznych wieczorów, którzy pragną cieszyć się pięknymi zachodami słońca we własnym domu. Zachodnie światło podkreśla kolory i faktury w aranżacji wnętrz, tworząc atmosferę sprzyjającą relaksowi po długim dniu.
Dla przyszłych mieszkańców Szaflarska 9 deweloper przewidział miejsca postojowe podziemne.
Dzięki temu przyszli właściciele nie będą musieli poszukiwać wolnej przestrzeni parkingowej. Dodatkowo, miejsce postojowe w garażu podziemnym zabezpiecza przed niekorzystnymi warunkami atmosferycznymi.
Opis Inwestycji
Kameralny budynek
Tereny zielone
Prestiżowa Inwestycja Mieszkaniowa przy ul. Szaflarskiej 9, Kraków - Stare Podgórze
Kameralna Inwestycja zlokalizowana w sercu Starego Podgórza, przy ul. Szaflarskiej 9 w Krakowie. To wyjątkowe miejsce, które łączy w sobie prestiżową lokalizację z najwyższym standardem wykończenia.
Nasza inwestycja obejmuje 12 przestronnych lokali mieszkalnych oraz 1 lokal usługowy.
Dla wygody mieszkańców przewidzieliśmy:
• Miejsca postojowe w garażu podziemnym – bezpieczne i wygodne rozwiązanie dla Twojego samochodu.
• Komórki lokatorskie – dodatkowa przestrzeń do przechowywania.
Każdy detal został starannie zaplanowany, aby zapewnić najwyższy komfort życia:
• Wysoki standard wykończenia klatek schodowych – eleganckie i nowoczesne wnętrza, które zachwycą Cię od pierwszego kroku.
• Klimatyzacja w salonie i sypialniach – idealne warunki do odpoczynku i relaksu przez cały rok.
• Ogrzewanie podłogowe w każdym pomieszczeniu – ciepło i bezcenny komfort na wyciągnięcie ręki.
• System rekuperacji w mieszkaniach – nowoczesne rozwiązanie, które zapewni świeże powietrze i oszczędność energii.
Wyjątkowa Lokalizacja
Stare Podgórze to jedna z najbardziej pożądanych dzielnic Krakowa. Bliskość centrum miasta, doskonała komunikacja oraz liczne tereny zielone sprawiają, że jest to idealne miejsce do życia. W pobliżu znajdują się również szkoły, przedszkola, sklepy oraz restauracje, co dodatkowo podnosi atrakcyjność tej lokalizacji.
Mieszkanie znajduje się w inwestycji Szaflarska 9, w której znajdują się w sprzedaży jeszcze 2 podobne nowe mieszkania.
Awim Grupa Inwestycyjna
Strona internetowa inwestycjiAdres biura sprzedaży:
Grunwaldzka 28 31-524 KrakówGodziny otwarcia biura sprzedaży:
- Poniedziałek: 09:00 - 17:00
- Wtorek: 09:00 - 17:00
- Środa: 09:00 - 17:00
- Czwartek: 09:00 - 17:00
- Piątek: 09:00 - 17:00





