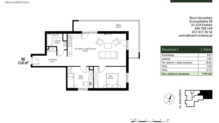
Mieszkanie na sprzedaż 3 pokoje o powierzchni 71,01 m² numer M2
Inwestycja:
Szaflarska 9Deweloper:
Awim Grupa Inwestycyjna
Inwestycja:
Szaflarska 9Deweloper:
Awim Grupa InwestycyjnaKraków, Podgórze, ul. Szaflarska 9
Kraków, Podgórze, ul. Szaflarska 9
Termin oddania
4 kw. 2026
Ilość pokoi
3 pokoje
Metraż
71,01 m²
Piętro
1 piętro
Strona świata
wschód, północ, południe
Kuchnia
otwarta kuchnia
Wysokość pomieszczeń
od 260 do 280 cm wysokości
Ilość poziomów
1 poziom
Oznaczenie oferty
M2

Raport o deweloperze
Poznaj dewelopera bliżej! Pobierz raport, w którym znajdziesz kluczowe informacje o firmie, jej doświadczeniu, nagrodach oraz aktualnych i zrealizowanych inwestycjach.
Budynek i otoczenie
Miejsca postojowe | |
|---|---|
Komórki lokatorskie | dostępne |
Standard wykończenia | standard deweloperski Ogrzewanie podłogowe (kocioł dwufunkcyjny gazowy) |
Realizacja inwestycji | rozpoczęcie budowy w 4 kw. 2024 roku, planowane oddanie do użytkowania w 4 kw. 2026 roku |
Udogodnienia | klimatyzacja, usługi w budynku, winda, rekuperacja |
Przyroda | w okolicy inwestycji znajduje się park |
Charakterystyka energetyczna nieruchomości | informacja u dewelopera |
Rezerwacja i finanse
Rodzaj własności | Odrębna własność z własnością gruntu |
|---|---|
Wysokość czynszu | informacja u dewelopera |
Warunki rezerwacji | informacje w biurze sprzedaży |
Zabezpieczenie środków | Otwarty mieszkaniowy rachunek powierniczy |
Zdjęcia z budowy
Zobacz na jakim etapie budowy jest ta inwestycja
Lokalizacja inwestycji
Stacja kolejowa - Kraków Bonarka - 1370 m
Przystanek Tramwajowy - 381 m
Przystanek Autobusowy - 292 m
Dojazd do centrum: pokaż
W pobliżu 1 km od tej inwestycji znajdują się:
122 kawiarnie i restauracje, 83 sklepy, 43 obiekty sportowe, 28 placówek medycznych, 55 placówek edukacyjnych, 22 place zabaw
Przeczytaj więcej o lokalizacji
Dzielnica Podgórze znajduje się w centrum Krakowa i jest zamieszkiwana przez 34 045 osób. Dzielnicę można podzielić na 3 podregiony, z których każdy cechuje się odmiennym typem zabudowy. Stare Podgórze pełne jest zabytków i budynków wzniesionych w XIX i na początku XXw., w Płaszowie dominują czterokondygnacyjne budynki z lat 90-tych XXw. oraz domy jednorodzinne, natomiast na Rybitwach domy jednorodzinne mieszają się z nieruchomościami przemysłowymi. Dzielnica rozwija się w szybkim tempie i może pochwalić się dobrze rozbudowaną infrastrukturą, czego przykładem jest niemal 20 szkół, 2 galerie, 2 muzea, Kino Teatr „Wrzos”, domy kultury. Odpocząć można tu na Plantach im. F. Nowackiego lub w Parku im. W. Bednarskiego. Dodatkowo Podgórze ma dobre połączenia komunikacyjne z pozostałymi dzielnicami Krakowa, a dojazdy ułatwiają przechodzące przez dzielnicę drogi: krajowa nr 7 i wojewódzka nr 776.
Opis oferty
Nowe 3-pokojowe mieszkanie na sprzedaż o powierzchni 71,01 m² znajduje się w nowo budowanej inwestycji deweloperskiej Szaflarska 9 na Podgórzu, ul. Szaflarska 9 (2.7 km od centrum Krakowa).
Inwestycja jest realizowana przez Awim Grupa Inwestycyjna.
Cała inwestycja składa się z 1 budynku, w którym łącznie znajduje się 13 nowych mieszkań.
Na sprzedaż pozostaje 10 ofert o powierzchni od 42 do 107 m².
W budynku jest 5 kondygnacji naziemnych oraz 1 kondygnacja podziemna.
Inwestycja Szaflarska 9 jest w trakcie budowy z planowanym na 4 kw. 2026 roku terminem oddania do użytkowania.
Nowe mieszkanie o oznaczeniu M2 znajduje się na 1 piętrze i jest 1-poziomowe. Pomieszczenia mają od 260 do 280 centymetrów wysokości. W mieszkaniu znajdują się 3 pokoje.
Okna w mieszkaniu wychodzą na wschód, północ, południe.
Północna ekspozycja to idealny wybór dla osób ceniących przytulne i klimatyczne wnętrza. Delikatne, rozproszone światło sprzyja harmonii i stwarza doskonałe warunki do relaksu lub pracy. Okna na północ zapewnią równomierne oświetlenie przez cały dzień.
Okna wychodzące na południe gwarantują maksymalną ilość naturalnego światła, co czyni wnętrza jasnymi i ciepłymi. Dodatkowo południowa ekspozycja pomaga obniżyć koszty ogrzewania w zimie. Okna na południe są idealne dla osób pragnących cieszyć się jasnym otoczeniem, które sprzyja dobremu samopoczuciu oraz pozytywnej energii.
Wschodnia orientacja zapewnia dostęp do łagodnego porannego światła, idealnego dla rozpoczęcia dnia pełnego energii. Wnętrza pozostają jasne, ale nieprzegrzane, co sprzyja utrzymaniu komfortowej temperatury. Przebywanie w pomieszczeniu z oknami na wschód inspiruje do działania i pozytywnie wpływa na poranny rytuał.
Dla przyszłych mieszkańców Szaflarska 9 deweloper przewidział miejsca postojowe podziemne.
Dzięki temu przyszli właściciele nie będą musieli poszukiwać wolnej przestrzeni parkingowej. Dodatkowo, miejsce postojowe w garażu podziemnym zabezpiecza przed niekorzystnymi warunkami atmosferycznymi.
Opis Inwestycji
Kameralny budynek
Tereny zielone
Prestiżowa Inwestycja Mieszkaniowa przy ul. Szaflarskiej 9, Kraków - Stare Podgórze
Kameralna Inwestycja zlokalizowana w sercu Starego Podgórza, przy ul. Szaflarskiej 9 w Krakowie. To wyjątkowe miejsce, które łączy w sobie prestiżową lokalizację z najwyższym standardem wykończenia.
Nasza inwestycja obejmuje 12 przestronnych lokali mieszkalnych oraz 1 lokal usługowy.
Dla wygody mieszkańców przewidzieliśmy:
• Miejsca postojowe w garażu podziemnym – bezpieczne i wygodne rozwiązanie dla Twojego samochodu.
• Komórki lokatorskie – dodatkowa przestrzeń do przechowywania.
Każdy detal został starannie zaplanowany, aby zapewnić najwyższy komfort życia:
• Wysoki standard wykończenia klatek schodowych – eleganckie i nowoczesne wnętrza, które zachwycą Cię od pierwszego kroku.
• Klimatyzacja w salonie i sypialniach – idealne warunki do odpoczynku i relaksu przez cały rok.
• Ogrzewanie podłogowe w każdym pomieszczeniu – ciepło i bezcenny komfort na wyciągnięcie ręki.
• System rekuperacji w mieszkaniach – nowoczesne rozwiązanie, które zapewni świeże powietrze i oszczędność energii.
Wyjątkowa Lokalizacja
Stare Podgórze to jedna z najbardziej pożądanych dzielnic Krakowa. Bliskość centrum miasta, doskonała komunikacja oraz liczne tereny zielone sprawiają, że jest to idealne miejsce do życia. W pobliżu znajdują się również szkoły, przedszkola, sklepy oraz restauracje, co dodatkowo podnosi atrakcyjność tej lokalizacji.
Mieszkanie znajduje się w inwestycji Szaflarska 9, w której znajduje się w sprzedaży jeszcze 5 podobnych nowych mieszkań.
Awim Grupa Inwestycyjna
Strona internetowa inwestycjiAdres biura sprzedaży:
Grunwaldzka 28 31-524 KrakówGodziny otwarcia biura sprzedaży:
- Poniedziałek: 09:00 - 17:00
- Wtorek: 09:00 - 17:00
- Środa: 09:00 - 17:00
- Czwartek: 09:00 - 17:00
- Piątek: 09:00 - 17:00





