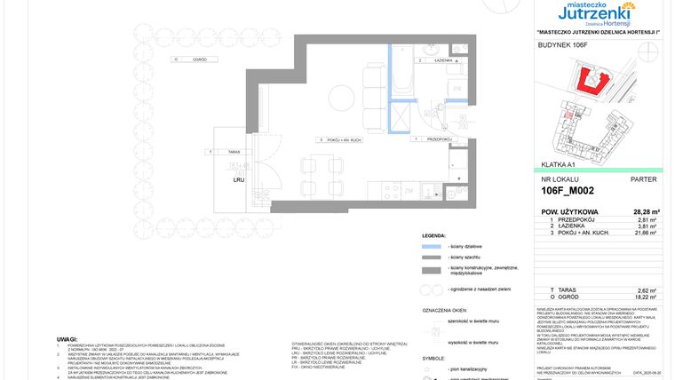
Mieszkanie na sprzedaż 1 pokój o powierzchni 28,28 m² numer 106F/M002
Inwestycja:
Miasteczko Jutrzenki Dzielnica HortensjiDeweloper:
Aurec Home
Inwestycja:
Miasteczko Jutrzenki Dzielnica HortensjiDeweloper:
Aurec HomeWarszawa, Włochy, Salomea, ul. Jutrzenki
Warszawa, Włochy, Salomea, ul. Jutrzenki
Promocje
Promocja
Zyskaj do 76 560zł rabatu!
Zyskaj do 76 560zł rabatu na wybrane mieszkania już dziś!
Termin oddania
2 kw. 2027
Ilość pokoi
1 pokój
Metraż
28,28 m²
Piętro
Parter
Strona świata
zachód
Powierzchnie dodatkowe
Ogródek
Kuchnia
otwarta kuchnia
Wysokość pomieszczeń
od 260 do 280 cm wysokości
Ilość poziomów
1 poziom
Oznaczenie oferty
106F/M002

Raport o deweloperze
Poznaj dewelopera bliżej! Pobierz raport, w którym znajdziesz kluczowe informacje o firmie, jej doświadczeniu, nagrodach oraz aktualnych i zrealizowanych inwestycjach.
Budynek i otoczenie
Miejsca postojowe | |
|---|---|
Komórki lokatorskie | dostępne |
Standard wykończenia | standard deweloperski Ogrzewanie miejskie |
Realizacja inwestycji | rozpoczęcie budowy w 3 kw. 2025 roku, planowane oddanie do użytkowania w 2 kw. 2027 roku |
Udogodnienia | winda, plac zabaw, monitoring |
Przyroda | w okolicy inwestycji znajduje się park |
Charakterystyka energetyczna nieruchomości | informacja u dewelopera |
Rezerwacja i finanse
Rodzaj własności | informacja u dewelopera |
|---|---|
Wysokość czynszu | informacja u dewelopera |
Warunki rezerwacji | Informacja u dewelopera |
Zabezpieczenie środków | Otwarty mieszkaniowy rachunek powierniczy |

Zdjęcia z budowy i widok 3D
Zobacz na jakim etapie budowy jest ta inwestycja
Lokalizacja inwestycji
Stacja kolejowa - Warszawa Raków - 314 m
Przystanek Tramwajowy - 1672 m
Przystanek Autobusowy - 361 m
Dojazd do centrum: pokaż
W pobliżu 1 km od tej inwestycji znajdują się:
21 kawiarni i restauracji, 11 sklepów, 5 obiektów sportowych, 3 placówki edukacyjne, 9 placów zabaw
Przeczytaj więcej o lokalizacji
Włochy to warszawska dzielnica o powierzchni ok. 29 km2, która położona jest na południowo-zachodnim krańcu miasta. Charakterystyczną częścią obszaru jest największy w Polsce port lotniczy Warszawa-Okęcie. Ze względu na obecność lotniska występuje tutaj niska zabudowa: nowoczesne domy wielorodzinne oraz budynki biurowo-usługowe, będące siedzibami znanych firm, np. Avon, Philips, Microsoft, Mercedes-Benz. Włochy zamieszkuje obecnie ok. 39 tys. osób, lecz intensywny rozwój osiedli mieszkaniowych powoduje wzrost liczby ludności. W obrębie dzielnicy znajdują się przestrzenie zielonego krajobrazu: Park Kombatantów, Park Staw Koziorożca, Park Stawy Cietrzewia oraz kilka zieleńców. Tereny zielone wyposażone są w place zabaw, siłownie, place wypoczynkowe i pomosty dla wędkarzy. Pociągi Szybkiej Kolei Miejskiej i Warszawskiej Kolei Dojazdowej pozwalają dojechać do centrum w czasie 15-20 minut. Ważnymi trasami wylotowymi są Al. Jerozolimskie i Al. Krakowska, a arteriami miejskimi – 2 obwodnice.
Opis oferty
Nowe 1-pokojowe mieszkanie na sprzedaż o powierzchni 28,28 m² znajduje się w nowo budowanej inwestycji deweloperskiej Miasteczko Jutrzenki Dzielnica Hortensji na Salomei, ul. Jutrzenki (6.8 km od centrum Warszawy).
Inwestycja jest realizowana przez Aurec Home.
Cała inwestycja składa się z 1 budynku, w którym łącznie znajduje się 125 nowych mieszkań.
Na sprzedaż pozostaje 95 ofert o powierzchni od 28 do 119 m².
W budynku jest 7 kondygnacji naziemnych oraz 1 kondygnacja podziemna.
Inwestycja Miasteczko Jutrzenki Dzielnica Hortensji jest w trakcie budowy z planowanym na 2 kw. 2027 roku terminem oddania do użytkowania.
Nowe mieszkanie o oznaczeniu 106F/M002 znajduje się na parterze i jest 1-poziomowe. Pomieszczenia mają od 260 do 280 centymetrów wysokości. W mieszkaniu znajduje się 1 pokój.
Okna w mieszkaniu wychodzą na zachód.
Zachodnia ekspozycja to gwarancja intensywnego popołudniowego światła, które nadaje wnętrzom przytulności i ciepła. Idealne dla miłośników słonecznych wieczorów, którzy pragną cieszyć się pięknymi zachodami słońca we własnym domu. Zachodnie światło podkreśla kolory i faktury w aranżacji wnętrz, tworząc atmosferę sprzyjającą relaksowi po długim dniu.
Dla przyszłych mieszkańców Miasteczko Jutrzenki Dzielnica Hortensji deweloper przewidział miejsca postojowe podziemne, miejsca postojowe naziemne.
Dzięki temu przyszli właściciele nie będą musieli poszukiwać wolnej przestrzeni parkingowej. Dodatkowo, miejsce postojowe w garażu podziemnym zabezpiecza przed niekorzystnymi warunkami atmosferycznymi.
Opis Inwestycji
Pow. dodatkowe
DZIELNICA HORTENSJI – NOWY ETAP INWESTYCJI MIASTECZKO JUTRZENKI
Miasteczko Jutrzenki to wyjątkowy projekt, który od lat konsekwentnie buduje swoją renomę jako jedno z najbardziej rozpoznawalnych i cenionych osiedli mieszkaniowych na warszawskich Włochach. Dzielnica Hortensji jest jego kolejnym etapem.
Harmonijnie zaprojektowana inwestycja obejmuje 125 mieszkań odpowiadających na potrzeby zarówno singli, par, jak i rodzin z dziećmi oraz osób starszych.
W bogatej ofercie znajdują się funkcjonalne kawalerki, komfortowe mieszkania 2- i 3-pokojowe, a także przestronne apartamenty o większych metrażach. Każde mieszkanie zostało zaplanowane tak, by zapewnić maksymalny komfort życia i optymalne wykorzystanie przestrzeni. Prywatne ogródki, balkony, loggie i tarasy stanowią dodatkową przestrzeń, w której mieszkańcy mogą cieszyć się odpoczynkiem na świeżym powietrzu. Starannie zaprojektowana architektura osiedla w połączeniu z harmonijną zielenią tworzy przyjazną, kameralną atmosferę, sprzyjającą relaksowi i budowaniu sąsiedzkich więzi.
Atuty inwestycji:
- szeroki wybór metraży: od 28 m² do 141 m²
- zróżnicowane i praktyczne układy mieszkań
- bezpieczne miejsca postojowe w garażu podziemnym
- komórki lokatorskie
- boksy rowerowe
- przyjazne i funkcjonalne części wspólne (strefa zabaw, oczko wodne, wygodne leżaki i ławki, stojaki i stacja napraw rowerów, biblioteczka, szklarnia)
- lokalizacja łącząca spokój z wygodą życia w dużym mieście.
Wyjątkowa lokalizacja – ul. Jutrzenki, Warszawa-Włochy.
Dzielnica Hortensji powstaje przy ul. Jutrzenki – w jednej z najbardziej dynamicznie rozwijających się części warszawskich Włoch. To miejsce, które łączy kameralny charakter dzielnicy z wygodą życia blisko centrum stolicy.
Najważniejsze atuty lokalizacji:
- DOGODNA KOMUNIKACJA: szybki dojazd do centrum Warszawy zarówno samochodem, jak i transportem publicznym (bliskość stacji kolejki WKD oraz przystanków autobusowych)
- PEŁNA INFRASTRUKTURA USŁUGOWA: sklepy, restauracje, punkty usługowe, siłownie i centra fitness w sąsiedztwie
- BLISKOŚĆ EDUKACJI: przedszkola, szkoły i placówki edukacyjne dostępne w promieniu kilku minut od inwestycji
- KOMFORT CODZIENNYCH ZAKUPÓW: w pobliżu znajdują się m.in. CH Blue City i CH Reduta, a także liczne markety i sklepy osiedlowe
- TERENY REKREACYJNE I ZIELEŃ: niedaleko inwestycji znajdują się parki, ścieżki rowerowe oraz miejsca do spacerów i aktywnego wypoczynku
- DOGODNE POŁOŻENIE WZGLĘDEM GŁÓWNYCH TRAS: szybki dojazd do obwodnicy Warszawy, lotniska Chopina oraz głównych arterii miasta.
Miasteczko Jutrzenki Dzielnica Hortensji to inwestycja, która łączy nowoczesną funkcjonalność, wysoką estetykę i komfort życia. To idealny wybór dla osób, które szukają swojego miejsca w Warszawie – w przyjaznej przestrzeni oddalonej od miejskiego pędu, a jednocześnie z doskonałym dostępem do wszystkiego, co potrzebne na co dzień.
Mieszkanie znajduje się w inwestycji Miasteczko Jutrzenki Dzielnica Hortensji.
Aurec Home
Strona internetowa inwestycjiAdres biura sprzedaży:
ul. Jutrzenki 111A, Warszawa 02-231Godziny otwarcia biura sprzedaży:
- Poniedziałek: 10:00 - 19:00
- Wtorek: 10:00 - 19:00
- Środa: 10:00 - 19:00
- Czwartek: 10:00 - 19:00
- Piątek: 10:00 - 19:00
- Sobota: 10:00 - 16:00





