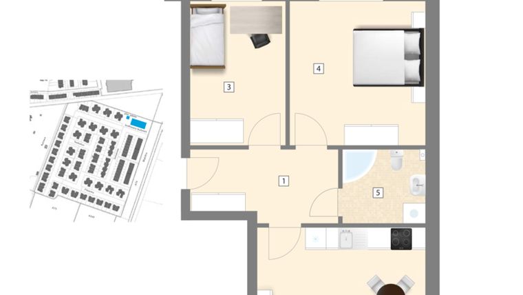
Mieszkanie na sprzedaż 3 pokoje o powierzchni 63,61 m² numer A4
Inwestycja:
Błękitne Aleje Etap XVDeweloper:
ATM Inwestycje Sp. z o.o.
Inwestycja:
Błękitne Aleje Etap XVDeweloper:
ATM Inwestycje Sp. z o.o.wrocławski, Bielany Wrocławskie, ul. Filmowa
wrocławski, Bielany Wrocławskie, ul. Filmowa
Termin oddania
3 kw. 2026
Ilość pokoi
3 pokoje
Metraż
63,61 m²
Piętro
1 piętro
Strona świata
północ, południe
Powierzchnie dodatkowe
Balkon
Kuchnia
otwarta kuchnia
Wysokość pomieszczeń
265 cm wysokości
Ilość poziomów
1 poziom
Oznaczenie oferty
A4

Raport o deweloperze
Poznaj dewelopera bliżej! Pobierz raport, w którym znajdziesz kluczowe informacje o firmie, jej doświadczeniu, nagrodach oraz aktualnych i zrealizowanych inwestycjach.
Budynek i otoczenie
Miejsca postojowe | |
|---|---|
Standard wykończenia | standard deweloperski Ogrzewanie podłogowe, pompa ciepła |
Realizacja inwestycji | rozpoczęcie budowy w 1 kw. 2025 roku, planowane oddanie do użytkowania w 3 kw. 2026 roku |
Udogodnienia | plac zabaw, pompa ciepła |
Przyroda | informacja u dewelopera |
Charakterystyka energetyczna nieruchomości | informacja u dewelopera |
Rezerwacja i finanse
Rodzaj własności | informacja u dewelopera |
|---|---|
Wysokość czynszu | informacja u dewelopera |
Warunki rezerwacji | Informacja u dewelopera |
Zabezpieczenie środków | Informacja u dewelopera |
Zdjęcia z budowy
Zobacz na jakim etapie budowy jest ta inwestycja
Lokalizacja inwestycji
Stacja kolejowa - Bielany Wrocławskie - 574 m
Przystanek Tramwajowy - 2777 m
Przystanek Autobusowy - 366 m
Dojazd do centrum Wrocławia: pokaż
W pobliżu 1 km od tej inwestycji znajdują się:
15 kawiarni i restauracji, 14 sklepów, 22 obiekty sportowe, 8 placówek medycznych, 11 placówek edukacyjnych, 15 placów zabaw
Przeczytaj więcej o lokalizacji
Bielany Wrocławskie to wieś w Polsce położona w województwie dolnośląskim, w powiecie wrocławskim, w gminie Kobierzyce. W latach 1975-1998 miejscowość administracyjnie należała do województwa wrocławskiego.
Opis oferty
Nowe 3-pokojowe mieszkanie na sprzedaż o powierzchni 63,61 m² znajduje się w nowo budowanej inwestycji deweloperskiej Błękitne Aleje Etap XV w Bielanach Wrocławskich, ul. Filmowa (1.3 km od Wrocławia).
Inwestycja jest realizowana przez ATM Inwestycje Sp. z o.o.
Cała inwestycja składa się z 1 budynku, w którym łącznie znajdują się 22 nowe mieszkania.
Na sprzedaż pozostaje 20 ofert o powierzchni od 35 do 70 m².
W budynku są 3 kondygnacje naziemne. Budynek nie posiada kondygnacji podziemnych.
Inwestycja Błękitne Aleje Etap XV jest w trakcie budowy z planowanym na 3 kw. 2026 roku terminem oddania do użytkowania.
Nowe mieszkanie o oznaczeniu A4 znajduje się na 1 piętrze i jest 1-poziomowe. Pomieszczenia mają 265 centymetrów wysokości. W mieszkaniu znajdują się 3 pokoje.
Okna w mieszkaniu wychodzą na północ, południe.
Północna ekspozycja to idealny wybór dla osób ceniących przytulne i klimatyczne wnętrza. Delikatne, rozproszone światło sprzyja harmonii i stwarza doskonałe warunki do relaksu lub pracy. Okna na północ zapewnią równomierne oświetlenie przez cały dzień.
Okna wychodzące na południe gwarantują maksymalną ilość naturalnego światła, co czyni wnętrza jasnymi i ciepłymi. Dodatkowo południowa ekspozycja pomaga obniżyć koszty ogrzewania w zimie. Okna na południe są idealne dla osób pragnących cieszyć się jasnym otoczeniem, które sprzyja dobremu samopoczuciu oraz pozytywnej energii.
Dla przyszłych mieszkańców Błękitne Aleje Etap XV deweloper przewidział miejsca postojowe naziemne.
Dzięki temu przyszli właściciele nie będą musieli poszukiwać wolnej przestrzeni parkingowej.
Opis Inwestycji
Pow. dodatkowe
Budowa Etapu XV rozpoczęła się 11 marca 2025 roku, a jej zakończenie planowane jest na 30 czerwca 2026 roku. W ramach przedsięwzięcia powstaje trzykondygnacyjny budynek wielorodzinny z trzema niezależnymi klatkami schodowymi, zaprojektowanymi z myślą o komforcie mieszkańców.
W projekcie przewidziano 22 komfortowe mieszkania o powierzchniach od 34,52 m² do 69,47 m². Do każdego lokalu przynależy dedykowane miejsce postojowe przed budynkiem oraz dodatkowe miejsca ogólnodostępne w obrębie osiedla. Od strony południowej zaplanowano ogródki przynależne do mieszkań parterowych. Każda klatka posiada osobne wejście, a w jej sąsiedztwie znajdują się pomieszczenia techniczne z pompami ciepła, obsługujące lokale przypisane do danej części budynku.
Mieszkanie znajduje się w inwestycji Błękitne Aleje Etap XV, w której znajduje się w sprzedaży jeszcze 16 podobnych nowych mieszkań.
ATM Inwestycje Sp. z o.o.
Strona internetowa inwestycjiAdres biura sprzedaży:
Dwa Światy 1, 55-040 Bielany WrocławskieGodziny otwarcia biura sprzedaży:
- Poniedziałek: 09:00 - 17:00
- Wtorek: 09:00 - 17:00
- Środa: 09:00 - 17:00
- Czwartek: 09:00 - 17:00
- Piątek: 09:00 - 17:00





