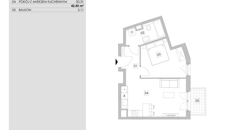
Mieszkanie na sprzedaż 2 pokoje o powierzchni 42,45 m² numer A3.6.74
Inwestycja:
ATAL RuczajDeweloper:
ATAL S.A.
Inwestycja:
ATAL RuczajDeweloper:
ATAL S.A.Kraków, Łagiewniki-Borek Fałęcki, ul. Obozowa
Kraków, Łagiewniki-Borek Fałęcki, ul. Obozowa
Oddanie
4 kw. 2027
Ilość pokoi
2 pokoje
Metraż
42,45 m²
Piętro
6 piętro
Dodatkowe
Balkon
Wysokość
od 260 do 280 cm wysokości
Poziomy
1 poziom
Oznaczenie oferty
A3.6.74

Raport o deweloperze
Poznaj dewelopera bliżej! Pobierz raport, w którym znajdziesz kluczowe informacje o firmie, jej doświadczeniu, nagrodach oraz aktualnych i zrealizowanych inwestycjach.
Budynek i otoczenie
Miejsca postojowe | |
|---|---|
Komórki lokatorskie | dostępne (48) |
Standard wykończenia | standard deweloperski |
Realizacja inwestycji | oddanie do użytkowania w 4 kw. 2027 roku |
Udogodnienia | informacja u dewelopera |
Przyroda | informacja u dewelopera |
Charakterystyka energetyczna nieruchomości | informacja u dewelopera |
Rezerwacja i finanse
Rodzaj własności | Odrębna własność z własnością gruntu |
|---|---|
Wysokość czynszu | informacja u dewelopera |
Warunki rezerwacji | Informacja u dewelopera |
Zabezpieczenie środków | Informacja u dewelopera |
Postępy i zdjęcia z budowy
Zobacz na jakim etapie budowy jest ta inwestycja
Lokalizacja inwestycji
Stacja kolejowa - Kraków Łagiewniki - 1267 m
Przystanek Tramwajowy - 923 m
Przystanek Autobusowy - 420 m
Dojazd do centrum: pokaż
W pobliżu 1 km od tej inwestycji znajdują się:
21 kawiarni i restauracji, 37 sklepów, 48 obiektów sportowych, 23 placówki medyczne, 32 placówki edukacyjne, 43 place zabaw
Przeczytaj więcej o lokalizacji
Łagiewniki są IX dzielnicą Krakowa. Ich powierzchnia, wraz z dołączonym Borkiem Fałęckim, wynosi 541,51 ha. Obie wsie włączono do miasta w 1941r. Teren zamieszkuje 14 859 osób. Krajobraz architektoniczny nie jest tu zbyt urozmaicony. Wśród zabudowań dominują niskie nieruchomości powstałe jeszcze w czasach przedwojennych. Dodatkiem do nich są osiedla mieszkaniowe z lat 60-tych i 70-tych XXw. Od dekad była to dzielnica wysoce zindustrializowana, w której już na początku minionego wieku funkcjonowała huta żelaza, a dzięki Grupie Solvay rozwijał się przemysł chemiczny. Mimo to nie brakuje tu terenów zielonych, takich jak Las Borkowski czy Park Solvay z 2 ogródkami jordanowskimi i placami zabaw. Łagiewniki słyną jednak głównie z wybudowanego pod koniec XIXw. sanktuarium, które jest dziś celem pielgrzymek tysięcy chrześcijan z Polski i ze świata. Dzielnica jest świetnie połączona z resztą miasta. Regularnie kursuje tu ponad 25 linii autobusowych i tramwajowych. Południowa granica Łagiewnik jest częścią drogi krajowej nr 7, w której skład na dalszym odcinku wchodzi „Zakopianka”.
Opis oferty
Nowe 2-pokojowe mieszkanie na sprzedaż o powierzchni 42,45 m² znajduje się w nowo wybudowanej inwestycji deweloperskiej ATAL Ruczaj w Łagiewnikach-Borku Fałęckim, ul. Obozowa (5.5 km od centrum Krakowa).
Inwestycja została zrealizowana przez ATAL S.A.
Cała inwestycja składa się z 1 budynku, w którym łącznie znajdują się 154 nowe mieszkania.
Na sprzedaż pozostają 152 oferty o powierzchni od 30 do 83 m².
W budynku jest 7 kondygnacji naziemnych oraz 1 kondygnacja podziemna.
Inwestycja ATAL Ruczaj jest w trakcie budowy z planowanym na 4 kw. 2027 roku terminem oddania do użytkowania.
Nowe mieszkanie o oznaczeniu A3.6.74 znajduje się na 6 piętrze i jest 1-poziomowe. Pomieszczenia mają od 260 do 280 centymetrów wysokości. W mieszkaniu znajdują się 2 pokoje.
Do mieszkania przewidziano możliwość zakupu komórki lokatorskiej, którą można zagospodarować na spiżarnię, warsztat czy składzik.
Dla przyszłych mieszkańców ATAL Ruczaj deweloper przewidział miejsca postojowe podziemne, miejsca postojowe naziemne.
Dzięki temu przyszli właściciele nie będą musieli poszukiwać wolnej przestrzeni parkingowej. Dodatkowo, miejsce postojowe w garażu podziemnym zabezpiecza przed niekorzystnymi warunkami atmosferycznymi.
Opis Inwestycji
Pow. dodatkowe
ATAL Ruczaj to kameralne osiedle, które powstanie na Ruczaju w Krakowie, łącząc miejski komfort z bliskością natury. W ofercie znajdą się funkcjonalne mieszkania od 1 do 4 pokoi z jasnymi wnętrzami, dużymi balkonami i starannie zaprojektowanymi częściami wspólnymi. Atrakcyjna lokalizacja i rozwijająca się okolica sprawiają, że to nie tylko wygodne miejsce do życia, ale również dobra inwestycja na przyszłość.
Mieszkanie znajduje się w inwestycji ATAL Ruczaj, w której znajduje się w sprzedaży jeszcze 57 podobnych nowych mieszkań.
ATAL S.A.
Strona internetowa inwestycjiAdres biura sprzedaży:
ul. Zabłocie 23/18, 30-701 KrakówGodziny otwarcia biura sprzedaży:
- Poniedziałek: 08:00 - 18:00
- Wtorek: 08:00 - 17:00
- Środa: 08:00 - 17:00
- Czwartek: 08:00 - 17:00
- Piątek: 08:00 - 17:00
Artykuły powiązane:
:format(jpg)/articles/gallery/image/9813/e54c4c.jpg)
Czy warto zamieszkać na peryferiach Wrocławia?
Jakie są zalety mieszkania na peryferiach? Sprawdźcie ofertę mieszkań od deweloperów na peryferiach Wrocławia! We Wrocławiu ceny nowych mieszkań w samym centrum lub stosunkowo blisko Rynku potrafią sięgać nawet 8 tys. złotych za metr kwadratowy. Średnia cena na rynku deweloperskim...
30 października 2019
Bartosz Moch





