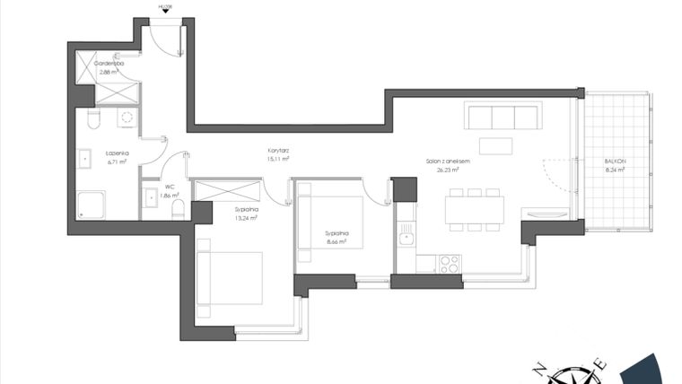
Apartament na sprzedaż 3 pokoje o powierzchni 76,06 m² numer H.206
Inwestycja:
Nautica Resort etap IIIDeweloper:
Ascot Polska
Inwestycja:
Nautica Resort etap IIIDeweloper:
Ascot PolskaGiżycko, ul. Moniuszki 23
Giżycko, ul. Moniuszki 23
Termin oddania
Gotowe
Ilość pokoi
3 pokoje
Metraż
76,06 m²
Piętro
1 piętro
Kuchnia
otwarta kuchnia
Wysokość pomieszczeń
280 cm wysokości
Ilość poziomów
1 poziom
Oznaczenie oferty
H.206

Raport o deweloperze
Poznaj dewelopera bliżej! Pobierz raport, w którym znajdziesz kluczowe informacje o firmie, jej doświadczeniu, nagrodach oraz aktualnych i zrealizowanych inwestycjach.
Budynek i otoczenie
Miejsca postojowe | |
|---|---|
Komórki lokatorskie | dostępne (16) |
Standard wykończenia | standard deweloperski Ogrzewanie gazowe |
Realizacja inwestycji | rozpoczęcie budowy w 1 kw. 2024 roku, inwestycja została oddana do użytkowania w 4 kw. 2025 roku |
Udogodnienia | własny akwen, ochrona całodobowa, plac zabaw, klimatyzacja, sauna, winda, miejsce do ładowania samochodów elektrycznych |
Przyroda | w okolicy inwestycji znajduje się jezioro |
Charakterystyka energetyczna nieruchomości | informacja u dewelopera |
Rezerwacja i finanse
Rodzaj własności | Odrębna własność z własnością gruntu |
|---|---|
Wysokość czynszu | informacja u dewelopera |
Warunki rezerwacji | umowa rezerwacyjna z opłatą w wysokości 50 tys. zł |
Zabezpieczenie środków | Informacja u dewelopera |
Zdjęcia z budowy
Zobacz na jakim etapie budowy jest ta inwestycja
Lokalizacja inwestycji
Stacja kolejowa - Wilkasy Niegocin - 348 m
Przystanek Autobusowy - 252 m
Dojazd do centrum: pokaż
W pobliżu 1 km od tej inwestycji znajdują się:
2 kawiarnie i restauracje, 3 sklepy, 5 obiektów sportowych, 4 placówki edukacyjne, 3 place zabaw
Przeczytaj więcej o lokalizacji
Giżycko to miasto położone w województwie warmińsko-mazurskim. Stolica Krainy Wielkich Jezior Mazurskich leży na wąskim przesmyku pomiędzy jeziorami Niegocin i Kisajno. Część miasta jest zlokalizowana na Wyspie Giżyckiej. Miasto jest największym ośrodkiem wczasowo-turystycznym na Mazurach. Znajduje się tu kilka plaż i liczne miejsca do wędkowania. Giżycko określane jest mianem Wodniackiej Stolicy Polski. Malowniczy krajobraz, czysta woda i zdrowe powietrze przyciągają co roku kilka tysięcy osób. Giżycko to miasto, w którym miłośnicy różnego rodzaju sportów i aktywności poczują się jak u siebie w domu. Miasto posiada dobrze rozbudowaną infrastrukturę handlowo-usługową. Na terenie Giżycka znajdują się liczne centra handlowe. Pod koniec lata organizowane są imprezy związane z obchodami Dni Giżycka. Dodatkowym atutem jest bogata oferta edukacyjna. Miasto posiada kilka szkół podstawowych, w tym Szkołę Muzyczną I stopnia, kilka szkół średnich oraz szkoły wyższe.
Opis oferty
Nowy 3-pokojowy apartament na sprzedaż o powierzchni 76,06 m² znajduje się w nowo budowanej inwestycji deweloperskiej Nautica Resort etap III w Giżycku, ul. Moniuszki 23 (2.5 km od centrum Giżycka).
Inwestycja jest realizowana przez Ascot Polska.
Cała inwestycja składa się z 1 budynku, w którym łącznie znajduje się 27 nowych apartamentów.
Na sprzedaż pozostaje 13 ofert o powierzchni od 37 do 79 m².
W budynku są 4 kondygnacje naziemne oraz 1 kondygnacja podziemna.
Inwestycja Nautica Resort etap III została wybudowana i oddana do użytkowania w 4 kw. 2025 roku.
Nowy apartament o oznaczeniu H.206 znajduje się na 1 piętrze i jest 1-poziomowy. Pomieszczenia mają 280 centymetrów wysokości. W apartamencie znajdują się 3 pokoje.
Do apartamentu przewidziano możliwość zakupu komórki lokatorskiej, którą można zagospodarować na spiżarnię, warsztat czy składzik.
Dla przyszłych mieszkańców Nautica Resort etap III deweloper przewidział miejsca postojowe podziemne, miejsca postojowe naziemne.
Dzięki temu przyszli właściciele nie będą musieli poszukiwać wolnej przestrzeni parkingowej. Dodatkowo, miejsce postojowe w garażu podziemnym zabezpiecza przed niekorzystnymi warunkami atmosferycznymi.
Opis Inwestycji
Nautica Resort – Mazury z pierwszej linii brzegowej z prywatnym portem.
Zamieszkaj lub inwestuj w wyjątkowym miejscu nad jeziorem Niegocin – tuż przy Kanale Niegocińskim, w sercu szlaku Wielkich Jezior Mazurskich.
W III i ostatnim etapie inwestycji oferujemy nowoczesne apartamenty z panoramicznym widokiem na wodę, przestronnymi tarasami lub ogródkami, czy też tarasem na dachu. Duże przeszklenia zapewniają mnóstwo światła i piękne widoki na rozległe jezioro o każdej porze dnia.
Na terenie osiedla znajduje się nowoczesny i nagradzany port jachtowy, wysoko oceniana sezonowa restauracja nad wodą z fenomenalnym widokiem na jezioro oraz strefa spa z sauną i balią. Osiedle jest otulone dwiema plażami z placami zabaw oraz strefą rekreacyjną, wypożyczalnią sprzętu wodnego. Całość infrastruktury jest zaplanowana tak, byś mógł wypoczywać lub zarabiać na wynajmie bez żadnych kompromisów.
Termin oddania: IV kw. 2025.
Lokalizacja: ul. Moniuszki 23, Wilkasy – 3 km od centrum Giżycka.
Zgłoś się po ofertę i wybierz widok, którym będziesz się cieszyć każdego dnia.
Apartament znajduje się w inwestycji Nautica Resort etap III, w której znajduje się w sprzedaży jeszcze 1 podobny nowy apartament.
Artykuły powiązane:
:format(jpg)/articles/gallery/image/10883/osiedla-zamkniete-osiedla-otwarte_1cdebe.png)
Osiedle zamknięte vs. otwarte: które lepiej odpowiada Twoim potrzebom?
Przestrzenie wspólne to dodatkowy atut, którym często chwalą się inwestorzy. Najczęściej takie udogodnienia znajdują się na tzw. zamkniętych osiedlach. Osiedle odseparowane od pozostałej zabudowy w połączeniu z ofertą dedykowaną tylko „szczęśliwcom” ma budować wrażenie wyjątkowości. Czy tak faktycznie jest? Okazuje się, że wybór: osiedle zamknięte czy otwarte wcale nie jest prosty... Poznaj zalety i wady obu rozwiązań.
03 marca 2025
Marcin Moneta





