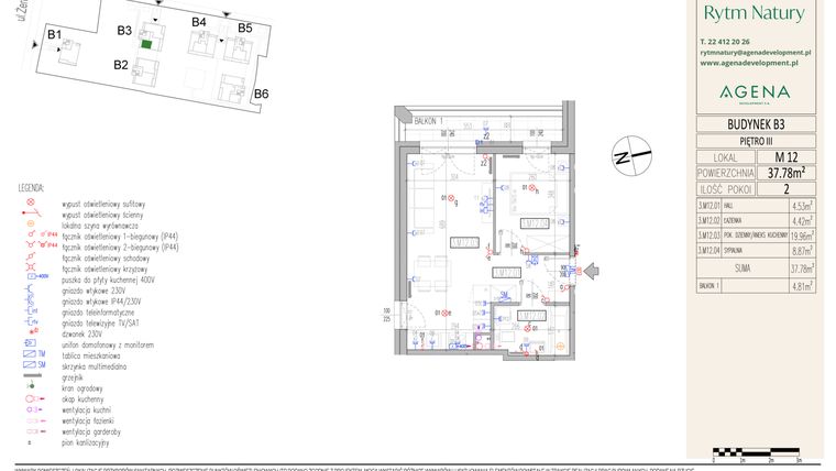
Mieszkanie na sprzedaż 2 pokoje o powierzchni 37,78 m² numer B3M12
Inwestycja:
Rytm NaturyDeweloper:
Agena Development S.A.
Inwestycja:
Rytm NaturyDeweloper:
Agena Development S.A.Otwock, ul. Szpitalna / ul. Żeromskiego
Otwock, ul. Szpitalna / ul. Żeromskiego
Promocje
Promocja
Tylko Teraz! Oferty promocyjne! Ceny od 12 200 zł/m2!
Atrakcyjne pakiety korzyści dla wszystkich mieszkań – zyskaj nawet 80 tys. zł!
Termin oddania
3 kw. 2027
Ilość pokoi
2 pokoje
Metraż
37,78 m²
Piętro
3 piętro
Strona świata
wschód, południe
Powierzchnie dodatkowe
Balkon
Kuchnia
otwarta kuchnia
Wysokość pomieszczeń
272 cm wysokości
Ilość poziomów
1 poziom
Oznaczenie oferty
B3M12

Raport o deweloperze
Poznaj dewelopera bliżej! Pobierz raport, w którym znajdziesz kluczowe informacje o firmie, jej doświadczeniu, nagrodach oraz aktualnych i zrealizowanych inwestycjach.
Budynek i otoczenie
Miejsca postojowe | |
|---|---|
Komórki lokatorskie | dostępne (33): nieobowiązkowy zakup; od 1,94 do 3,42 m2; od 9 000 do 11 000 zł/m2; |
Standard wykończenia | standard deweloperski Ogrzewanie gazowe |
Realizacja inwestycji | rozpoczęcie budowy w 4 kw. 2025 roku, planowane oddanie do użytkowania w 3 kw. 2027 roku |
Udogodnienia | plac zabaw, monitoring, teren ogrodzony, winda, instalacja fotowoltaiczna |
Przyroda | w okolicy inwestycji znajduje się park, las |
Charakterystyka energetyczna nieruchomości | informacja u dewelopera |
Rezerwacja i finanse
Rodzaj własności | Odrębna własność z własnością gruntu |
|---|---|
Wysokość czynszu | informacja u dewelopera |
Warunki rezerwacji | Informacja u dewelopera |
Zabezpieczenie środków | Otwarty mieszkaniowy rachunek powierniczy |
Zdjęcia z budowy
Zobacz na jakim etapie budowy jest ta inwestycja
Lokalizacja inwestycji
Stacja kolejowa - Otwock - 1118 m
Przystanek Autobusowy - 319 m
Dojazd do centrum Warszawy: pokaż
W pobliżu 1 km od tej inwestycji znajdują się:
8 sklepów, 13 obiektów sportowych, 17 placówek medycznych, 15 placówek edukacyjnych, 10 placów zabaw
Przeczytaj więcej o lokalizacji
Otwock leży w odległości 25 km od Warszawy i zajmuje terytorium o powierzchni 47 km2. Prawie połowę obszaru stanowią tereny leśne, m.in. lasy Mazowieckiego Parku Krajobrazowego, toteż Otwock przypomina miasto-park i jest popularnym miejscem wypoczynkowym oraz uzdrowiskowym. Występuje tutaj niska zabudowa usługowa i mieszkaniowa, a pośród domów jednorodzinnych i willi wyróżniają się obiekty zabytkowe, jak: Willa Sierkowskiego, Uzdrowisko A. Gurewicza, Willa Albinów czy budynki Obserwatorium Magnetyzmu Ziemskiego. Teren miasta przecinają trasy turystyczne, zaś nad rzeką Świder powstało kąpielisko. Ośrodkami handlu są: Galeria Górna oraz KOT Center.
Opis oferty
Nowe 2-pokojowe mieszkanie na sprzedaż o powierzchni 37,78 m² znajduje się w nowo budowanej inwestycji deweloperskiej Rytm Natury w Otwocku, ul. Szpitalna / ul. Żeromskiego (4.1 km od Warszawy).
Inwestycja jest realizowana przez Agena Development S.A.
Cała inwestycja składa się z 6 budynków, w których łącznie znajduje się 65 nowych mieszkań.
Na sprzedaż pozostaje 65 ofert o powierzchni od 38 do 121 m².
W budynkach są 4 kondygnacje naziemne oraz 1 kondygnacja podziemna.
Inwestycja Rytm Natury jest w trakcie budowy z planowanym na 3 kw. 2027 roku terminem oddania do użytkowania.
Nowe mieszkanie o oznaczeniu B3M12 znajduje się na 3 piętrze i jest 1-poziomowe. Pomieszczenia mają 272 centymetrów wysokości. W mieszkaniu znajdują się 2 pokoje.
Do mieszkania przewidziano możliwość zakupu komórki lokatorskiej, którą można zagospodarować na spiżarnię, warsztat czy składzik.
Okna w mieszkaniu wychodzą na wschód, południe.
Okna wychodzące na południe gwarantują maksymalną ilość naturalnego światła, co czyni wnętrza jasnymi i ciepłymi. Dodatkowo południowa ekspozycja pomaga obniżyć koszty ogrzewania w zimie. Okna na południe są idealne dla osób pragnących cieszyć się jasnym otoczeniem, które sprzyja dobremu samopoczuciu oraz pozytywnej energii.
Wschodnia orientacja zapewnia dostęp do łagodnego porannego światła, idealnego dla rozpoczęcia dnia pełnego energii. Wnętrza pozostają jasne, ale nieprzegrzane, co sprzyja utrzymaniu komfortowej temperatury. Przebywanie w pomieszczeniu z oknami na wschód inspiruje do działania i pozytywnie wpływa na poranny rytuał.
Dla przyszłych mieszkańców Rytm Natury deweloper przewidział miejsca postojowe podziemne, miejsca postojowe naziemne.
Dzięki temu przyszli właściciele nie będą musieli poszukiwać wolnej przestrzeni parkingowej. Dodatkowo, miejsce postojowe w garażu podziemnym zabezpiecza przed niekorzystnymi warunkami atmosferycznymi.
Opis Inwestycji
Pow. dodatkowe
Rytm Natury to kameralne osiedle w niskiej zabudowie zlokalizowane w słynącym z ciekawej architektury i bujnej zieleni Otwocku. W stylowych budynkach znajduje się 65 wygodnych mieszkań z balkonami lub ogródkami. Nasza oferta uwzględnia potrzeby zarówno singli, par, jak i rodzin z dziećmi. Proponujemy różne układy mieszkań – od 2 do 6 pokoi i różne metraże – od 38 mkw. do 122 mkw. Zmotoryzowani mieszkańcy będą mogli parkować swoje pojazdy w garażach podziemnych lub na zewnętrznych miejscach postojowych. Na terenie osiedla przewidzieliśmy również stojaki dla rowerów. Zadbaliśmy o rozbudowany monitoring, a mieszkania wyposażone zostaną w instalację wideodomofonową. Teren otoczony będzie estetycznym ogrodzeniem. Inwestycję w stylu modernistycznym wyróżniają starannie zaprojektowane części wspólne oraz tereny zielone. Wszystko z myślą o wygodzie mieszkańców, których życie biegnie tu w rytmie natury.
Wokół budynków znajduje się las oraz starannie zaprojektowana roślinność. Pamiętając o ptakach i owadach przygotowaliśmy dla nich budki i domki. Wśród ponad 200 drzew rozmieścimy ścieżki spacerowe, ławki oraz leżaki do relaksu. Najmłodsi mieszkańcy beztroskie chwile spędzą na wkomponowanym w zieleń placu zabaw.
Aktywności fizycznej sprzyjają także pobliskie ś
cieżki rowerowe, szlaki dla turystów pieszych, rzeka Świder, Park Miejski, korty tenisowe, a także powstający w Otwocku basen miejski. Wszystkie te atrakcje zlokalizowane są nie dalej niż 10 do 15 minut jazdy rowerem.
Położenie osiedla Rytm Natury blisko centrum Otwocka ułatwia dostęp do jego infrastruktury. Wszystko, co ważne dla codziennego funkcjonowania, jest w zasięgu spaceru lub przejażdżki rowerem. Wybierając lokalizację inwestycji mieliśmy na uwadze korzyści życia poza dużym miastem przy jednocześnie dobrej komunikacji z Warszawą. Z Otwocka do stolicy łatwo można dojechać zarówno samochodem, jak i pociągiem oraz autobusem.
Wyróżniki:
• Tworzymy przestrzeń wygodną do życia.
• Podążamy za nowoczesnymi rozwiązaniami podnoszącymi komfort mieszkania na naszym osiedlu.
• Na dachach budynków zainstalujemy panele fotowoltaiczne. Wygenerowana przez nie energia pozwoli obniżyć koszty utrzymania części wspólnych.
• Zadbamy o energooszczędne, wyposażone w czujnik ruchu oświetlenie LED. Zastosujemy je w częściach wspólnych budynków, a także subtelnie oświetlimy nim osiedlowe ścieżki.
• Wszystkie budynki wyposażone będą w cichobieżne windy od kondygnacji garażu do ostatniego piętra.
• Komórki lokatorskie usytuowane na kondygnacjach mieszkalnych to szybszy i wygodniejszy dostęp do przechowywanych w nich rzeczy.
• Kameralne, niskie budynki otoczone naturalnym pięknem zapewnią odpoczynek od gęstej, miejskiej zabudowy
• Prywatne ogródki i duże tarasy pozwolą na złapanie oddechu (każde mieszkanie ma minimum jeden balkon, taras lub ogródek)
Mieszkanie znajduje się w inwestycji Rytm Natury, w której znajduje się w sprzedaży jeszcze 18 podobnych nowych mieszkań.
Agena Development S.A.
Strona internetowa inwestycjiAdres biura sprzedaży:
ul. Lęborska 8/10 lok. 183 03-443 Warszawa




