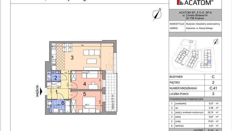
Mieszkanie na sprzedaż 3 pokoje o powierzchni 61,57 m² numer C41
Inwestycja:
Daszyńskiego ParkDeweloper:
ACATOM Sp. z o.o.
Inwestycja:
Daszyńskiego ParkDeweloper:
ACATOM Sp. z o.o.Katowice, Wełnowiec-Józefowiec, ul. Daszyńskiego 38
Katowice, Wełnowiec-Józefowiec, ul. Daszyńskiego 38
Termin oddania
Gotowe
Ilość pokoi
3 pokoje
Metraż
61,57 m²
Piętro
2 piętro
Powierzchnie dodatkowe
Balkon
Kuchnia
otwarta kuchnia
Wysokość pomieszczeń
od 260 do 270 cm wysokości
Ilość poziomów
1 poziom
Oznaczenie oferty
C41

Raport o deweloperze
Poznaj dewelopera bliżej! Pobierz raport, w którym znajdziesz kluczowe informacje o firmie, jej doświadczeniu, nagrodach oraz aktualnych i zrealizowanych inwestycjach.
Budynek i otoczenie
Miejsca postojowe | |
|---|---|
Komórki lokatorskie | dostępne (43) |
Standard wykończenia | standard deweloperski Ogrzewanie Miejskie (opomiarowane) |
Realizacja inwestycji | została oddana do użytkowania w 3 kw. 2023 roku |
Udogodnienia | plac zabaw, teren ogrodzony, internet, winda |
Przyroda | w okolicy inwestycji znajduje się las |
Charakterystyka energetyczna nieruchomości |
|
Rezerwacja i finanse
Rodzaj własności | Odrębna własność z własnością gruntu |
|---|---|
Wysokość czynszu | informacja u dewelopera |
Warunki rezerwacji | Informacja u dewelopera |
Zabezpieczenie środków | Otwarty mieszkaniowy rachunek powierniczy |
Zdjęcia z budowy
Zobacz na jakim etapie budowy jest ta inwestycja
Lokalizacja inwestycji
Przystanek Tramwajowy - 406 m
Przystanek Autobusowy - 359 m
Dojazd do centrum: pokaż
W pobliżu 1 km od tej inwestycji znajdują się:
12 kawiarni i restauracji, 18 sklepów, 21 obiektów sportowych, 6 placówek medycznych, 11 placówek edukacyjnych, 14 placów zabaw
Przeczytaj więcej o lokalizacji
Wokół osiedla roztaczają się tereny zielone i rekreacyjne m.in.: Park Wełnowiecki, Lasek Alfreda, a także Wełnowiecka Hałda — park z punktem widokowym. W pobliżu mieszczą się dwa duże obiekty sportowe - Hala Sportowa Józefowska i Ośrodek Sportowy Kolejarz. W niedalekiej odległości, w sąsiedniej dzielnicy Dąb, usytuowane jest z kolei popularne centrum handlowe Silesia City Center. Zaledwie niecały kilometr dzieli mieszkańców osiedla od Parku Śląskiego z jego licznymi atrakcjami m.in. Śląskim Ogrodem Zoologicznym i Legendią – Śląskim Wesołym Miasteczkiem. Atutem inwestycji jest jej położenie, komfortowe połączenie z centrum miasta nawet w godzinach szczytu, bliskość licznych punktów handlowo-usługowych, szkół, przedszkoli i żłobków.
Katowice to miasto w województwie śląskim o powierzchni 164 km kw i liczbie mieszkańców ponad 300 tys. osób. Zabudowa miasta to głównie powojenne bloki i typowe dla Śląska zabytkowe kamienice. Katowice dzielą się na dzielnice pogrupowane w zespoły dzielnic: zespół północny, śródmiejski, południowy, wschodni i zachodni. Miasto jest wojewódzkim centrum medycznym, z kilkunastoma szpitalami, w tym Centralnym Szpitalem Klinicznym im. Kornela Gibińskiego, Szpitalem Klinicznym im. Andrzeja Mieleckiego, Uniwersyteckim Centrum Okulistyki i Onkologii, Szpitalem Klinicznym nr 6 czy Górnośląskim Centrum Zdrowia Dziecka. Działają tu też liczne uniwersytety, takie jak Akademia Wychowania Fizycznego im. Jerzego Kukuczki, Akademia Sztuk Pięknych czy wydziały Politechniki Śląskiej.
Opis oferty
Inwestycja z uregulowanym stanem prawnym. Bezpieczny zakup mieszkania, pozwolenie na użytkowanie, szybki odbiór kluczy.
Nowe 3-pokojowe mieszkanie na sprzedaż o powierzchni 61,57 m² znajduje się w nowo wybudowanej inwestycji deweloperskiej Daszyńskiego Park w Wełnowcu, ul. Daszyńskiego 38 (2.9 km od centrum Katowic).
Inwestycja została zrealizowana przez ACATOM Sp. z o.o.
Cała inwestycja składa się z 3 budynków, w których łącznie znajduje się 131 nowych mieszkań.
Na sprzedaż pozostaje 20 ofert o powierzchni od 47 do 68 m².
W budynkach są 4 kondygnacje naziemne oraz 1 kondygnacja podziemna.
Inwestycja Daszyńskiego Park została wybudowana i oddana do użytkowania w 4 kw. 2023 roku.
Nowe mieszkanie o oznaczeniu C41 znajduje się na 2 piętrze i jest 1-poziomowe. Pomieszczenia mają od 260 do 270 centymetrów wysokości. W mieszkaniu znajdują się 3 pokoje.
Do mieszkania przewidziano możliwość zakupu komórki lokatorskiej, którą można zagospodarować na spiżarnię, warsztat czy składzik.
Dla przyszłych mieszkańców Daszyńskiego Park deweloper przewidział miejsca postojowe podziemne, miejsca postojowe naziemne.
Dzięki temu przyszli właściciele nie będą musieli poszukiwać wolnej przestrzeni parkingowej. Dodatkowo, miejsce postojowe w garażu podziemnym zabezpiecza przed niekorzystnymi warunkami atmosferycznymi.
Opis Inwestycji
Okazyjna cena
Tereny zielone
Pow. dodatkowe
Mieszkania gotowe do odbioru!
Daszyńskiego Park to nowa inwestycja, która powstaje w północnej części Katowic, w wyjątkowo cichej i spokojnej dzielnicy Wełnowiec – Józefowiec.
W 3 czterokondygnacyjnych budynkach z windami wydzielono łącznie 131 funkcjonalnie zaprojektowanych mieszkań o powierzchni od 26 do 101 m2. W zależności od kondygnacji lokale posiadają ogrodzone ogródki, balkony lub tarasy. Dla właścicieli przewidziano w sumie 197 miejsc postojowych, w tym 182 w garażu podziemnym, a także komórki lokatorskie. Wjazd na teren osiedla kontrolowany jest przez automatyczny szlaban.
Dodatkowo znajduje się tu plac zabaw, a w ramach inwestycji zostanie posadzonych ponad 120 drzew oraz liczne krzewy iglaste i liściaste.
Mieszkanie znajduje się w inwestycji Daszyńskiego Park, w której znajduje się w sprzedaży jeszcze 13 podobnych nowych mieszkań.
ACATOM Sp. z o.o.
Strona internetowa inwestycjiAdres biura sprzedaży:
ul. Daszyńskiego 38/14 40-834 KatowiceGodziny otwarcia biura sprzedaży:
- Poniedziałek: 08:00 - 18:00
- Wtorek: 08:00 - 16:00
- Środa: 08:00 - 16:00
- Czwartek: 08:00 - 16:00
- Piątek: 08:00 - 16:00
- Sobota: 09:00 - 13:00





