Mieszkanie na sprzedaż 3 pokoje o powierzchni 64,87 m² numer 11.1
Inwestycja:
Osiedle HalleraDeweloper:
4Estetica Sp. z o.o.
Inwestycja:
Osiedle HalleraDeweloper:
4Estetica Sp. z o.o.Zabrze, ul. Rozwadowskiego
Zabrze, ul. Rozwadowskiego
Termin oddania
Gotowe
Ilość pokoi
3 pokoje
Metraż
64,87 m²
Piętro
1 piętro
Kuchnia
otwarta kuchnia
Wysokość pomieszczeń
od 260 do 280 cm wysokości
Ilość poziomów
1 poziom
Oznaczenie oferty
11.1

Raport o deweloperze
Poznaj dewelopera bliżej! Pobierz raport, w którym znajdziesz kluczowe informacje o firmie, jej doświadczeniu, nagrodach oraz aktualnych i zrealizowanych inwestycjach.
Budynek i otoczenie
Miejsca postojowe | |
|---|---|
Standard wykończenia | standard deweloperski podwyższony Ogrzewanie gazowe; podłogowe, piec dwufunkcyjny |
Realizacja inwestycji | rozpoczęcie budowy w 1 kw. 2025 roku, inwestycja została oddana do użytkowania w 4 kw. 2025 roku |
Udogodnienia | informacja u dewelopera |
Przyroda | w okolicy inwestycji znajduje się park, las |
Charakterystyka energetyczna nieruchomości | informacja u dewelopera |
Rezerwacja i finanse
Rodzaj własności | Odrębna własność z własnością gruntu |
|---|---|
Wysokość czynszu | nieruchomość bezczynszowa |
Warunki rezerwacji | kaucja |
Zabezpieczenie środków | Informacja u dewelopera |
Zdjęcia z budowy
Zobacz na jakim etapie budowy jest ta inwestycja
Lokalizacja inwestycji
Przystanek Tramwajowy - 2520 m
Przystanek Autobusowy - 139 m
Dojazd do centrum: pokaż
W pobliżu 1 km od tej inwestycji znajdują się:
1 sklep, 9 obiektów sportowych, 4 placówki edukacyjne, 1 plac zabaw
Przeczytaj więcej o lokalizacji
Zabrze to należące do Górnośląskiego Okręgu Przemysłowego miasto powiatowe położone nad rzekami Kłodnicą i Bytomką. Zajmuje tereny Wyżyny Śląskiej oraz Kotliny Raciborskiej. Miasto składa się z kilkunastu dzielnic. Jako jeden z najbardziej uprzemysłowionych ośrodków Polski, Zabrze cechuje się industrialną zabudową z licznymi zakładami oraz osiedlami bloków mieszkalnych tworzonych z myślą o pracownikach. Mimo to ok. 30% obszaru zajmują lasy i pola. Na obrzeżach miasta powstają domy jednorodzinne. W Zabrzu znajdują się także liczne szpitale. Podstawową opiekę medyczną oferuje tu kilkadziesiąt przychodni. Rozwinięte jest zaplecze oświatowe, które tworzy m.in. kilkadziesiąt przedszkoli, podstawówek i zespołów szkół. Czas wolny można spędzić w jednym z kilku parków miejskich. Znajduje się tu także wiele ogólnodostępnych boisk. W mieście są także kina, teatr, filharmonia.
Opis oferty
Nowe 3-pokojowe mieszkanie na sprzedaż o powierzchni 64,87 m² znajduje się w nowo budowanej inwestycji deweloperskiej Osiedle Hallera w Zabrzu, ul. Rozwadowskiego (4.9 km od centrum Zabrza).
Inwestycja jest realizowana przez 4Estetica Sp. z o.o.
Cała inwestycja składa się z 11 budynków, w których łącznie znajdują się 22 nowe mieszkania.
Na sprzedaż pozostają 22 oferty o powierzchni od 53 do 78 m².
W budynkach są 2 kondygnacje naziemne. Budynek nie posiada kondygnacji podziemnych.
Inwestycja Osiedle Hallera została wybudowana i oddana do użytkowania w 4 kw. 2025 roku.
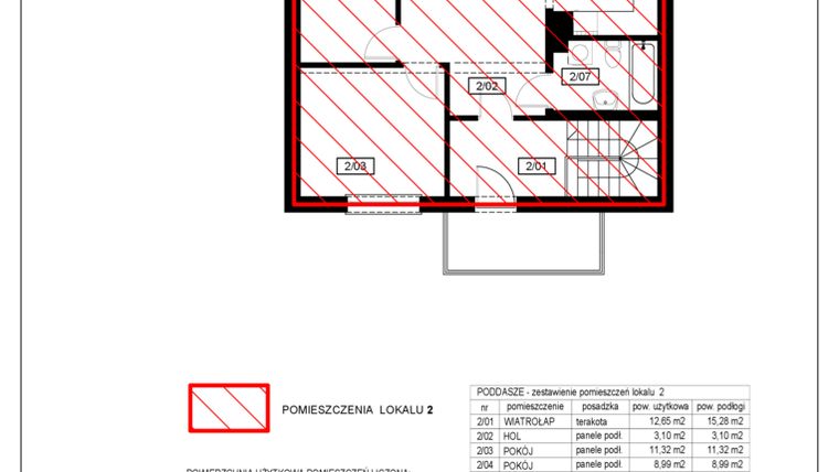
Nowe mieszkanie o oznaczeniu 11.1 znajduje się na 1 piętrze i jest 1-poziomowe. Pomieszczenia mają od 260 do 280 centymetrów wysokości. W mieszkaniu znajdują się 3 pokoje.
Dla przyszłych mieszkańców Osiedle Hallera deweloper przewidział miejsca postojowe naziemne.
Dzięki temu przyszli właściciele nie będą musieli poszukiwać wolnej przestrzeni parkingowej.
Mieszkanie znajduje się w inwestycji Osiedle Hallera, w której znajduje się w sprzedaży jeszcze 5 podobnych nowych mieszkań.
4Estetica Sp. z o.o.
Adres biura sprzedaży:
ul. Zabrska 39D, GliwiceGodziny otwarcia biura sprzedaży:
- Poniedziałek: 08:00 - 17:00
- Wtorek: 08:00 - 17:00
- Środa: 08:00 - 17:00
- Czwartek: 08:00 - 17:00
- Piątek: 08:00 - 17:00





